プレジオ永和EURO
賃貸マンション
- 所在地
- 大阪府東大阪市長栄寺
- 最寄駅
-
- おおさか東線 JR河内永和駅 (徒歩1分)
- おおさか東線 JR俊徳道駅 (徒歩9分)
- 築年月
- 2025年3月
- 構造
- RC
- 階数
- 地上15階
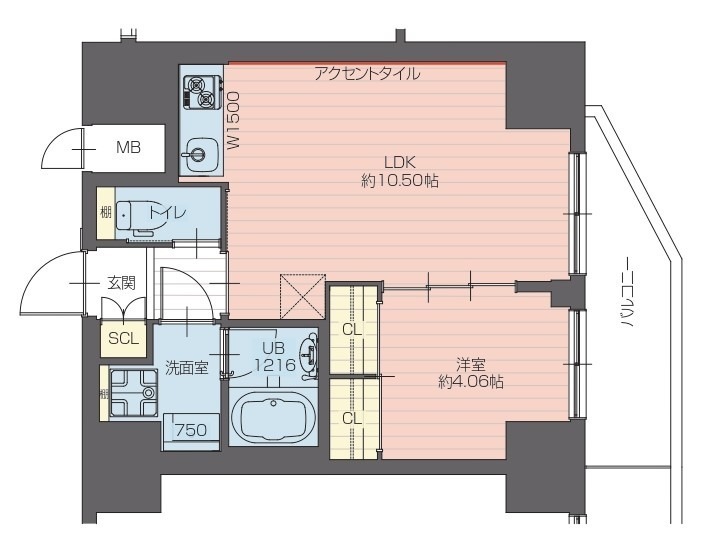
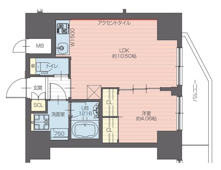
***号室

写真を見る
11.2万円(共益費 10,000円)
- 敷
- -
- 礼
- -
- 保
- -
- 償
- -
公開
