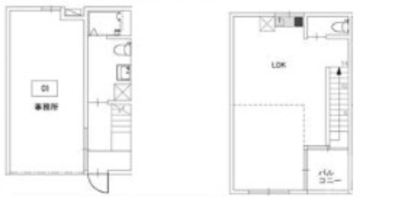
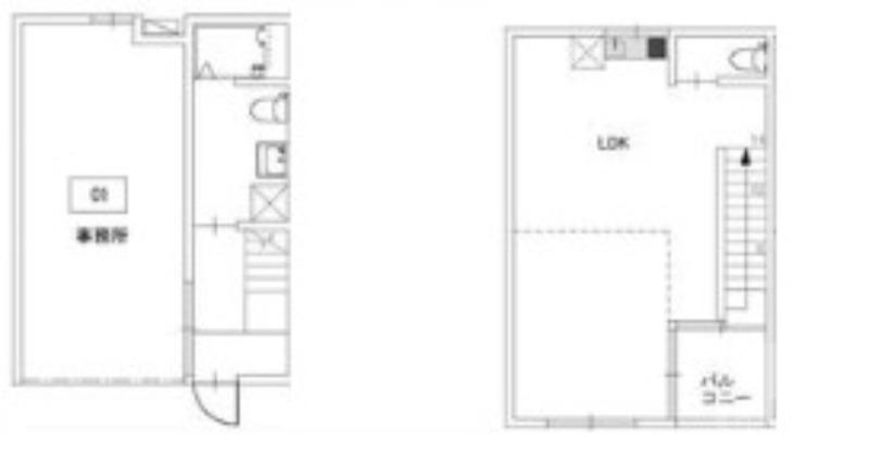
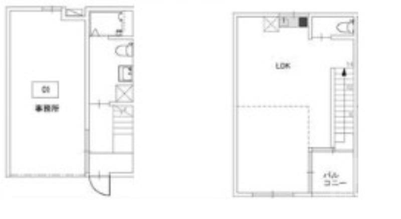
鳥飼本町の2025/11築の賃貸一戸建て
賃貸一戸建て
- 所在地
- 大阪府摂津市鳥飼本町
- 最寄駅
-
- 大阪モノレール 本線 南摂津駅 (2.72km)
- 阪急京都線 摂津市駅 (4.48km)
- 築年月
- 2025年11月
- 構造
- 木造
- 階数
- 地上2階
***号室

写真を見る
17万円(共益費 -)
- 敷
- -
- 礼
- 2ヶ月
- 保
- -
- 償
- -
公開
