Arto桂川 201号室(2階/1LDK)の賃貸物件(賃貸アパート)
京都府京都市南区にあるArto桂川 201号室はクローゼット、ウォークインクローゼット、フローリング、室内洗濯機置場、プロパンガスなどが特徴です。最寄り駅の東海道本線(JR西日本)桂川駅から徒歩10分です。Arto桂川 201号室の詳細はハウスコム 桂店までお気軽にお問い合わせください!
情報更新日:
次回更新予定日:
※次回更新予定日について:お店側では順次空室確認を行っていますが、次回更新予定日までに空室確認が行えない場合には、この物件情報は自動的に削除されます。
Arto桂川 201号室の賃貸物件部屋概要
家賃 |
7万円
初期費用を |
|---|---|
共益費 |
3,000円
入居可能時期 |
敷金/礼金 |
- / 1ヶ月 |
保証金/ |
- / - |
最寄駅 |
|
所在地 |
京都府京都市南区久世中久世町2丁目 |
部屋番号 |
201号室 |
間取り |
1LDK(洋3.8・LDK9.5) |
専有面積 |
33.40㎡ |
築年数 |
2018年7月(築8年) |
階数 |
2階部分(地上3階建) |
方位・位置 |
南 / 角部屋 |
物件種別 |
賃貸アパート |
構造 |
木造 |
駐車場 |
- |
小学校学区 |
久世西小学校 |
中学校学区 |
久世中学校 |
他の空き部屋 |
ー |
- 学区データについて
- ※学区データは必ずしも正確とは限りません。詳細に関しては最寄店舗または各自治体の教育委員会に必ずご確認ください。
Arto桂川 201号室の特徴
-
一人暮らしに人気の設備

-
カップルに人気の設備

-
家族に人気の設備

-
夫婦に人気の設備

-
三世代で人気の設備

-
外で子どもと遊びたい

-
雨の日でも洗濯したい

-
洋室で暮らしたい

-
服やおしゃれが好き

-
推し活グッズを飾りたい

-
ガーデニングが好き

契約条件
この物件は、2人入居もご契約できます。 敷金が無料なため、初期費用が比較的安くなる傾向にあります。
セキュリティ
この物件の建物には、オートロックが設置されており、来客時には居室内のテレビモニターにて訪問者の顔を確認することができます。
室内設備
システムキッチンには、2つ以上のガスコンロが備え付けられています。 お風呂とトイレは別です。お風呂には、追い焚き機能が備わっています。 トイレは、温水洗浄便座機能付きになります。 女性に嬉しい設備のシャワーの付いている洗面化粧台があります。 洗濯に便利な設備として、室内洗濯機置場があります。浴室乾燥機も設置されているので、梅雨時の生乾き臭も比較的防ぐことができます。
居室状況
お部屋の床は、フローリングとなっており、エアコンが設置されています。 インターネットも無料で入居後すぐ生活が始められます。 収納スペースとして、基本的な居室にクローゼットを設置、通常よりも収納力の高いウォークインクローゼット、玄関にはシューズボックスがあります。
建物設備共用部分
居室外の専有スペースとして、洗濯物を干すなどの用途として利用できるバルコニーがあります。 駐輪場が利用できます。
周辺施設
この物件の学区は、久世西小学校区・久世中学校区です。
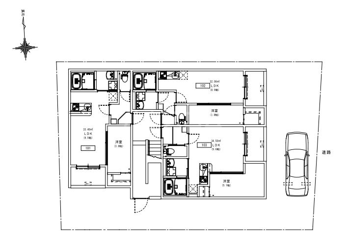
Arto桂川 201号室の間取り
間取り:1LDK
間取詳細:1LDK(洋3.8・LDK9.5)
専有面積:33.40㎡
方位:南
部屋位置:角部屋
Arto桂川 201号室の設備
キッチン
システムキッチン
カウンターキッチン
ガスコンロ
ガスコンロ二口以上
バス・トイレ
バス・トイレ別
追い焚き
浴室乾燥機
温水洗浄便座
独立洗面台
シャワー付洗面化粧台
玄関
TVモニタ付インターホン
オートロック
収納
クローゼット
ウォークインクローゼット
シューズボックス
バルコニー
バルコニー
ルーフバルコニー
室内設備
エアコン
フローリング
室内洗濯機置場
位置・立地
2階以上
角部屋
南向き
インフラ
インターネット可
プロパンガス
建物設備
駐輪場
入居条件
2人入居可
ライフステージ
一人暮らしに人気の設備
カップルに人気の設備
家族に人気の設備
夫婦に人気の設備
三世代で人気の設備
こだわり
外で子どもと遊びたい
雨の日でも洗濯したい
洋室で暮らしたい
趣味
服やおしゃれが好き
推し活グッズを飾りたい
ガーデニングが好き
お得な条件
インターネット無料
Arto桂川 201号室の賃貸契約情報
毎月支払う |
家賃7万円/月共益費3,000円/月 |
|---|---|
初期費用 |
敷金-礼金1ヶ月 (7万円)保証金-敷引き償却金- |
更新料 |
70,000円 |
鍵交換費用 |
24,200円 |
室内清掃費用 |
88,000円 |
町会費(2年分) |
3,400円 |
駐車場料金 |
- |
損保・ |
借家賠付きの火災保険にご加入いただきます。 |
保証会社 |
加入要 保証会社:いえらぶ安心保証 保証会社利用料:初回総賃料70% 毎月650円(税別) 年間保証料:25,000円 |
契約期間 |
- |
入居可能日 |
2026年01月下旬 |
フリーレント期間 |
- |
取引形態 |
一般媒介 |
備考 |
ネット無料です。初回総賃料70% 毎月650円(税別) 年間保証料:25000円 |
Arto桂川 201号室の建物情報
建物名称 |
Arto桂川 |
|---|---|
最寄駅 |
|
所在地 |
京都府京都市南区久世中久世町2丁目 |
階層 |
2階部分(地上3階建) |
構造 |
木造 |
築年数 |
2018年7月(築8年) |
駐車場 |
- |
小学校学区 |
久世西小学校 |
中学校学区 |
久世中学校 |
- 学区データについて
- ※学区データは必ずしも正確とは限りません。詳細に関しては最寄店舗または各自治体の教育委員会に必ずご確認ください。
無料この物件に問い合わせ
- Arto桂川 201号室

-
7万円
(共益費
3,000円)
- 敷
- -
- 礼
- 1ヶ月
- 保
- -
- 償
- -
Arto桂川 201号室の物件のお問い合わせ先・取り扱い店舗
ハウスコム 桂店
- アクセス
-
阪急京都線「桂駅」徒歩1分
- 住所
- 〒615-8073 京都府京都市西京区桂野里町50−68 桂ビル 1階
- 営業時間
- AM10:00~PM06:00
- 定休日
- なし
- 営業エリア
- 京都市全域、亀岡市、南丹市、向日市、長岡京市、、舞鶴市、福知山市
- 取引態様
- 賃貸仲介業





















