レオネクストチェリーブロッサム 203号室(2階/1K)の賃貸物件(賃貸アパート)
栃木県真岡市にあるレオネクストチェリーブロッサム 203号室は電気コンロ、室内洗濯機置場、2階以上、インターネット可、オンライン相談可などが特徴です。最寄り駅の真岡鉄道寺内駅から2.96kmです。レオネクストチェリーブロッサム 203号室の詳細はハウスコム 宇都宮店までお気軽にお問い合わせください!
情報更新日:
次回更新予定日:
※次回更新予定日について:お店側では順次空室確認を行っていますが、次回更新予定日までに空室確認が行えない場合には、この物件情報は自動的に削除されます。
レオネクストチェリーブロッサム 203号室の賃貸物件部屋概要
家賃 |
5.9万円
初期費用を |
|---|---|
共益費 |
4,000円
入居可能時期 |
敷金/礼金 |
- / 59,000円 |
保証金/ |
- / - |
最寄駅 |
|
所在地 |
栃木県真岡市高勢町 |
部屋番号 |
203号室 |
間取り |
1K |
専有面積 |
28.02㎡ |
築年数 |
2009年4月(築17年) |
階数 |
2階部分(地上2階建) |
方位・位置 |
ー / その他 |
物件種別 |
賃貸アパート |
構造 |
木造 |
駐車場 |
6,050円 |
小学校学区 |
真岡西小学校 |
中学校学区 |
真岡西中学校 |
他の空き部屋 |
105号室 205号室 |
- 学区データについて
- ※学区データは必ずしも正確とは限りません。詳細に関しては最寄店舗または各自治体の教育委員会に必ずご確認ください。
レオネクストチェリーブロッサム 203号室の特徴
契約条件
敷金が無料なため、初期費用が比較的安くなる傾向にあり、更新料が無料なので、長年お得に住み続けることができます。
セキュリティ
来客時には居室内のテレビモニターにて訪問者の顔を確認することができます。
室内設備
電気コンロが備え付けられています。 トイレは、温水洗浄便座機能付きになります。 洗濯に便利な設備として、室内洗濯機置場があります。
居室状況
エアコンが設置されています。
周辺施設
この物件の学区は、真岡西小学校区・真岡西中学校区です。
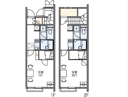
レオネクストチェリーブロッサム 203号室の間取り
間取り:1K
間取詳細:1K
専有面積:28.02㎡
方位:ー
部屋位置:その他
レオネクストチェリーブロッサム 203号室の設備
キッチン
電気コンロ
バス・トイレ
バス・トイレ別
温水洗浄便座
玄関
TVモニタ付インターホン
室内設備
エアコン
室内洗濯機置場
位置・立地
2階以上
最上階
インフラ
インターネット可
入居条件
オンライン相談可
オンライン内見可
ライフステージ
一人暮らしに人気の設備
カップルに人気の設備
家族に人気の設備
夫婦に人気の設備
三世代で人気の設備
こだわり
雨の日でも洗濯したい
寝るためだけの部屋
お得な条件
更新料無料
レオネクストチェリーブロッサム 203号室の賃貸契約情報
毎月支払う |
家賃5.9万円/月共益費4,000円/月 |
|---|---|
初期費用 |
敷金-礼金59,000円保証金-敷引き償却金- |
更新料 |
- |
鍵交換費用 |
16,500円 |
室内清掃費用 |
41,800円 |
抗菌施工(任意) |
23,760円 |
駐車場料金 |
6,050円 |
損保・ |
借家賠付きの火災保険にご加入いただきます。 |
保証会社 |
加入要 保証会社利用料:保証料:59390円(契約内容により100~120%で変動有)※記載金額は120%の場合 |
契約期間 |
- |
入居可能日 |
即入居可 |
フリーレント期間 |
- |
取引形態 |
一般媒介 |
備考 |
鍵交換費 16500円 退去時清掃費 41800円 抗菌施工(任意) 23760円 保証会社利用必須 保証料:59390円(契約内容により100~120%で変動有)記載金額は120%の場合 |
レオネクストチェリーブロッサム 203号室の建物情報
建物名称 |
レオネクストチェリーブロッサム |
|---|---|
最寄駅 |
|
所在地 |
栃木県真岡市高勢町 |
階層 |
2階部分(地上2階建) |
構造 |
木造 |
築年数 |
2009年4月(築17年) |
駐車場 |
6,050円 |
小学校学区 |
真岡西小学校 |
中学校学区 |
真岡西中学校 |
1/5 外観
- 学区データについて
- ※学区データは必ずしも正確とは限りません。詳細に関しては最寄店舗または各自治体の教育委員会に必ずご確認ください。
無料この物件に問い合わせ
- レオネクストチェリーブロッサム 203号室

-
5.9万円
(共益費
4,000円)
- 敷
- -
- 礼
- 59,000円
- 保
- -
- 償
- -
レオネクストチェリーブロッサム 203号室の物件のお問い合わせ先・取り扱い店舗
ハウスコム 宇都宮店
- アクセス
-
東北本線「宇都宮駅」西口徒歩1分
- 住所
- 〒321-0964 栃木県宇都宮市駅前通り1丁目5−9 笠島ビル 1F
- 営業時間
- AM10:00~PM06:00
- 定休日
- なし
- 営業エリア
- 栃木県内全域
- 取引態様
- 賃貸仲介業
お問い合わせNo. HC5-2126511-203-0041
























