ミレニアムコート青葉台 201号室(2階/2LDK)の賃貸物件(賃貸マンション)
神奈川県横浜市青葉区にあるミレニアムコート青葉台 201号室はガスコンロ、バス・トイレ別、インターネット可、エレベーター、オンライン相談可などが特徴です。最寄り駅の東急田園都市線青葉台駅から徒歩12分です。ミレニアムコート青葉台 201号室の詳細はハウスコム 溝の口店までお気軽にお問い合わせください!
情報更新日:
次回更新予定日:
※次回更新予定日について:お店側では順次空室確認を行っていますが、次回更新予定日までに空室確認が行えない場合には、この物件情報は自動的に削除されます。
ミレニアムコート青葉台 201号室の賃貸物件部屋概要
家賃 |
15.9万円
初期費用を |
|---|---|
共益費 |
10,000円
入居可能時期 |
敷金/礼金 |
1ヶ月 / 1ヶ月 |
保証金/ |
- / - |
最寄駅 |
|
所在地 |
神奈川県横浜市青葉区青葉台 |
部屋番号 |
201号室 |
間取り |
2LDK(洋7.2・洋5・LDK14) |
専有面積 |
59.94㎡ |
築年数 |
2000年3月(築26年) |
階数 |
2階部分(地上5階建) |
方位・位置 |
南東 / 角部屋 |
物件種別 |
賃貸マンション |
構造 |
RC |
駐車場 |
空有 賃料に含む |
小学校学区 |
青葉台小学校 |
中学校学区 |
青葉台中学校 |
他の空き部屋 |
203号室 406号室 |
- 学区データについて
- ※学区データは必ずしも正確とは限りません。詳細に関しては最寄店舗または各自治体の教育委員会に必ずご確認ください。
ミレニアムコート青葉台 201号室の特徴
-
一人暮らしに人気の設備

-
カップルに人気の設備

-
家族に人気の設備

-
夫婦に人気の設備

-
三世代で人気の設備

-
外で子どもと遊びたい

-
雨の日でも洗濯したい

-
洋室で暮らしたい

-
料理が好き

-
推し活グッズを飾りたい

-
ガーデニングが好き

契約条件
この物件は、2人入居もご契約できます。 楽器演奏もご相談ください。 また、ご契約時に保証人は不要です。
セキュリティ
この物件の建物には、オートロックや宅配ボックスが設置されております。
室内設備
システムキッチンには、ガスコンロが備え付けられています。 お風呂とトイレは別です。お風呂には、追い焚き機能が備わっています。 女性に嬉しい設備の独立した洗面化粧台があります。 洗濯に便利な設備として、室内洗濯機置場があります。浴室乾燥機も設置されているので、梅雨時の生乾き臭も比較的防ぐことができます。
居室状況
お部屋の床は、フローリングとなっており、エアコンが設置されています。 収納スペースとして、基本的な居室にクローゼットを設置、玄関にはシューズボックスがあります。
建物設備共用部分
居室外の専有スペースとして、洗濯物を干すなどの用途として利用できるバルコニーがあります。 建物の共用スペースに、日々の出入に便利なエレベーターや、急な外出や不在がちのご家庭の荷物受け取りに便利な宅配ボックスが設置されています。 駐車場があり、無料で利用することができます。駐輪場が利用できます。
周辺施設
この物件の学区は、青葉台小学校区・青葉台中学校区です。
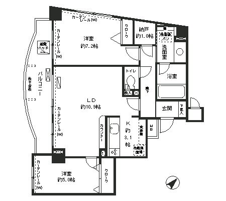
ミレニアムコート青葉台 201号室の間取り
間取り:2LDK
間取詳細:2LDK(洋7.2・洋5・LDK14)
専有面積:59.94㎡
方位:南東
部屋位置:角部屋
ミレニアムコート青葉台 201号室の設備
キッチン
システムキッチン
カウンターキッチン
ガスコンロ
バス・トイレ
バス・トイレ別
追い焚き
浴室乾燥機
独立洗面台
玄関
オートロック
宅配ボックス
収納
クローゼット
シューズボックス
バルコニー
バルコニー
ルーフバルコニー
室内設備
エアコン
フローリング
室内洗濯機置場
位置・立地
2階以上
角部屋
インフラ
インターネット可
CATV
都市ガス
建物設備
エレベーター
駐輪場
入居条件
楽器可・相談
2人入居可
オンライン相談可
オンライン内見可
保証人不要
ライフステージ
一人暮らしに人気の設備
カップルに人気の設備
家族に人気の設備
夫婦に人気の設備
三世代で人気の設備
こだわり
外で子どもと遊びたい
雨の日でも洗濯したい
洋室で暮らしたい
趣味
料理が好き
推し活グッズを飾りたい
ガーデニングが好き
お得な条件
駐車場無料
ミレニアムコート青葉台 201号室の賃貸契約情報
毎月支払う |
家賃15.9万円/月共益費10,000円/月 |
|---|---|
初期費用 |
敷金1ヶ月 (15.9万円)礼金1ヶ月 (15.9万円)保証金-敷引き償却金- |
更新料 |
174,900円 |
鍵交換費用 |
33,000円 |
室内清掃費用 |
- |
駐車場料金 |
空有 賃料に含む |
損保・ |
借家賠付きの火災保険にご加入いただきます。 |
保証会社 |
加入要 保証会社利用料:初回保証料:月額総賃料50%~ |
契約期間 |
2年 |
入居可能日 |
相談 |
フリーレント期間 |
- |
取引形態 |
一般媒介 |
備考 |
鍵交換代 33000円 保証会社利用必須 初回保証料:月額総賃料50%~ |
ミレニアムコート青葉台 201号室の建物情報
建物名称 |
ミレニアムコート青葉台 |
|---|---|
最寄駅 |
|
所在地 |
神奈川県横浜市青葉区青葉台 |
階層 |
2階部分(地上5階建) |
構造 |
RC |
築年数 |
2000年3月(築26年) |
駐車場 |
空有 賃料に含む |
小学校学区 |
青葉台小学校 |
中学校学区 |
青葉台中学校 |
- 学区データについて
- ※学区データは必ずしも正確とは限りません。詳細に関しては最寄店舗または各自治体の教育委員会に必ずご確認ください。
無料この物件に問い合わせ
- ミレニアムコート青葉台 201号室

-
15.9万円
(共益費
10,000円)
- 敷
- 1ヶ月
- 礼
- 1ヶ月
- 保
- -
- 償
- -
ミレニアムコート青葉台 201号室の物件のお問い合わせ先・取り扱い店舗
ハウスコム 溝の口店
- アクセス
-
東急田園都市線「溝の口駅」北口徒歩2分
- 住所
- 〒213-0001 神奈川県川崎市高津区溝口1丁目8−1 溝ノ口丸広ビル1階
- 営業時間
- 10:00~18:00
- 定休日
- なし
- 営業エリア
- 川崎市中原区,川崎市多摩区,川崎市宮前区,川崎市高津区,稲城市
- 取引態様
- 賃貸仲介業























