ブランシェつきみ野 204号室(2階/1K)の賃貸物件(賃貸アパート)
神奈川県大和市にあるブランシェつきみ野 204号室はIHコンロ、浴室乾燥機、シューズボックス、室内洗濯機置場、角部屋などが特徴です。最寄り駅の東急田園都市線つきみ野駅から徒歩4分です。ブランシェつきみ野 204号室の詳細はハウスコム 中央林間店までお気軽にお問い合わせください!
情報更新日:
次回更新予定日:
※次回更新予定日について:お店側では順次空室確認を行っていますが、次回更新予定日までに空室確認が行えない場合には、この物件情報は自動的に削除されます。
ブランシェつきみ野 204号室の賃貸物件部屋概要
家賃 |
8.1万円
初期費用を |
|---|---|
共益費 |
3,000円
入居可能時期 |
敷金/礼金 |
- / 1ヶ月 |
保証金/ |
- / - |
最寄駅 |
|
所在地 |
神奈川県大和市つきみ野 |
部屋番号 |
204号室 |
間取り |
1K |
専有面積 |
24.51㎡ |
築年数 |
新築 |
階数 |
2階部分(地上2階建) |
方位・位置 |
南東 / 角部屋 |
物件種別 |
賃貸アパート |
構造 |
木造 |
駐車場 |
無 |
小学校学区 |
北大和小学校 |
中学校学区 |
つきみ野中学校 |
他の空き部屋 |
101号室 102号室 103号室 104号室 105号室 201号室 202号室 203号室 205号室 |
- 学区データについて
- ※学区データは必ずしも正確とは限りません。詳細に関しては最寄店舗または各自治体の教育委員会に必ずご確認ください。
ブランシェつきみ野 204号室の特徴
契約条件
敷金が無料なため、初期費用が比較的安くなる傾向にあります。
セキュリティ
この物件の建物には、オートロックや防犯カメラや宅配ボックスが設置されており、来客時には居室内のテレビモニターにて訪問者の顔を確認することができます。
室内設備
IHコンロが備え付けられています。 トイレは、温水洗浄便座機能付きになります。 女性に嬉しい設備のシャワーの付いている洗面化粧台があります。 洗濯に便利な設備として、室内洗濯機置場があります。浴室乾燥機も設置されているので、梅雨時の生乾き臭も比較的防ぐことができます。
居室状況
居室には、ロフトが設置されており大規模な収納スペースやセパレートされた寝室として活用できます。 エアコンが設置されています。 インターネットも無料で入居後すぐ生活が始められます。 収納スペースとして、玄関にはシューズボックスがあります。
建物設備共用部分
建物の共用スペースに、いざという時の防犯カメラや、急な外出や不在がちのご家庭の荷物受け取りに便利な宅配ボックスが設置されています。 駐輪場が利用できます。
周辺施設
この物件の学区は、北大和小学校区・つきみ野中学校区です。
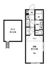
ブランシェつきみ野 204号室の間取り
間取り:1K
間取詳細:1K
専有面積:24.51㎡
方位:南東
部屋位置:角部屋
ブランシェつきみ野 204号室の設備
キッチン
IHコンロ
バス・トイレ
バス・トイレ別
浴室乾燥機
温水洗浄便座
独立洗面台
シャワー付洗面化粧台
玄関
TVモニタ付インターホン
オートロック
宅配ボックス
収納
シューズボックス
室内設備
エアコン
室内洗濯機置場
ロフト付
位置・立地
2階以上
最上階
角部屋
インフラ
プロパンガス
建物設備
防犯カメラ
駐輪場
ライフステージ
一人暮らしに人気の設備
カップルに人気の設備
家族に人気の設備
夫婦に人気の設備
三世代で人気の設備
こだわり
セキュリティ対策重視
雨の日でも洗濯したい
趣味
オークション・通販が好き
お得な条件
インターネット無料
ブランシェつきみ野 204号室の賃貸契約情報
毎月支払う |
家賃8.1万円/月共益費3,000円/月 |
|---|---|
初期費用 |
敷金-礼金1ヶ月 (8.1万円)保証金-敷引き償却金- |
更新料 |
81,000円 |
鍵交換費用 |
- |
室内清掃費用 |
- |
駐車場料金 |
無 |
損保・ |
借家賠付きの火災保険にご加入いただきます。 |
保証会社 |
加入要 保証会社利用料:日本賃貸住宅保証機構 月額総賃料の70% |
契約期間 |
2年 |
入居可能日 |
2026年01月上旬 |
フリーレント期間 |
- |
取引形態 |
一般媒介 |
備考 |
- |
ブランシェつきみ野 204号室の建物情報
建物名称 |
ブランシェつきみ野 |
|---|---|
最寄駅 |
|
所在地 |
神奈川県大和市つきみ野 |
階層 |
2階部分(地上2階建) |
構造 |
木造 |
築年数 |
新築 |
駐車場 |
無 |
小学校学区 |
北大和小学校 |
中学校学区 |
つきみ野中学校 |
- 学区データについて
- ※学区データは必ずしも正確とは限りません。詳細に関しては最寄店舗または各自治体の教育委員会に必ずご確認ください。
無料この物件に問い合わせ
- ブランシェつきみ野 204号室

-
8.1万円
(共益費
3,000円)
- 敷
- -
- 礼
- 1ヶ月
- 保
- -
- 償
- -
ブランシェつきみ野 204号室の物件のお問い合わせ先・取り扱い店舗
ハウスコム 中央林間店
- アクセス
-
小田急江ノ島線「中央林間駅」北口徒歩1分
- 住所
- 〒242-0007 神奈川県大和市中央林間3-4-13 リオデラパス2階
- 営業時間
- 10:00~18:00
- 定休日
- 水曜日
- 営業エリア
- 大和市、相模原市南区、町田市、座間市、綾瀬市、横浜市瀬谷区・緑区
- 取引態様
- 賃貸仲介業























