エクレーヌ御池 1104号室(11階/1R)の賃貸物件(賃貸マンション)
京都府京都市中京区にあるエクレーヌ御池 1104号室はTVモニタ付インターホン、クローゼット、エアコン、室内洗濯機置場、都市ガスなどが特徴です。最寄り駅の京都市営地下鉄 烏丸線烏丸御池駅から徒歩3分です。エクレーヌ御池 1104号室の詳細はクラスモ FC四条烏丸店までお気軽にお問い合わせください!
情報更新日:
次回更新予定日:
※次回更新予定日について:お店側では順次空室確認を行っていますが、次回更新予定日までに空室確認が行えない場合には、この物件情報は自動的に削除されます。
エクレーヌ御池 1104号室の賃貸物件部屋概要
家賃 |
9.5万円
初期費用を |
|---|---|
共益費 |
15,000円
入居可能時期 |
敷金/礼金 |
1ヶ月 / - |
保証金/ |
- / - |
最寄駅 |
|
所在地 |
京都府京都市中京区丸木材木町 |
部屋番号 |
1104号室 |
間取り |
1R(洋13.5) |
専有面積 |
40.14㎡ |
築年数 |
1986年7月(築40年) |
階数 |
11階部分(地上11階建) |
方位・位置 |
北 / その他 |
物件種別 |
賃貸マンション |
構造 |
SRC |
駐車場 |
無 |
小学校学区 |
高倉小学校 |
中学校学区 |
京都御池中学校 |
他の空き部屋 |
1008号室 |
- 学区データについて
- ※学区データは必ずしも正確とは限りません。詳細に関しては最寄店舗または各自治体の教育委員会に必ずご確認ください。
エクレーヌ御池 1104号室の特徴
契約条件
法人契約・事務所のご利用もご相談ください。 礼金が無料なため、初期費用が比較的安くなる傾向にあります。 お支払いは、初期費用がクレジットカードにて決済できます。
セキュリティ
この物件の建物には、オートロックが設置されており、来客時には居室内のテレビモニターにて訪問者の顔を確認することができます。
室内設備
電気コンロが備え付けられています。 洗濯に便利な設備として、室内洗濯機置場があります。
居室状況
お部屋の床は、フローリングとなっており、エアコンが設置されています。 収納スペースとして、基本的な居室にクローゼットを設置、玄関にはシューズボックスがあります。
建物設備共用部分
居室外の専有スペースとして、洗濯物を干すなどの用途として利用できるバルコニーがあります。 建物の共用スペースに、日々の出入に便利なエレベーターが設置されています。
周辺施設
この物件の学区は、高倉小学校区・京都御池中学校区です。近くには、徒歩5分(359m)でドラッグストアが、徒歩5分(336m)で銀行があります。
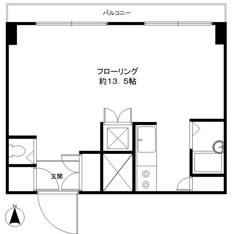
エクレーヌ御池 1104号室の間取り
間取り:1R
間取詳細:1R(洋13.5)
専有面積:40.14㎡
方位:北
部屋位置:その他
エクレーヌ御池 1104号室の設備
キッチン
電気コンロ
玄関
TVモニタ付インターホン
オートロック
収納
クローゼット
シューズボックス
バルコニー
バルコニー
室内設備
エアコン
フローリング
室内洗濯機置場
位置・立地
2階以上
最上階
インフラ
インターネット可
BS
都市ガス
建物設備
エレベーター
分譲賃貸
入居条件
事務所可・相談
即入居可
ライフステージ
一人暮らしに人気の設備
カップルに人気の設備
家族に人気の設備
夫婦に人気の設備
三世代で人気の設備
こだわり
雨の日でも洗濯したい
洋室で暮らしたい
お得な条件
初期費用カード決済可
エクレーヌ御池 1104号室の賃貸契約情報
毎月支払う |
家賃9.5万円/月共益費15,000円/月 |
|---|---|
初期費用 |
敷金1ヶ月 (9.5万円)礼金-保証金-敷引き償却金- |
更新料 |
1ヶ月 |
鍵交換費用 |
- |
室内清掃費用 |
- |
セントラル給湯 |
2,000円 |
安心サポート |
16,500円 |
駐車場料金 |
無 |
損保・ |
借家賠付きの火災保険にご加入いただきます。 |
保証会社 |
加入要 保証会社:全保連株式会社 保証会社利用料:初回契約時:50%、更新時:13,000円、引落手数料:330円/月(税込) |
契約期間 |
2年 |
入居可能日 |
即入居可 |
フリーレント期間 |
- |
取引形態 |
一般媒介 |
備考 |
交通の面もお買い物等にも大変便利な立地です。 |
エクレーヌ御池 1104号室の建物情報
建物名称 |
エクレーヌ御池 |
|---|---|
最寄駅 |
|
所在地 |
京都府京都市中京区丸木材木町 |
階層 |
11階部分(地上11階建) |
構造 |
SRC |
築年数 |
1986年7月(築40年) |
駐車場 |
無 |
小学校学区 |
高倉小学校 |
中学校学区 |
京都御池中学校 |
- 学区データについて
- ※学区データは必ずしも正確とは限りません。詳細に関しては最寄店舗または各自治体の教育委員会に必ずご確認ください。
無料この物件に問い合わせ
- エクレーヌ御池 1104号室

-
9.5万円
(共益費
15,000円)
- 敷
- 1ヶ月
- 礼
- -
- 保
- -
- 償
- -
エクレーヌ御池 1104号室の物件のお問い合わせ先・取り扱い店舗
クラスモ FC四条烏丸店
- アクセス
-
京都市営地下鉄 烏丸線「四条駅」徒歩3分
阪急京都線「烏丸駅」徒歩3分
京都市営地下鉄 烏丸線「烏丸御池駅」徒歩13分
- 住所
- 〒600-8492 京都府京都市下京区月鉾町47-4 四条廣田ビル1F
- 営業時間
- 10:00~19:00
- 定休日
- なし(年末年始)
- 営業エリア
- 京都市内全域 北区・上京区・中京区・下京区・東山区・右京区 左京区・南区・伏見区・西京区・山科区
- 取引態様
- 賃貸仲介業・FC店




































