ザ・パークハビオ名古屋松原 501号室(5階/1LDK)の賃貸物件(賃貸マンション)
愛知県名古屋市中区にあるザ・パークハビオ名古屋松原 501号室は追い焚き、浴室乾燥機、南向き、インターネット可、楽器可・相談などが特徴です。最寄り駅の名古屋市営地下鉄 鶴舞線大須観音駅から徒歩9分です。ザ・パークハビオ名古屋松原 501号室の詳細はハウスコム 中村公園店までお気軽にお問い合わせください!
情報更新日:
次回更新予定日:
※次回更新予定日について:お店側では順次空室確認を行っていますが、次回更新予定日までに空室確認が行えない場合には、この物件情報は自動的に削除されます。
ザ・パークハビオ名古屋松原 501号室の賃貸物件部屋概要
家賃 |
12.6万円
初期費用を |
|---|---|
共益費 |
12,000円
入居可能時期 |
敷金/礼金 |
126,000円 / - |
保証金/ |
- / - |
最寄駅 |
|
所在地 |
愛知県名古屋市中区松原 |
部屋番号 |
501号室 |
間取り |
1LDK(洋5.5・LDK12.1) |
専有面積 |
43.36㎡ |
築年数 |
新築 |
階数 |
5階部分(地上13階建) |
方位・位置 |
南 / 角部屋 |
物件種別 |
賃貸マンション |
構造 |
RC |
駐車場 |
24,200円 |
小学校学区 |
松原小学校 |
中学校学区 |
伊勢山中学校 |
他の空き部屋 |
1007号室 1106号室 1108号室 1201号室 1203号室 1204号室 1205号室 1305号室 1306号室 206号室 306号室 406号室 502号室 504号室 603号室 708号室 806号室 807号室 901号室 902号室 903号室 904号室 905号室 |
- 学区データについて
- ※学区データは必ずしも正確とは限りません。詳細に関しては最寄店舗または各自治体の教育委員会に必ずご確認ください。
ザ・パークハビオ名古屋松原 501号室の特徴
-
一人暮らしに人気の設備

-
カップルに人気の設備

-
家族に人気の設備

-
夫婦に人気の設備

-
三世代で人気の設備

-
セキュリティ対策重視

-
雨の日でも洗濯したい

-
洋室で暮らしたい

-
服やおしゃれが好き

-
靴やスニーカーが好き

契約条件
ペットの飼育や楽器演奏もご相談ください。 礼金が無料なため、初期費用が比較的安くなる傾向にあり、更新料が無料なので、長年お得に住み続けることができます。
セキュリティ
この物件の建物には、オートロックや防犯カメラや宅配ボックスが設置されており、来客時には居室内のテレビモニターにて訪問者の顔を確認することができます。
室内設備
お風呂とトイレは別です。お風呂には、追い焚き機能が備わっています。 トイレは、温水洗浄便座機能付きになります。 洗濯に便利な設備として、室内洗濯機置場があります。浴室乾燥機も設置されているので、梅雨時の生乾き臭も比較的防ぐことができます。
居室状況
お部屋の床は、フローリングとなっています。収納スペースとして、通常よりも収納力の高いウォークインクローゼット、玄関にはシューズインクローゼットがあります。
建物設備共用部分
建物の共用スペースに、日々の出入に便利なエレベーターや、いざという時の防犯カメラや、急な外出や不在がちのご家庭の荷物受け取りに便利な宅配ボックスが設置されています。
周辺施設
この物件の学区は、松原小学校区・伊勢山中学校区です。
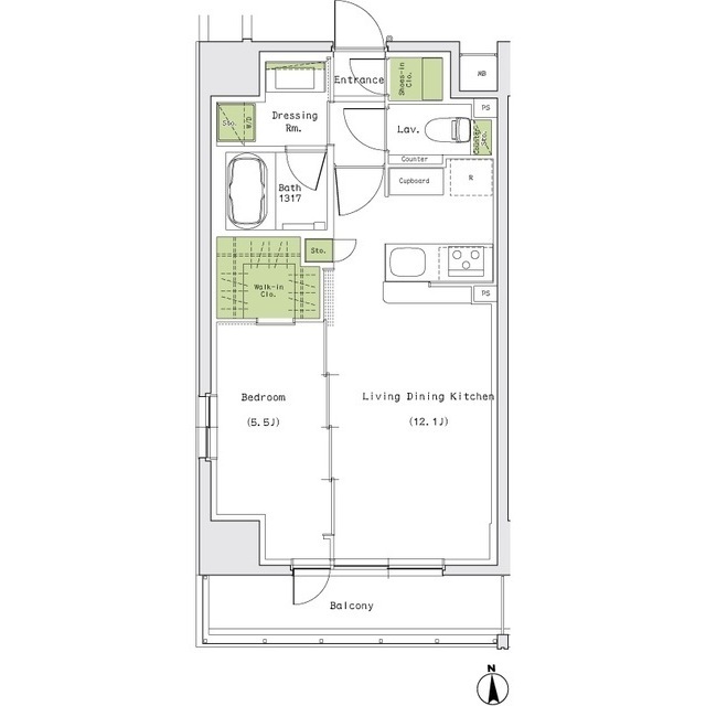
ザ・パークハビオ名古屋松原 501号室の間取り
間取り:1LDK
間取詳細:1LDK(洋5.5・LDK12.1)
専有面積:43.36㎡
方位:南
部屋位置:角部屋
ザ・パークハビオ名古屋松原 501号室の設備
バス・トイレ
バス・トイレ別
追い焚き
浴室乾燥機
温水洗浄便座
玄関
TVモニタ付インターホン
オートロック
宅配ボックス
収納
ウォークインクローゼット
シューズインクローゼット
室内設備
フローリング
室内洗濯機置場
位置・立地
2階以上
角部屋
南向き
インフラ
インターネット可
建物設備
エレベーター
防犯カメラ
入居条件
ペット可・相談
楽器可・相談
即入居可
ライフステージ
一人暮らしに人気の設備
カップルに人気の設備
家族に人気の設備
夫婦に人気の設備
三世代で人気の設備
こだわり
セキュリティ対策重視
雨の日でも洗濯したい
洋室で暮らしたい
趣味
服やおしゃれが好き
靴やスニーカーが好き
お得な条件
更新料無料
ザ・パークハビオ名古屋松原 501号室の賃貸契約情報
毎月支払う |
家賃12.6万円/月共益費12,000円/月 |
|---|---|
初期費用 |
敷金126,000円礼金-保証金-敷引き償却金- |
更新料 |
- |
鍵交換費用 |
- |
室内清掃費用 |
- |
駐車場料金 |
24,200円 |
損保・ |
借家賠付きの火災保険にご加入いただきます。 |
保証会社 |
加入要 保証会社利用料:日本セーフティー 初年度保証料:賃料等合計額の50%(最低保証料2万円)2年目以降:1年毎1万円 |
契約期間 |
- |
入居可能日 |
即入居可 |
フリーレント期間 |
- |
取引形態 |
一般媒介 |
備考 |
- |
ザ・パークハビオ名古屋松原 501号室の建物情報
建物名称 |
ザ・パークハビオ名古屋松原 |
|---|---|
最寄駅 |
|
所在地 |
愛知県名古屋市中区松原 |
階層 |
5階部分(地上13階建) |
構造 |
RC |
築年数 |
新築 |
駐車場 |
24,200円 |
小学校学区 |
松原小学校 |
中学校学区 |
伊勢山中学校 |
- 学区データについて
- ※学区データは必ずしも正確とは限りません。詳細に関しては最寄店舗または各自治体の教育委員会に必ずご確認ください。
無料この物件に問い合わせ
- ザ・パークハビオ名古屋松原 501号室

-
12.6万円
(共益費
12,000円)
- 敷
- 126,000円
- 礼
- -
- 保
- -
- 償
- -
ザ・パークハビオ名古屋松原 501号室の物件のお問い合わせ先・取り扱い店舗
ハウスコム 中村公園店
- アクセス
-
名古屋市営地下鉄 東山線「中村公園駅」徒歩1分
- 住所
- 〒453-0811 愛知県名古屋市中村区太閤通9丁目9 横田ビル 1階
- 営業時間
- 10:00~18:00
- 定休日
- なし(年末年始休業12月25日~1月3日)
- 営業エリア
- 中村区 中川区 西区 中区 港区 海部郡 あま市 清須市
- 取引態様
- 賃貸仲介業



