グラン・ドミール小田原山本丁 ***号室(10階/1LDK)の賃貸物件(賃貸マンション)
宮城県仙台市宮城野区にあるグラン・ドミール小田原山本丁 ***号室はバス・トイレ別、追い焚き、シューズボックス、室内洗濯機置場、2階以上などが特徴です。最寄り駅の仙台市交通局南北線仙台駅から徒歩15分です。グラン・ドミール小田原山本丁 ***号室の詳細はハウスコム FC仙台東口店までお気軽にお問い合わせください!
情報更新日:
次回更新予定日:
※次回更新予定日について:お店側では順次空室確認を行っていますが、次回更新予定日までに空室確認が行えない場合には、この物件情報は自動的に削除されます。
グラン・ドミール小田原山本丁 ***号室の賃貸物件部屋概要
家賃 |
8.4万円
初期費用を |
|---|---|
共益費 |
6,000円
入居可能時期 |
敷金/礼金 |
2ヶ月 / 1ヶ月 |
保証金/ |
- / - |
最寄駅 |
|
所在地 |
宮城県仙台市宮城野区小田原山本丁 |
部屋番号 |
***号室 |
間取り |
1LDK(洋5.5) |
専有面積 |
41.83㎡ |
築年数 |
2013年9月(築13年) |
階数 |
10階部分(地上12階建) |
方位・位置 |
西 / その他 |
物件種別 |
賃貸マンション |
構造 |
RC |
駐車場 |
14,300円 |
小学校学区 |
東六番丁小学校 |
中学校学区 |
五城中学校 |
他の空き部屋 |
ー |
- 学区データについて
- ※学区データは必ずしも正確とは限りません。詳細に関しては最寄店舗または各自治体の教育委員会に必ずご確認ください。
グラン・ドミール小田原山本丁 ***号室の特徴
契約条件
お支払いは、初期費用がクレジットカードにて決済できます。
セキュリティ
この物件の建物には、オートロックや宅配ボックスが設置されており、来客時には居室内のテレビモニターにて訪問者の顔を確認することができます。
室内設備
システムキッチンには、IHコンロが備え付けられています。 お風呂とトイレは別です。お風呂には、追い焚き機能が備わっています。 トイレは、温水洗浄便座機能付きになります。 女性に嬉しい設備のシャワーの付いている洗面化粧台があります。 洗濯に便利な設備として、室内洗濯機置場があります。
居室状況
お部屋の床は、フローリングとなっており、エアコンが設置されています。 収納スペースとして、基本的な居室にクローゼットを設置、玄関にはシューズボックスがあります。
建物設備共用部分
居室外の専有スペースとして、洗濯物を干すなどの用途として利用できるバルコニーがあります。 建物の共用スペースに、日々の出入に便利なエレベーターや、急な外出や不在がちのご家庭の荷物受け取りに便利な宅配ボックスが設置されています。 駐輪場が利用できます。
周辺施設
この物件の学区は、東六番丁小学校区・五城中学校区です。近くには、徒歩6分(433m)でドラッグストアがあります。
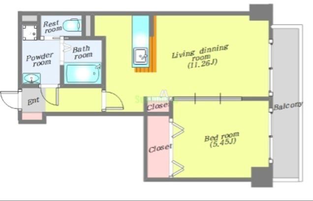
グラン・ドミール小田原山本丁 ***号室の間取り
間取り:1LDK
間取詳細:1LDK(洋5.5)
専有面積:41.83㎡
方位:西
部屋位置:その他
グラン・ドミール小田原山本丁 ***号室の設備
キッチン
システムキッチン
IHコンロ
バス・トイレ
バス・トイレ別
追い焚き
温水洗浄便座
独立洗面台
シャワー付洗面化粧台
玄関
TVモニタ付インターホン
オートロック
宅配ボックス
収納
クローゼット
シューズボックス
バルコニー
バルコニー
室内設備
エアコン
フローリング
室内洗濯機置場
位置・立地
2階以上
インフラ
インターネット可
BS
CS
プロパンガス
建物設備
エレベーター
駐輪場
ライフステージ
一人暮らしに人気の設備
カップルに人気の設備
家族に人気の設備
夫婦に人気の設備
三世代で人気の設備
こだわり
雨の日でも洗濯したい
洋室で暮らしたい
お得な条件
初期費用カード決済可
グラン・ドミール小田原山本丁 ***号室の賃貸契約情報
毎月支払う |
家賃8.4万円/月共益費6,000円/月 |
|---|---|
初期費用 |
敷金2ヶ月 (16.8万円)礼金1ヶ月 (8.4万円)保証金-敷引き償却金- |
更新料 |
- |
鍵交換費用 |
- |
室内清掃費用 |
- |
駐車場料金 |
14,300円 |
損保・ |
借家賠付きの火災保険にご加入いただきます。 |
保証会社 |
加入要 保証会社:その他 保証会社利用料:初回契約時:40%、更新時:10,000円 |
契約期間 |
2年 |
入居可能日 |
相談 |
フリーレント期間 |
- |
取引形態 |
一般媒介 |
備考 |
- |
グラン・ドミール小田原山本丁 ***号室の建物情報
建物名称 |
グラン・ドミール小田原山本丁 |
|---|---|
最寄駅 |
|
所在地 |
宮城県仙台市宮城野区小田原山本丁 |
階層 |
10階部分(地上12階建) |
構造 |
RC |
築年数 |
2013年9月(築13年) |
駐車場 |
14,300円 |
小学校学区 |
東六番丁小学校 |
中学校学区 |
五城中学校 |
- 学区データについて
- ※学区データは必ずしも正確とは限りません。詳細に関しては最寄店舗または各自治体の教育委員会に必ずご確認ください。
無料この物件に問い合わせ
- グラン・ドミール小田原山本丁 ***号室

-
8.4万円
(共益費
6,000円)
- 敷
- 2ヶ月
- 礼
- 1ヶ月
- 保
- -
- 償
- -
グラン・ドミール小田原山本丁 ***号室の物件のお問い合わせ先・取り扱い店舗
ハウスコム FC仙台東口店
- アクセス
-
仙石線「榴ケ岡駅」徒歩4分
東北本線「仙台駅」徒歩6分
仙台市交通局東西線「宮城野通駅」徒歩5分
- 住所
- 〒983-0852 宮城県仙台市宮城野区榴岡4丁目12-2 オダシマビル301
- 営業時間
- 10:00~18:00
- 定休日
- 水曜日
- 営業エリア
- 宮城県仙台市全域・富谷市・名取市・多賀城市
- 取引態様
- 賃貸仲介業・FC店






























