エルスタンザ白金 603号室(6階/1R)の賃貸物件(賃貸マンション)
東京都港区にあるエルスタンザ白金 603号室はバス・トイレ別、シューズボックス、オール電化、楽器可・相談、保証人不要などが特徴です。最寄り駅の都営三田線白金台駅から徒歩2分です。エルスタンザ白金 603号室の詳細はハウスコム 五反田店までお気軽にお問い合わせください!
情報更新日:
次回更新予定日:
※次回更新予定日について:お店側では順次空室確認を行っていますが、次回更新予定日までに空室確認が行えない場合には、この物件情報は自動的に削除されます。
エルスタンザ白金 603号室の賃貸物件部屋概要
家賃 |
15万円
初期費用を |
|---|---|
共益費 |
10,000円
入居可能時期 |
敷金/礼金 |
1ヶ月 / - |
保証金/ |
- / - |
最寄駅 |
|
所在地 |
東京都港区白金台 |
部屋番号 |
603号室 |
間取り |
1R(洋12.3) |
専有面積 |
27.79㎡ |
築年数 |
2007年8月(築19年) |
階数 |
6階部分(地上14階地下2階建) |
方位・位置 |
北 / 角部屋 |
物件種別 |
賃貸マンション |
構造 |
SRC |
駐車場 |
無 |
小学校学区 |
白金小学校 |
中学校学区 |
高松中学校 |
他の空き部屋 |
ー |
- 学区データについて
- ※学区データは必ずしも正確とは限りません。詳細に関しては最寄店舗または各自治体の教育委員会に必ずご確認ください。
エルスタンザ白金 603号室の特徴
-
一人暮らしに人気の設備

-
カップルに人気の設備

-
家族に人気の設備

-
夫婦に人気の設備

-
三世代で人気の設備

-
セキュリティ対策重視

-
外で子どもと遊びたい

-
雨の日でも洗濯したい

-
洋室で暮らしたい

-
服やおしゃれが好き

-
ガーデニングが好き

契約条件
楽器演奏もご相談ください。 また、ご契約時に保証人は不要です。 礼金が無料なため、初期費用が比較的安くなる傾向にあります。
セキュリティ
この物件の建物には、オートロックや防犯カメラや宅配ボックスが設置されており、来客時には居室内のテレビモニターにて訪問者の顔を確認することができます。
室内設備
システムキッチンには、IHコンロが設置されており、キッチン設備として冷蔵庫が備え付けられています。 トイレは、温水洗浄便座機能付きになります。 女性に嬉しい設備の独立した洗面化粧台があります。 洗濯に便利な設備として、室内洗濯機置場があります。浴室乾燥機も設置されているので、梅雨時の生乾き臭も比較的防ぐことができます。
居室状況
お部屋の床は、フローリングとなっており、エアコンと一部床下暖房が設置されています。 収納スペースとして、基本的な居室にクローゼットを設置、通常よりも収納力の高いウォークインクローゼット、玄関にはシューズボックスがあります。
建物設備共用部分
居室外の専有スペースとして、洗濯物を干すなどの用途として利用できるバルコニーがあります。 建物の共用スペースに、日々の出入に便利なエレベーターや、いざという時の防犯カメラや、急な外出や不在がちのご家庭の荷物受け取りに便利な宅配ボックスが設置されています。
周辺施設
この物件の学区は、白金小学校区・高松中学校区です。近くには、徒歩4分(258m)でマルエツプチ白金台店があります。
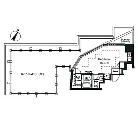
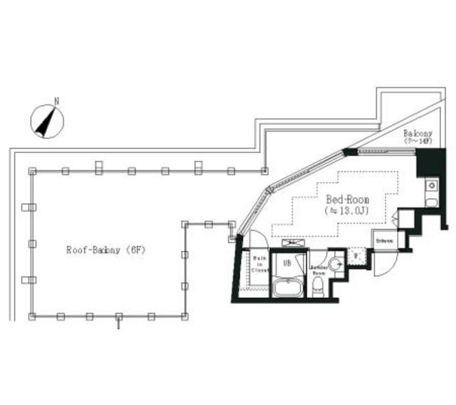
エルスタンザ白金 603号室の間取り
間取り:1R
間取詳細:1R(洋12.3)
専有面積:27.79㎡
方位:北
部屋位置:角部屋
エルスタンザ白金 603号室の設備
キッチン
システムキッチン
IHコンロ
冷蔵庫付
バス・トイレ
バス・トイレ別
浴室乾燥機
温水洗浄便座
独立洗面台
玄関
TVモニタ付インターホン
オートロック
宅配ボックス
収納
クローゼット
ウォークインクローゼット
シューズボックス
バルコニー
バルコニー
ルーフバルコニー
室内設備
エアコン
フローリング
床下暖房
室内洗濯機置場
位置・立地
2階以上
角部屋
インフラ
インターネット可
BS
CS
オール電化
建物設備
エレベーター
防犯カメラ
入居条件
楽器可・相談
オンライン相談可
オンライン内見可
保証人不要
即入居可
ライフステージ
一人暮らしに人気の設備
カップルに人気の設備
家族に人気の設備
夫婦に人気の設備
三世代で人気の設備
こだわり
セキュリティ対策重視
外で子どもと遊びたい
雨の日でも洗濯したい
洋室で暮らしたい
趣味
服やおしゃれが好き
ガーデニングが好き
お得な条件
フリーレント
エルスタンザ白金 603号室の賃貸契約情報
毎月支払う |
家賃15万円/月共益費10,000円/月 |
|---|---|
初期費用 |
敷金1ヶ月 (15万円)礼金-保証金-敷引き償却金- |
更新料 |
150,000円 |
鍵交換費用 |
- |
室内清掃費用 |
- |
室内清掃費 |
44,000円 |
鍵交換費 |
22,000円 |
駐車場料金 |
無 |
損保・ |
借家賠付きの火災保険にご加入いただきます。 |
保証会社 |
加入要 保証会社利用料:保証会社名:クレディセゾン・レジデントアシスタンス株式会社/初回保証委託料(最低15000円):月額賃料等の50%、 2年目以降:10000円/年 |
契約期間 |
2年 |
入居可能日 |
即入居可 |
フリーレント期間 |
1ヶ月 |
取引形態 |
一般媒介 |
備考 |
火災保険加入要 |
エルスタンザ白金 603号室の建物情報
建物名称 |
エルスタンザ白金 |
|---|---|
最寄駅 |
|
所在地 |
東京都港区白金台 |
階層 |
6階部分(地上14階地下2階建) |
構造 |
SRC |
築年数 |
2007年8月(築19年) |
駐車場 |
無 |
小学校学区 |
白金小学校 |
中学校学区 |
高松中学校 |
- 学区データについて
- ※学区データは必ずしも正確とは限りません。詳細に関しては最寄店舗または各自治体の教育委員会に必ずご確認ください。
無料この物件に問い合わせ
- エルスタンザ白金 603号室

-
15万円
(共益費
10,000円)
- 敷
- 1ヶ月
- 礼
- -
- 保
- -
- 償
- -
エルスタンザ白金 603号室の物件のお問い合わせ先・取り扱い店舗
ハウスコム 五反田店
- アクセス
-
山手線「五反田駅」東口徒歩1分
都営浅草線「五反田駅」A6出口より徒歩1分
- 住所
- 〒141-0022 東京都品川区東五反田1丁目12−12 落合ビル 2F
- 営業時間
- 10:00~18:00
- 定休日
- なし
- 営業エリア
- 品川区,大田区,港区,目黒区
- 取引態様
- 賃貸仲介業





















