アプリーレ中之島 ***号室(3階/1LDK)の賃貸物件(賃貸マンション)
大阪府大阪市北区にあるアプリーレ中之島 ***号室はルーフバルコニー、フローリング、防犯カメラ、バイク置き場、事務所可・相談などが特徴です。最寄り駅の京阪中之島線中之島(大阪国際会議場)駅から徒歩4分です。アプリーレ中之島 ***号室の詳細はミニミニ FC肥後橋店までお気軽にお問い合わせください!
情報更新日:
次回更新予定日:
※次回更新予定日について:お店側では順次空室確認を行っていますが、次回更新予定日までに空室確認が行えない場合には、この物件情報は自動的に削除されます。
アプリーレ中之島 ***号室の賃貸物件部屋概要
家賃 |
12.5万円
初期費用を |
|---|---|
共益費 |
9,000円
入居可能時期 |
敷金/礼金 |
- / 134,000円 |
保証金/ |
- / - |
最寄駅 |
|
所在地 |
大阪府大阪市北区中之島 |
部屋番号 |
***号室 |
間取り |
1LDK(LDK11.4・洋2.7) |
専有面積 |
34.36㎡ |
築年数 |
2020年10月(築6年) |
階数 |
3階部分(地上15階建) |
方位・位置 |
西 / 角部屋 |
物件種別 |
賃貸マンション |
構造 |
RC |
駐車場 |
27,500円 |
小学校学区 |
中之島小学校 |
中学校学区 |
中之島中学校 |
他の空き部屋 |
***号室 ***号室 |
- 学区データについて
- ※学区データは必ずしも正確とは限りません。詳細に関しては最寄店舗または各自治体の教育委員会に必ずご確認ください。
アプリーレ中之島 ***号室の特徴
-
一人暮らしに人気の設備

-
カップルに人気の設備

-
家族に人気の設備

-
夫婦に人気の設備

-
三世代で人気の設備

-
セキュリティ対策重視

-
外で子どもと遊びたい

-
雨の日でも洗濯したい

-
洋室で暮らしたい

-
服やおしゃれが好き

-
靴やスニーカーが好き

-
推し活グッズを飾りたい

-
オークション・通販が好き

-
ガーデニングが好き

契約条件
この物件は、2人入居もご契約できます。 ペットの飼育、法人契約・事務所のご利用もご相談ください。 敷金が無料なため、初期費用が比較的安くなる傾向にあります。
セキュリティ
この物件の建物には、オートロックや防犯カメラや宅配ボックスが設置されており、来客時には居室内のテレビモニターにて訪問者の顔を確認することができます。
室内設備
システムキッチンには、2つ以上のガスコンロが備え付けられています。 トイレは、温水洗浄便座機能付きになります。 女性に嬉しい設備の独立した洗面化粧台があります。 洗濯に便利な設備として、室内洗濯機置場があります。浴室乾燥機も設置されているので、梅雨時の生乾き臭も比較的防ぐことができます。
居室状況
お部屋の床は、フローリングとなっており、エアコンが設置されています。 インターネットも無料で入居後すぐ生活が始められます。 収納スペースとして、通常よりも収納力の高いウォークインクローゼット、玄関にはシューズインクローゼットがあります。
建物設備共用部分
居室外の専有スペースとして、洗濯物を干すなどの用途として利用できるバルコニーがあります。 建物の共用スペースに、日々の出入に便利なエレベーターや、いざという時の防犯カメラや、急な外出や不在がちのご家庭の荷物受け取りに便利な宅配ボックスが設置されています。 駐輪場、バイク置き場が利用できます。
周辺施設
この物件の学区は、中之島小学校区・中之島中学校区です。
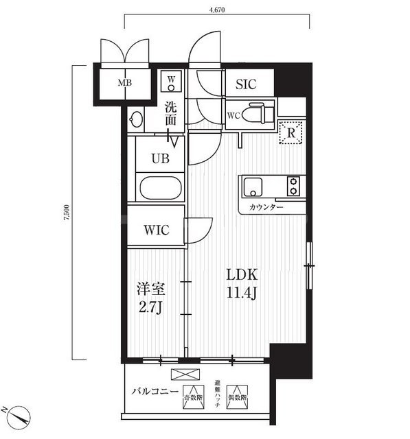
アプリーレ中之島 ***号室の間取り
間取り:1LDK
間取詳細:1LDK(LDK11.4・洋2.7)
専有面積:34.36㎡
方位:西
部屋位置:角部屋
アプリーレ中之島 ***号室の設備
キッチン
システムキッチン
カウンターキッチン
ガスコンロ
ガスコンロ二口以上
バス・トイレ
バス・トイレ別
浴室乾燥機
温水洗浄便座
独立洗面台
玄関
TVモニタ付インターホン
オートロック
宅配ボックス
収納
ウォークインクローゼット
シューズインクローゼット
バルコニー
バルコニー
ルーフバルコニー
室内設備
エアコン
フローリング
室内洗濯機置場
位置・立地
2階以上
角部屋
インフラ
インターネット可
CATV
BS
都市ガス
建物設備
エレベーター
防犯カメラ
駐輪場
バイク置き場
入居条件
ペット可・相談
2人入居可
事務所可・相談
オンライン相談可
オンライン内見可
ライフステージ
一人暮らしに人気の設備
カップルに人気の設備
家族に人気の設備
夫婦に人気の設備
三世代で人気の設備
こだわり
セキュリティ対策重視
外で子どもと遊びたい
雨の日でも洗濯したい
洋室で暮らしたい
趣味
服やおしゃれが好き
靴やスニーカーが好き
推し活グッズを飾りたい
オークション・通販が好き
ガーデニングが好き
お得な条件
インターネット無料
アプリーレ中之島 ***号室の賃貸契約情報
毎月支払う |
家賃12.5万円/月共益費9,000円/月 |
|---|---|
初期費用 |
敷金-礼金134,000円保証金-敷引き償却金- |
更新料 |
30,000円 |
鍵交換費用 |
33,000円 |
室内清掃費用 |
- |
駐車場料金 |
27,500円 |
損保・ |
借家賠付きの火災保険にご加入いただきます。 |
保証会社 |
加入要 保証会社利用料:初回保証料は賃料等の50%、月額保証料は賃料等の1%、その他保証会社条件有 |
契約期間 |
2年 |
入居可能日 |
即入居可 |
フリーレント期間 |
- |
取引形態 |
一般媒介 |
備考 |
鍵交換代 33000円 保証会社利用必須 初回保証料は賃料等の50%、月額保証料は賃料等の1%、その他保証会社条件有 |
アプリーレ中之島 ***号室の建物情報
建物名称 |
アプリーレ中之島 |
|---|---|
最寄駅 |
|
所在地 |
大阪府大阪市北区中之島 |
階層 |
3階部分(地上15階建) |
構造 |
RC |
築年数 |
2020年10月(築6年) |
駐車場 |
27,500円 |
小学校学区 |
中之島小学校 |
中学校学区 |
中之島中学校 |
- 学区データについて
- ※学区データは必ずしも正確とは限りません。詳細に関しては最寄店舗または各自治体の教育委員会に必ずご確認ください。
無料この物件に問い合わせ
- アプリーレ中之島 ***号室

-
12.5万円
(共益費
9,000円)
- 敷
- -
- 礼
- 134,000円
- 保
- -
- 償
- -
アプリーレ中之島 ***号室の物件のお問い合わせ先・取り扱い店舗
ミニミニ FC肥後橋店
- アクセス
-
大阪メトロ 四つ橋線「肥後橋駅」徒歩1分
- 住所
- 〒550-0002 大阪府大阪市西区江戸堀1-13-17
- 営業時間
- 10:00~18:00
- 定休日
- 水曜日(年末年始休み12月25日から1月3日まで)
- 営業エリア
- 大阪市西区,大阪市中央区,大阪市北区,大阪市福島区,大阪市都島区,大阪市淀川区,大阪市東淀川区,大阪市西淀川区
- 取引態様
- 賃貸仲介業


























