ディームス目黒行人坂 211号室(2階/1K)の賃貸物件(賃貸マンション)
東京都目黒区にあるディームス目黒行人坂 211号室は追い焚き、TVモニタ付インターホン、宅配ボックス、エアコン、2階以上などが特徴です。最寄り駅の東急目黒線目黒駅から徒歩6分です。ディームス目黒行人坂 211号室の詳細はハウスコム 五反田店までお気軽にお問い合わせください!
情報更新日:
次回更新予定日:
※次回更新予定日について:お店側では順次空室確認を行っていますが、次回更新予定日までに空室確認が行えない場合には、この物件情報は自動的に削除されます。
ディームス目黒行人坂 211号室の賃貸物件部屋概要
家賃 |
16.1万円
初期費用を |
|---|---|
共益費 |
6,000円
入居可能時期 |
敷金/礼金 |
161,000円 / 161,000円 |
保証金/ |
- / - |
最寄駅 |
|
所在地 |
東京都目黒区下目黒 |
部屋番号 |
211号室 |
間取り |
1K(洋8.9・K0) |
専有面積 |
27.47㎡ |
築年数 |
2019年2月(築7年) |
階数 |
2階部分(地上7階建) |
方位・位置 |
北西 / その他 |
物件種別 |
賃貸マンション |
構造 |
RC |
駐車場 |
無 |
小学校学区 |
下目黒小学校 |
中学校学区 |
大鳥中学校 |
他の空き部屋 |
407号室 |
- 学区データについて
- ※学区データは必ずしも正確とは限りません。詳細に関しては最寄店舗または各自治体の教育委員会に必ずご確認ください。
ディームス目黒行人坂 211号室の特徴
セキュリティ
この物件の建物には、オートロックや宅配ボックスが設置されており、来客時には居室内のテレビモニターにて訪問者の顔を確認することができます。
室内設備
お風呂とトイレは別です。お風呂には、追い焚き機能が備わっています。
居室状況
エアコンが設置されています。
建物設備共用部分
建物の共用スペースに、日々の出入に便利なエレベーターや、急な外出や不在がちのご家庭の荷物受け取りに便利な宅配ボックスが設置されています。 駐輪場、バイク置き場が利用できます。
周辺施設
この物件の学区は、下目黒小学校区・大鳥中学校区です。
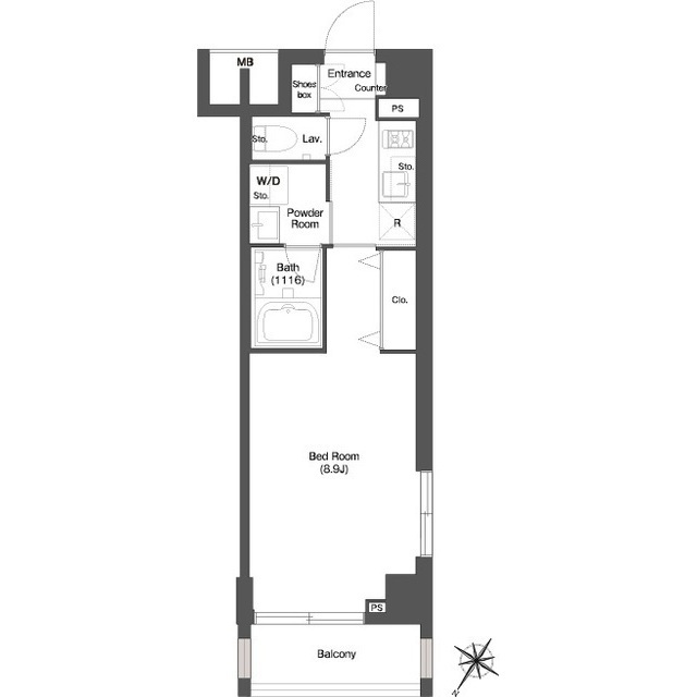
ディームス目黒行人坂 211号室の間取り
間取り:1K
間取詳細:1K(洋8.9・K0)
専有面積:27.47㎡
方位:北西
部屋位置:その他
ディームス目黒行人坂 211号室の設備
バス・トイレ
バス・トイレ別
追い焚き
玄関
TVモニタ付インターホン
オートロック
宅配ボックス
室内設備
エアコン
位置・立地
2階以上
建物設備
エレベーター
駐輪場
バイク置き場
ライフステージ
一人暮らしに人気の設備
カップルに人気の設備
家族に人気の設備
夫婦に人気の設備
三世代で人気の設備
ディームス目黒行人坂 211号室の賃貸契約情報
毎月支払う |
家賃16.1万円/月共益費6,000円/月 |
|---|---|
初期費用 |
敷金161,000円礼金161,000円保証金-敷引き償却金- |
更新料 |
161,000円 |
鍵交換費用 |
- |
室内清掃費用 |
- |
鍵交換代 |
33,000円 |
駐車場料金 |
無 |
損保・ |
借家賠付きの火災保険にご加入いただきます。 |
保証会社 |
加入要 保証会社利用料:オリコフォレントインシュア 保証料:賃料等の40%(最低2万)、月次保証料:賃料等の1%(更新料無) |
契約期間 |
定期借家 2年 |
入居可能日 |
即入居可 |
フリーレント期間 |
- |
取引形態 |
一般媒介 |
備考 |
- |
ディームス目黒行人坂 211号室の建物情報
建物名称 |
ディームス目黒行人坂 |
|---|---|
最寄駅 |
|
所在地 |
東京都目黒区下目黒 |
階層 |
2階部分(地上7階建) |
構造 |
RC |
築年数 |
2019年2月(築7年) |
駐車場 |
無 |
小学校学区 |
下目黒小学校 |
中学校学区 |
大鳥中学校 |
1/5 外観
- 学区データについて
- ※学区データは必ずしも正確とは限りません。詳細に関しては最寄店舗または各自治体の教育委員会に必ずご確認ください。
無料この物件に問い合わせ
- ディームス目黒行人坂 211号室

-
16.1万円
(共益費
6,000円)
- 敷
- 161,000円
- 礼
- 161,000円
- 保
- -
- 償
- -
ディームス目黒行人坂 211号室の物件のお問い合わせ先・取り扱い店舗
ハウスコム 五反田店
水曜日営業
土日営業
年中無休(年末年始などを除く)
- アクセス
-
山手線「五反田駅」東口徒歩1分
都営浅草線「五反田駅」A6出口より徒歩1分
- 住所
- 〒141-0022 東京都品川区東五反田1丁目12−12 落合ビル 2F
- 営業時間
- 10:00~18:00
- 定休日
- なし(年末年始は休業)
- 営業エリア
- 品川区,大田区,港区,目黒区
- 取引態様
- 賃貸仲介業
お問い合わせNo. HC5-148111-211-0035










