ソルテラスOSAKA MID EASTクレアスト ***号室(4階/1K)の賃貸物件(賃貸マンション)
大阪府大阪市東成区にあるソルテラスOSAKA MID EASTクレアスト ***号室はガスコンロ、宅配ボックス、クローゼット、エアコン、オンライン内見可などが特徴です。最寄り駅の大阪メトロ 千日前線新深江駅から徒歩6分です。ソルテラスOSAKA MID EASTクレアスト ***号室の詳細はハウスコム FC今里店までお気軽にお問い合わせください!
情報更新日:
次回更新予定日:
※次回更新予定日について:お店側では順次空室確認を行っていますが、次回更新予定日までに空室確認が行えない場合には、この物件情報は自動的に削除されます。
ソルテラスOSAKA MID EASTクレアスト ***号室の賃貸物件部屋概要
家賃 |
6.75万円
初期費用を |
|---|---|
共益費 |
6,780円
入居可能時期 |
敷金/礼金 |
- / 1ヶ月 |
保証金/ |
- / - |
最寄駅 |
|
所在地 |
大阪府大阪市東成区大今里 |
部屋番号 |
***号室 |
間取り |
1K(K0・洋8) |
専有面積 |
23.94㎡ |
築年数 |
2025年3月 |
階数 |
4階部分(地上10階建) |
方位・位置 |
東 / その他 |
物件種別 |
賃貸マンション |
構造 |
RC |
駐車場 |
近隣 20,900円 |
小学校学区 |
神路小学校 |
中学校学区 |
相生中学校 |
他の空き部屋 |
***号室 |
- 学区データについて
- ※学区データは必ずしも正確とは限りません。詳細に関しては最寄店舗または各自治体の教育委員会に必ずご確認ください。
ソルテラスOSAKA MID EASTクレアスト ***号室の特徴
-
一人暮らしに人気の設備

-
カップルに人気の設備

-
家族に人気の設備

-
夫婦に人気の設備

-
三世代で人気の設備

-
セキュリティ対策重視

-
身だしなみに気をつかいたい

-
雨の日でも洗濯したい

-
洋室で暮らしたい

-
オークション・通販が好き

契約条件
ペットの飼育もご相談ください。 敷金が無料なため、初期費用が比較的安くなる傾向にあります。 お支払いは、初期費用がクレジットカードにて決済できます。
セキュリティ
この物件の建物には、オートロックや防犯カメラや宅配ボックスが設置されており、来客時には居室内のテレビモニターにて訪問者の顔を確認することができます。
室内設備
システムキッチンには、2つ以上のガスコンロが備え付けられています。 トイレは、温水洗浄便座機能付きになります。 女性に嬉しい設備のシャワーの付いている洗面化粧台があります。 洗濯に便利な設備として、室内洗濯機置場があります。浴室乾燥機も設置されているので、梅雨時の生乾き臭も比較的防ぐことができます。
居室状況
お部屋の床は、フローリングとなっており、エアコンが設置されています。 照明器具が備え付けられており、インターネットも無料で入居後すぐ生活が始められます。 収納スペースとして、基本的な居室にクローゼットを設置、玄関にはシューズボックスがあります。
建物設備共用部分
居室外の専有スペースとして、洗濯物を干すなどの用途として利用できるバルコニーがあります。 建物の共用スペースに、日々の出入に便利なエレベーターや、いざという時の防犯カメラや、急な外出や不在がちのご家庭の荷物受け取りに便利な宅配ボックスが設置されています。 駐輪場、バイク置き場が利用できます。
周辺施設
この物件の学区は、神路小学校区・相生中学校区です。近くには、徒歩9分(720m)でドラッグストアがあります。
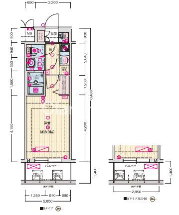
ソルテラスOSAKA MID EASTクレアスト ***号室の間取り
間取り:1K
間取詳細:1K(K0・洋8)
専有面積:23.94㎡
方位:東
部屋位置:その他
ソルテラスOSAKA MID EASTクレアスト ***号室の設備
キッチン
システムキッチン
ガスコンロ
ガスコンロ二口以上
バス・トイレ
バス・トイレ別
浴室乾燥機
温水洗浄便座
独立洗面台
シャワー付洗面化粧台
玄関
TVモニタ付インターホン
オートロック
宅配ボックス
収納
クローゼット
シューズボックス
バルコニー
バルコニー
室内設備
エアコン
フローリング
室内洗濯機置場
照明器具付
位置・立地
2階以上
インフラ
インターネット可
都市ガス
建物設備
エレベーター
防犯カメラ
24時間換気システム
駐輪場
バイク置き場
分譲賃貸
入居条件
ペット可・相談
オンライン内見可
ライフステージ
一人暮らしに人気の設備
カップルに人気の設備
家族に人気の設備
夫婦に人気の設備
三世代で人気の設備
こだわり
セキュリティ対策重視
身だしなみに気をつかいたい
雨の日でも洗濯したい
洋室で暮らしたい
趣味
オークション・通販が好き
お得な条件
インターネット無料
初期費用カード決済可
ソルテラスOSAKA MID EASTクレアスト ***号室の賃貸契約情報
毎月支払う |
家賃6.75万円/月共益費6,780円/月 |
|---|---|
初期費用 |
敷金-礼金1ヶ月 (6.75万円)保証金-敷引き償却金- |
更新料 |
- |
鍵交換費用 |
33,000円 |
室内清掃費用 |
44,000円 |
火災保険+付帯サービス |
1,735円 |
駐車場料金 |
近隣 20,900円 |
損保・ |
借家賠付きの火災保険にご加入いただきます。 |
保証会社 |
加入要 保証会社:全保連㈱ 保証会社利用料:初回契約時:50%、更新時:1%、引落手数料330円/月 |
契約期間 |
2年 |
入居可能日 |
相談 |
フリーレント期間 |
- |
取引形態 |
仲介 |
備考 |
インターネット掲載物件に関わらず、大阪市内全域のお部屋探しが可能となっております!複数の業者にお問い合わせすることなく弊社にて正確な最新の空室状況をご確認させていただきます♪初期費用分割決算も可能となっており、ご都合に合わせて支払い回数も選べます!現地で待ち合わせ、営業時間外のご案内、保証人なし、法人契約、初期費用等その他何でもご相談下さい!インターネットに掲載していない非公開物件ご用意してます! |
ソルテラスOSAKA MID EASTクレアスト ***号室の建物情報
建物名称 |
ソルテラスOSAKA MID EASTクレアスト |
|---|---|
最寄駅 |
|
所在地 |
大阪府大阪市東成区大今里 |
階層 |
4階部分(地上10階建) |
構造 |
RC |
築年数 |
2025年3月 |
駐車場 |
近隣 20,900円 |
小学校学区 |
神路小学校 |
中学校学区 |
相生中学校 |
- 学区データについて
- ※学区データは必ずしも正確とは限りません。詳細に関しては最寄店舗または各自治体の教育委員会に必ずご確認ください。
無料この物件に問い合わせ
- ソルテラスOSAKA MID EASTクレアスト ***号室

-
6.75万円
(共益費
6,780円)
- 敷
- -
- 礼
- 1ヶ月
- 保
- -
- 償
- -
ソルテラスOSAKA MID EASTクレアスト ***号室の物件のお問い合わせ先・取り扱い店舗
ハウスコム FC今里店
- アクセス
-
大阪メトロ 千日前線「今里駅」徒歩1分
大阪メトロ 今里筋線「今里駅」徒歩1分
大阪メトロ 千日前線「新深江駅」徒歩9分
- 住所
- 〒537-0013 大阪府大阪市東成区大今里南1丁目2-11
- 営業時間
- 10:00~19:00
- 定休日
- なし(年末年始を除く)
- 営業エリア
- 大阪市全域 都島区・福島区・此花区・西区・港区・大正区・天王寺区・浪速区 ・西淀川区・東淀川区・東成区・生野区・旭区・城東区 ・阿倍野区・住吉区・東住吉区・西成区・淀川区 ・鶴見区・住之江区・平野区・北区・中央区
- 取引態様
- 賃貸仲介業・FC店





























