グランコンフォール武蔵小杉 ***号室(1階/1R)の賃貸物件(賃貸アパート)
神奈川県川崎市中原区にあるグランコンフォール武蔵小杉 ***号室はガスコンロ、シューズボックス、エアコン、室内洗濯機置場、外国人可・相談などが特徴です。最寄り駅の東急東横線新丸子駅から徒歩6分です。グランコンフォール武蔵小杉 ***号室の詳細はハウスコム 元住吉店までお気軽にお問い合わせください!
情報更新日:
次回更新予定日:
※次回更新予定日について:お店側では順次空室確認を行っていますが、次回更新予定日までに空室確認が行えない場合には、この物件情報は自動的に削除されます。
グランコンフォール武蔵小杉 ***号室の賃貸物件部屋概要
家賃 |
7.3万円
初期費用を |
|---|---|
共益費 |
4,000円
入居可能時期 |
敷金/礼金 |
- / - |
保証金/ |
2ヶ月 / 2ヶ月 |
最寄駅 |
|
所在地 |
神奈川県川崎市中原区上丸子八幡町 |
部屋番号 |
***号室 |
間取り |
1R(洋5.5) |
専有面積 |
15.03㎡ |
築年数 |
2016年1月(築10年) |
階数 |
1階部分(地上2階建) |
方位・位置 |
東 / その他 |
物件種別 |
賃貸アパート |
構造 |
木造 |
駐車場 |
無 |
小学校学区 |
上丸子小学校 |
中学校学区 |
中原中学校 |
他の空き部屋 |
ー |
- 学区データについて
- ※学区データは必ずしも正確とは限りません。詳細に関しては最寄店舗または各自治体の教育委員会に必ずご確認ください。
グランコンフォール武蔵小杉 ***号室の特徴
契約条件
この物件は、外国籍の方もご相談の上、ご契約できます。 また、ご契約時に保証人は不要です。 敷金と礼金が無料なため、初期費用が比較的安くなる傾向にあります。
セキュリティ
来客時には居室内のテレビモニターにて訪問者の顔を確認することができます。
室内設備
システムキッチンには、ガスコンロが備え付けられています。 トイレは、温水洗浄便座機能付きになります。 洗濯に便利な設備として、室内洗濯機置場があります。浴室乾燥機も設置されているので、梅雨時の生乾き臭も比較的防ぐことができます。
居室状況
居室には、ロフトが設置されており大規模な収納スペースやセパレートされた寝室として活用できます。 お部屋の床は、フローリングとなっており、エアコンが設置されています。 照明器具が備え付けられており、入居後すぐ生活が始められます。 収納スペースとして、玄関にはシューズボックスがあります。
周辺施設
この物件の学区は、上丸子小学校区・中原中学校区です。
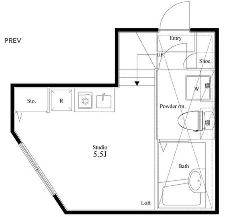
グランコンフォール武蔵小杉 ***号室の間取り
間取り:1R
間取詳細:1R(洋5.5)
専有面積:15.03㎡
方位:東
部屋位置:その他
グランコンフォール武蔵小杉 ***号室の設備
キッチン
システムキッチン
ガスコンロ
バス・トイレ
バス・トイレ別
浴室乾燥機
温水洗浄便座
玄関
TVモニタ付インターホン
収納
シューズボックス
室内設備
エアコン
フローリング
室内洗濯機置場
ロフト付
照明器具付
デザイナーズ
位置・立地
1階
インフラ
インターネット可
プロパンガス
入居条件
外国人可・相談
オンライン相談可
オンライン内見可
保証人不要
ライフステージ
一人暮らしに人気の設備
カップルに人気の設備
家族に人気の設備
夫婦に人気の設備
三世代で人気の設備
トレンド
ミニマリスト
こだわり
雨の日でも洗濯したい
洋室で暮らしたい
グランコンフォール武蔵小杉 ***号室の賃貸契約情報
毎月支払う |
家賃7.3万円/月共益費4,000円/月 |
|---|---|
初期費用 |
敷金-礼金-保証金2ヶ月敷引き償却金2ヶ月 |
更新料 |
73,000円 |
鍵交換費用 |
- |
室内清掃費用 |
- |
駐車場料金 |
無 |
損保・ |
借家賠付きの火災保険にご加入いただきます。 |
保証会社 |
加入要 保証会社利用料:賃料総額の50%(最低5万円) 月額660円 |
契約期間 |
1年 |
入居可能日 |
2026年02月 |
フリーレント期間 |
- |
取引形態 |
一般媒介 |
備考 |
火災保険1年12000円 |
グランコンフォール武蔵小杉 ***号室の建物情報
建物名称 |
グランコンフォール武蔵小杉 |
|---|---|
最寄駅 |
|
所在地 |
神奈川県川崎市中原区上丸子八幡町 |
階層 |
1階部分(地上2階建) |
構造 |
木造 |
築年数 |
2016年1月(築10年) |
駐車場 |
無 |
小学校学区 |
上丸子小学校 |
中学校学区 |
中原中学校 |
- 学区データについて
- ※学区データは必ずしも正確とは限りません。詳細に関しては最寄店舗または各自治体の教育委員会に必ずご確認ください。
無料この物件に問い合わせ
- グランコンフォール武蔵小杉 ***号室

-
7.3万円
(共益費
4,000円)
- 敷
- -
- 礼
- -
- 保
- 2ヶ月
- 償
- 2ヶ月
グランコンフォール武蔵小杉 ***号室の物件のお問い合わせ先・取り扱い店舗
ハウスコム 元住吉店
- アクセス
-
東急東横線「元住吉駅」徒歩1分
- 住所
- 〒211-0025 神奈川県川崎市中原区木月2丁目4−3
- 営業時間
- 10:00~18:00
- 定休日
- 水曜日
- 営業エリア
- 中原区,幸区,高津区,宮前区,港北区,鶴見区,都筑区,神奈川区
- 取引態様
- 賃貸仲介業






























