メナージュマルヤマ ***号室(2階/3LDK)の賃貸物件(賃貸マンション)
愛知県名古屋市千種区にあるメナージュマルヤマ ***号室はオートロック、2階以上、駐輪場、2人入居可、即入居可などが特徴です。最寄り駅の名古屋市営地下鉄 東山線覚王山駅から徒歩10分です。メナージュマルヤマ ***号室の詳細はハウスコム 星ヶ丘店までお気軽にお問い合わせください!
情報更新日:
次回更新予定日:
※次回更新予定日について:お店側では順次空室確認を行っていますが、次回更新予定日までに空室確認が行えない場合には、この物件情報は自動的に削除されます。
メナージュマルヤマ ***号室の賃貸物件部屋概要
家賃 |
9.5万円
初期費用を |
|---|---|
共益費 |
8,500円
入居可能時期 |
敷金/礼金 |
- / - |
保証金/ |
- / - |
最寄駅 |
|
所在地 |
愛知県名古屋市千種区丸山町 |
部屋番号 |
***号室 |
間取り |
3LDK(和6・洋7・洋5.5・LDK14) |
専有面積 |
82.56㎡ |
築年数 |
1988年2月(築38年) |
階数 |
2階部分(地上5階建) |
方位・位置 |
南 / その他 |
物件種別 |
賃貸マンション |
構造 |
RC |
駐車場 |
13,200円 |
小学校学区 |
田代小学校 |
中学校学区 |
城山中学校 |
他の空き部屋 |
***号室 ***号室 ***号室 ***号室 |
- 学区データについて
- ※学区データは必ずしも正確とは限りません。詳細に関しては最寄店舗または各自治体の教育委員会に必ずご確認ください。
メナージュマルヤマ ***号室の特徴
契約条件
この物件は、2人入居もご契約できます。 敷金と礼金が無料なため、初期費用が比較的安くなる傾向にあり、更新料が無料なので、長年お得に住み続けることができます。
セキュリティ
この物件の建物には、オートロックや宅配ボックスが設置されており、来客時には居室内のテレビモニターにて訪問者の顔を確認することができます。
室内設備
お風呂とトイレは別です。お風呂には、追い焚き機能が備わっています。 女性に嬉しい設備の独立した洗面化粧台があります。 洗濯に便利な設備として、室内洗濯機置場があります。
居室状況
居室には、和室の居室もあり、子育てやリラックススペースとしての利用もできます。 お部屋の床は、フローリングとなっています。収納スペースとして、基本的な居室にクローゼットがあります。
建物設備共用部分
居室外の専有スペースとして、洗濯物を干すなどの用途として利用できるバルコニーがあります。 建物の共用スペースに、日々の出入に便利なエレベーターや、急な外出や不在がちのご家庭の荷物受け取りに便利な宅配ボックスが設置されています。 駐輪場が利用できます。
周辺施設
この物件の学区は、田代小学校区・城山中学校区です。
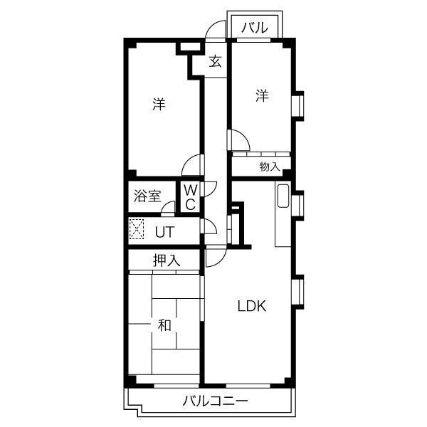
メナージュマルヤマ ***号室の間取り
間取り:3LDK
間取詳細:3LDK(和6・洋7・洋5.5・LDK14)
専有面積:82.56㎡
方位:南
部屋位置:その他
メナージュマルヤマ ***号室の設備
バス・トイレ
バス・トイレ別
追い焚き
独立洗面台
玄関
TVモニタ付インターホン
オートロック
宅配ボックス
収納
クローゼット
バルコニー
バルコニー
ルーフバルコニー
室内設備
フローリング
室内洗濯機置場
和室あり
位置・立地
2階以上
南向き
インフラ
インターネット可
CATV
都市ガス
建物設備
エレベーター
駐輪場
入居条件
2人入居可
オンライン相談可
オンライン内見可
即入居可
ライフステージ
一人暮らしに人気の設備
カップルに人気の設備
家族に人気の設備
夫婦に人気の設備
三世代で人気の設備
こだわり
外で子どもと遊びたい
雨の日でも洗濯したい
洋室で暮らしたい
趣味
ガーデニングが好き
お得な条件
更新料無料
メナージュマルヤマ ***号室の賃貸契約情報
毎月支払う |
家賃9.5万円/月共益費8,500円/月 |
|---|---|
初期費用 |
敷金-礼金-保証金-敷引き償却金- |
更新料 |
- |
鍵交換費用 |
22,000円 |
室内清掃費用 |
- |
消火剤+防災グッズ |
16,500円 |
入居者サポート費用 |
22,000円 |
消毒代 |
25,300円 |
駐車場料金 |
13,200円 |
損保・ |
借家賠付きの火災保険にご加入いただきます。 |
保証会社 |
加入要 保証会社利用料:初回10,000円、月次保証料2% |
契約期間 |
2年 |
入居可能日 |
即入居可 |
フリーレント期間 |
- |
取引形態 |
一般媒介 |
備考 |
町会費年2400円。家具・家電付の場合家賃4000円UP。 |
メナージュマルヤマ ***号室の建物情報
建物名称 |
メナージュマルヤマ |
|---|---|
最寄駅 |
|
所在地 |
愛知県名古屋市千種区丸山町 |
階層 |
2階部分(地上5階建) |
構造 |
RC |
築年数 |
1988年2月(築38年) |
駐車場 |
13,200円 |
小学校学区 |
田代小学校 |
中学校学区 |
城山中学校 |
- 学区データについて
- ※学区データは必ずしも正確とは限りません。詳細に関しては最寄店舗または各自治体の教育委員会に必ずご確認ください。
無料この物件に問い合わせ
- メナージュマルヤマ ***号室

-
9.5万円
(共益費
8,500円)
- 敷
- -
- 礼
- -
- 保
- -
- 償
- -
メナージュマルヤマ ***号室の物件のお問い合わせ先・取り扱い店舗
ハウスコム 星ヶ丘店
- アクセス
-
名古屋市営地下鉄 東山線「星ヶ丘駅」徒歩1分
- 住所
- 〒464-0026 愛知県名古屋市千種区井上町129−1 エストレヤビル 1階
- 営業時間
- 10:00~18:00
- 定休日
- なし
- 営業エリア
- 千種区,名東区,長久手市,天白区,日進市,昭和区,守山区,尾張旭市
- 取引態様
- 賃貸仲介業






































