チュアリヒルズⅡ ***号室(1階/1K)の賃貸物件(賃貸マンション)
宮城県仙台市青葉区にあるチュアリヒルズⅡ ***号室は温水洗浄便座、独立洗面台、TVモニタ付インターホン、エアコン、都市ガスなどが特徴です。最寄り駅の仙台市交通局南北線台原駅から徒歩10分です。チュアリヒルズⅡ ***号室の詳細はハウスコム FC仙台東口店までお気軽にお問い合わせください!
情報更新日:
次回更新予定日:
※次回更新予定日について:お店側では順次空室確認を行っていますが、次回更新予定日までに空室確認が行えない場合には、この物件情報は自動的に削除されます。
チュアリヒルズⅡ ***号室の賃貸物件部屋概要
家賃 |
5万円
初期費用を |
|---|---|
共益費 |
5,000円
入居可能時期 |
敷金/礼金 |
1ヶ月 / 1ヶ月 |
保証金/ |
- / - |
最寄駅 |
|
所在地 |
宮城県仙台市青葉区旭ケ丘 |
部屋番号 |
***号室 |
間取り |
1K(K3・洋8) |
専有面積 |
25.56㎡ |
築年数 |
2002年3月(築24年) |
階数 |
1階部分(地上3階建) |
方位・位置 |
南 / 角部屋 |
物件種別 |
賃貸マンション |
構造 |
RC |
駐車場 |
11,000円 |
小学校学区 |
台原小学校 |
中学校学区 |
台原中学校 |
他の空き部屋 |
***号室 |
- 学区データについて
- ※学区データは必ずしも正確とは限りません。詳細に関しては最寄店舗または各自治体の教育委員会に必ずご確認ください。
チュアリヒルズⅡ ***号室の特徴
契約条件
お支払いは、初期費用がクレジットカードにて決済できます。
セキュリティ
この物件の建物には、オートロックが設置されており、来客時には居室内のテレビモニターにて訪問者の顔を確認することができます。
室内設備
システムキッチンには、ガスコンロが備え付けられています。 トイレは、温水洗浄便座機能付きになります。 女性に嬉しい設備のシャワーの付いている洗面化粧台があります。 洗濯に便利な設備として、室内洗濯機置場があります。
居室状況
居室には、ロフトが設置されており大規模な収納スペースやセパレートされた寝室として活用できます。 エアコンが設置されています。 インターネットも無料で入居後すぐ生活が始められます。 収納スペースとして、基本的な居室にクローゼットを設置、玄関にはシューズボックスがあります。
建物設備共用部分
居室外の専有スペースとして、洗濯物を干すなどの用途として利用できるバルコニーがあります。
周辺施設
この物件の学区は、台原小学校区・台原中学校区です。近くには、徒歩9分(712m)でドラッグストアがあります。
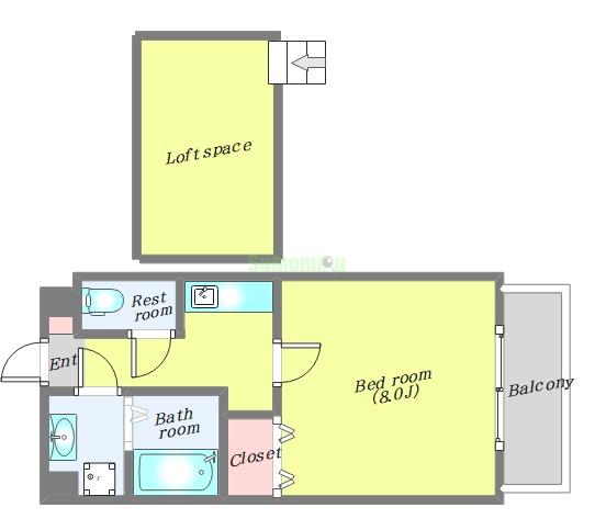
チュアリヒルズⅡ ***号室の間取り
間取り:1K
間取詳細:1K(K3・洋8)
専有面積:25.56㎡
方位:南
部屋位置:角部屋
チュアリヒルズⅡ ***号室の設備
キッチン
システムキッチン
ガスコンロ
バス・トイレ
バス・トイレ別
温水洗浄便座
独立洗面台
シャワー付洗面化粧台
玄関
TVモニタ付インターホン
オートロック
収納
クローゼット
シューズボックス
バルコニー
バルコニー
室内設備
エアコン
室内洗濯機置場
ロフト付
位置・立地
1階
角部屋
南向き
インフラ
都市ガス
入居条件
即入居可
ライフステージ
一人暮らしに人気の設備
カップルに人気の設備
家族に人気の設備
夫婦に人気の設備
三世代で人気の設備
こだわり
雨の日でも洗濯したい
お得な条件
仲介手数料1ヶ月未満
インターネット無料
初期費用カード決済可
チュアリヒルズⅡ ***号室の賃貸契約情報
毎月支払う |
家賃5万円/月共益費5,000円/月 |
|---|---|
初期費用 |
敷金1ヶ月 (5万円)礼金1ヶ月 (5万円)保証金-敷引き償却金- |
更新料 |
0.3ヶ月 |
鍵交換費用 |
16,500円 |
室内清掃費用 |
- |
駐車場料金 |
11,000円 |
損保・ |
借家賠付きの火災保険にご加入いただきます。 |
保証会社 |
加入要 保証会社:日本セーフティー 保証会社利用料:初回契約時:50%、更新時:10,000円 |
契約期間 |
2年 |
入居可能日 |
即入居可 |
フリーレント期間 |
- |
取引形態 |
一般媒介 |
備考 |
- |
チュアリヒルズⅡ ***号室の建物情報
建物名称 |
チュアリヒルズⅡ |
|---|---|
最寄駅 |
|
所在地 |
宮城県仙台市青葉区旭ケ丘 |
階層 |
1階部分(地上3階建) |
構造 |
RC |
築年数 |
2002年3月(築24年) |
駐車場 |
11,000円 |
小学校学区 |
台原小学校 |
中学校学区 |
台原中学校 |
- 学区データについて
- ※学区データは必ずしも正確とは限りません。詳細に関しては最寄店舗または各自治体の教育委員会に必ずご確認ください。
無料この物件に問い合わせ
- チュアリヒルズⅡ ***号室

-
5万円
(共益費
5,000円)
- 敷
- 1ヶ月
- 礼
- 1ヶ月
- 保
- -
- 償
- -
チュアリヒルズⅡ ***号室の物件のお問い合わせ先・取り扱い店舗
ハウスコム FC仙台東口店
- アクセス
-
仙石線「榴ケ岡駅」徒歩4分
東北本線「仙台駅」徒歩6分
仙台市交通局東西線「宮城野通駅」徒歩5分
- 住所
- 〒983-0852 宮城県仙台市宮城野区榴岡4丁目12-2 オダシマビル301
- 営業時間
- 10:00~18:00
- 定休日
- 水曜日
- 営業エリア
- 宮城県仙台市全域・富谷市・名取市・多賀城市
- 取引態様
- 賃貸仲介業・FC店



































