ビバリーホームズ五反田 406号室(4階/1K)の賃貸物件(賃貸マンション)
東京都品川区にあるビバリーホームズ五反田 406号室はシステムキッチン、ガスコンロ二口以上、TVモニタ付インターホン、都市ガス、エレベーターなどが特徴です。最寄り駅の東急池上線大崎広小路駅から徒歩7分です。ビバリーホームズ五反田 406号室の詳細はハウスコム 五反田店までお気軽にお問い合わせください!
情報更新日:
次回更新予定日:
※次回更新予定日について:お店側では順次空室確認を行っていますが、次回更新予定日までに空室確認が行えない場合には、この物件情報は自動的に削除されます。
ビバリーホームズ五反田 406号室の賃貸物件部屋概要
家賃 |
10万円
初期費用を |
|---|---|
共益費 |
15,000円
入居可能時期 |
敷金/礼金 |
- / 1ヶ月 |
保証金/ |
- / - |
最寄駅 |
|
所在地 |
東京都品川区西五反田 |
部屋番号 |
406号室 |
間取り |
1K(洋6.5) |
専有面積 |
20.54㎡ |
築年数 |
2014年1月(築12年) |
階数 |
4階部分(地上5階地下1階建) |
方位・位置 |
南東 / その他 |
物件種別 |
賃貸マンション |
構造 |
RC |
駐車場 |
- |
小学校学区 |
芳水小学校 |
中学校学区 |
大崎中学校 |
他の空き部屋 |
***号室 |
- 学区データについて
- ※学区データは必ずしも正確とは限りません。詳細に関しては最寄店舗または各自治体の教育委員会に必ずご確認ください。
ビバリーホームズ五反田 406号室の特徴
契約条件
この物件は、2人入居やルームシェアもご契約できます。 敷金が無料なため、初期費用が比較的安くなる傾向にあります。
セキュリティ
この物件の建物には、オートロックや防犯カメラや宅配ボックスが設置されており、来客時には居室内のテレビモニターにて訪問者の顔を確認することができます。
室内設備
システムキッチンには、2つ以上のガスコンロが備え付けられています。 洗濯に便利な設備として、室内洗濯機置場があります。浴室乾燥機も設置されているので、梅雨時の生乾き臭も比較的防ぐことができます。
居室状況
エアコンが設置されています。 収納スペースとして、基本的な居室にクローゼットを設置、玄関にはシューズボックスがあります。
建物設備共用部分
居室外の専有スペースとして、洗濯物を干すなどの用途として利用できるバルコニーがあります。 建物の共用スペースに、日々の出入に便利なエレベーターや、いざという時の防犯カメラや、急な外出や不在がちのご家庭の荷物受け取りに便利な宅配ボックスが設置されています。 駐輪場が利用できます。
周辺施設
この物件の学区は、芳水小学校区・大崎中学校区です。
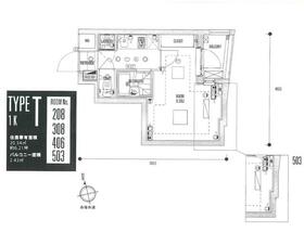
ビバリーホームズ五反田 406号室の間取り
間取り:1K
間取詳細:1K(洋6.5)
専有面積:20.54㎡
方位:南東
部屋位置:その他
ビバリーホームズ五反田 406号室の設備
キッチン
システムキッチン
ガスコンロ
ガスコンロ二口以上
バス・トイレ
バス・トイレ別
浴室乾燥機
玄関
TVモニタ付インターホン
オートロック
宅配ボックス
収納
クローゼット
シューズボックス
バルコニー
バルコニー
ルーフバルコニー
室内設備
エアコン
室内洗濯機置場
位置・立地
2階以上
インフラ
CATV
BS
CS
都市ガス
建物設備
エレベーター
防犯カメラ
駐輪場
分譲賃貸
入居条件
2人入居可
ルームシェア可・相談
オンライン相談可
オンライン内見可
ライフステージ
一人暮らしに人気の設備
カップルに人気の設備
家族に人気の設備
夫婦に人気の設備
三世代で人気の設備
こだわり
セキュリティ対策重視
外で子どもと遊びたい
雨の日でも洗濯したい
趣味
ガーデニングが好き
ビバリーホームズ五反田 406号室の賃貸契約情報
毎月支払う |
家賃10万円/月共益費15,000円/月 |
|---|---|
初期費用 |
敷金-礼金1ヶ月 (10万円)保証金-敷引き償却金- |
更新料 |
150,000円 |
鍵交換費用 |
- |
室内清掃費用 |
- |
ハウスクリーニング費用(退去時請求) |
49,500円 |
退去時鍵交換費用(契約時請求) |
29,700円 |
AMLクラブサポート費用(契約時請求) |
16,500円 |
駐車場料金 |
- |
損保・ |
借家賠付きの火災保険にご加入いただきます。 |
保証会社 |
加入要 保証会社利用料:初回保証料 総賃料の50% |
契約期間 |
2年 |
入居可能日 |
即入居可 |
フリーレント期間 |
- |
取引形態 |
一般媒介 |
備考 |
引越し業者指定有 電力業者指定有 解約予告50日前 |
ビバリーホームズ五反田 406号室の建物情報
建物名称 |
ビバリーホームズ五反田 |
|---|---|
最寄駅 |
|
所在地 |
東京都品川区西五反田 |
階層 |
4階部分(地上5階地下1階建) |
構造 |
RC |
築年数 |
2014年1月(築12年) |
駐車場 |
- |
小学校学区 |
芳水小学校 |
中学校学区 |
大崎中学校 |
- 学区データについて
- ※学区データは必ずしも正確とは限りません。詳細に関しては最寄店舗または各自治体の教育委員会に必ずご確認ください。
無料この物件に問い合わせ
- ビバリーホームズ五反田 406号室

-
10万円
(共益費
15,000円)
- 敷
- -
- 礼
- 1ヶ月
- 保
- -
- 償
- -
ビバリーホームズ五反田 406号室の物件のお問い合わせ先・取り扱い店舗
ハウスコム 五反田店
- アクセス
-
山手線「五反田駅」東口徒歩1分
都営浅草線「五反田駅」A6出口より徒歩1分
- 住所
- 〒141-0022 東京都品川区東五反田1丁目12−12 落合ビル 2F
- 営業時間
- 10:00~18:00
- 定休日
- なし(年末年始は休業)
- 営業エリア
- 品川区,大田区,港区,目黒区
- 取引態様
- 賃貸仲介業

















