エステムコート京都祥邸(キザシテイ) 203号室(2階/1K)の賃貸物件(賃貸マンション)
京都府京都市南区にあるエステムコート京都祥邸(キザシテイ) 203号室は浴室乾燥機、宅配ボックス、室内洗濯機置場、CS、分譲賃貸などが特徴です。最寄り駅の東海道本線(JR西日本)西大路駅から徒歩10分です。エステムコート京都祥邸(キザシテイ) 203号室の詳細はハウスコム 西院店までお気軽にお問い合わせください!
情報更新日:
次回更新予定日:
※次回更新予定日について:お店側では順次空室確認を行っていますが、次回更新予定日までに空室確認が行えない場合には、この物件情報は自動的に削除されます。
エステムコート京都祥邸(キザシテイ) 203号室の賃貸物件部屋概要
家賃 |
6.959万円
初期費用を |
|---|---|
共益費 |
5,210円
入居可能時期 |
敷金/礼金 |
- / - |
保証金/ |
- / - |
最寄駅 |
|
所在地 |
京都府京都市南区吉祥院西ノ庄西浦町 |
部屋番号 |
203号室 |
間取り |
1K(K1.5・洋6.2) |
専有面積 |
21.87㎡ |
築年数 |
新築 |
階数 |
2階部分(地上10階建) |
方位・位置 |
東 / その他 |
物件種別 |
賃貸マンション |
構造 |
RC |
駐車場 |
- |
小学校学区 |
祥豊小学校 |
中学校学区 |
洛南中学校 |
他の空き部屋 |
201号室 202号室 204号室 205号室 213号室 214号室 215号室 220号室 221号室 222号室 223号室 224号室 225号室 |
- 学区データについて
- ※学区データは必ずしも正確とは限りません。詳細に関しては最寄店舗または各自治体の教育委員会に必ずご確認ください。
エステムコート京都祥邸(キザシテイ) 203号室の特徴
-
一人暮らしに人気の設備

-
カップルに人気の設備

-
家族に人気の設備

-
夫婦に人気の設備

-
三世代で人気の設備

-
地震対策された建物

-
セキュリティ対策重視

-
外で子どもと遊びたい

-
身だしなみに気をつかいたい

-
雨の日でも洗濯したい

-
洋室で暮らしたい

-
ガーデニングが好き

契約条件
ペットの飼育もご相談ください。 敷金と礼金が無料なため、初期費用が比較的安くなる傾向にあります。
セキュリティ
この物件の建物には、オートロックや防犯カメラや宅配ボックスが設置されており、来客時には居室内のテレビモニターにて訪問者の顔を確認することができます。
室内設備
システムキッチンには、2つ以上のガスコンロが備え付けられています。 トイレは、温水洗浄便座機能付きになります。 女性に嬉しい設備のシャワーの付いている洗面化粧台があります。 洗濯に便利な設備として、室内洗濯機置場があります。浴室乾燥機も設置されているので、梅雨時の生乾き臭も比較的防ぐことができます。
居室状況
お部屋の床は、フローリングとなっており、エアコンが設置されています。 収納スペースとして、基本的な居室にクローゼットを設置、玄関にはシューズボックスがあります。
建物設備共用部分
居室外の専有スペースとして、洗濯物を干すなどの用途として利用できるバルコニーがあります。 建物の共用スペースに、日々の出入に便利なエレベーターや、いざという時の防犯カメラや、急な外出や不在がちのご家庭の荷物受け取りに便利な宅配ボックスが設置されています。 駐輪場、バイク置き場が利用できます。 この物件の建物は、建物全体をしっかり固定することで、地震の揺れに耐えるように設計された耐震構造の建築物です。
周辺施設
この物件の学区は、祥豊小学校区・洛南中学校区です。
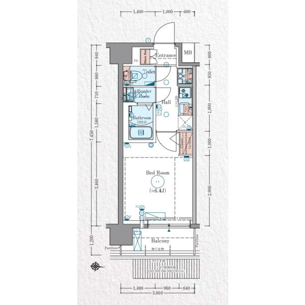
エステムコート京都祥邸(キザシテイ) 203号室の間取り
間取り:1K
間取詳細:1K(K1.5・洋6.2)
専有面積:21.87㎡
方位:東
部屋位置:その他
エステムコート京都祥邸(キザシテイ) 203号室の設備
キッチン
システムキッチン
ガスコンロ
ガスコンロ二口以上
バス・トイレ
バス・トイレ別
浴室乾燥機
温水洗浄便座
独立洗面台
シャワー付洗面化粧台
玄関
TVモニタ付インターホン
オートロック
宅配ボックス
収納
クローゼット
シューズボックス
バルコニー
バルコニー
ルーフバルコニー
室内設備
エアコン
フローリング
室内洗濯機置場
位置・立地
2階以上
インフラ
BS
CS
都市ガス
建物設備
エレベーター
防犯カメラ
駐輪場
バイク置き場
分譲賃貸
耐震構造
入居条件
ペット可・相談
ライフステージ
一人暮らしに人気の設備
カップルに人気の設備
家族に人気の設備
夫婦に人気の設備
三世代で人気の設備
トレンド
地震対策された建物
こだわり
セキュリティ対策重視
外で子どもと遊びたい
身だしなみに気をつかいたい
雨の日でも洗濯したい
洋室で暮らしたい
趣味
ガーデニングが好き
エステムコート京都祥邸(キザシテイ) 203号室の賃貸契約情報
毎月支払う |
家賃6.959万円/月共益費5,210円/月 |
|---|---|
初期費用 |
敷金-礼金-保証金-敷引き償却金- |
更新料 |
69,590円 |
鍵交換費用 |
33,000円 |
室内清掃費用 |
32,340円 |
安心クラブ入会金 |
5,500円 |
エアコンクリーニング |
13,200円 |
契約事務手数料 |
11,000円 |
駐車場料金 |
- |
損保・ |
借家賠付きの火災保険にご加入いただきます。 |
保証会社 |
加入要 保証会社:オリコフォレントインシュア 保証会社利用料:初回に総家賃50%要、以後毎月総家賃1.5%要。 |
契約期間 |
2年 |
入居可能日 |
2026年02月 |
フリーレント期間 |
- |
取引形態 |
一般媒介 |
備考 |
ペット(小型犬1匹のみ)時は消毒代22000円毎月500円UP。室内清掃費用 32340円 鍵交換代 33000円 月額:安心クラブ 990円 初期:安心クラブ入会金 5500円 エアコンクリーニング 13200円 契約事務手数料 11000円 保証会社利用必須 初回に総家賃50%要、以後毎月総家賃1.5%要。 |
エステムコート京都祥邸(キザシテイ) 203号室の建物情報
建物名称 |
エステムコート京都祥邸(キザシテイ) |
|---|---|
最寄駅 |
|
所在地 |
京都府京都市南区吉祥院西ノ庄西浦町 |
階層 |
2階部分(地上10階建) |
構造 |
RC |
築年数 |
新築 |
駐車場 |
- |
小学校学区 |
祥豊小学校 |
中学校学区 |
洛南中学校 |
- 学区データについて
- ※学区データは必ずしも正確とは限りません。詳細に関しては最寄店舗または各自治体の教育委員会に必ずご確認ください。
無料この物件に問い合わせ
- エステムコート京都祥邸(キザシテイ) 203号室

-
6.959万円
(共益費
5,210円)
- 敷
- -
- 礼
- -
- 保
- -
- 償
- -
エステムコート京都祥邸(キザシテイ) 203号室の物件のお問い合わせ先・取り扱い店舗
ハウスコム 西院店
- アクセス
-
阪急京都線「西院駅」徒歩1分
- 住所
- 〒615-0012 京都府京都市右京区西院高山寺町13番地 西院阪急プラザ1F
- 営業時間
- 10:00~18:00
- 定休日
- 水曜日(年末年始休み12月25日から1月3日まで)
- 営業エリア
- 京都市右京区・京都市中京区・京都市下京区・京都市西京区・京都市上京区・京都市南区・京都市北区
- 取引態様
- 賃貸仲介業










