trias白金台 201号室(1階/1R)の賃貸物件(賃貸マンション)
東京都品川区にあるtrias白金台 201号室は独立洗面台、オートロック、エアコン、角部屋、BSなどが特徴です。最寄り駅の東京メトロ 南北線白金台駅から徒歩6分です。trias白金台 201号室の詳細はハウスコム 事業戦略室までお気軽にお問い合わせください!
情報更新日:
次回更新予定日:
※次回更新予定日について:お店側では順次空室確認を行っていますが、次回更新予定日までに空室確認が行えない場合には、この物件情報は自動的に削除されます。
trias白金台 201号室の賃貸物件部屋概要
家賃 |
9.4万円
初期費用を |
|---|---|
共益費 |
15,000円
入居可能時期 |
敷金/礼金 |
- / 1ヶ月 |
保証金/ |
- / - |
最寄駅 |
|
所在地 |
東京都品川区上大崎 |
部屋番号 |
201号室 |
間取り |
1R |
専有面積 |
18.02㎡ |
築年数 |
2022年2月(築4年) |
階数 |
1階部分(地上3階地下1階建) |
方位・位置 |
北 / 角部屋 |
物件種別 |
賃貸マンション |
構造 |
RC |
駐車場 |
無 |
小学校学区 |
第三日野小学校 |
中学校学区 |
日野学園義務教育学校 |
他の空き部屋 |
404号室 |
- 学区データについて
- ※学区データは必ずしも正確とは限りません。詳細に関しては最寄店舗または各自治体の教育委員会に必ずご確認ください。
trias白金台 201号室の特徴
契約条件
敷金が無料なため、初期費用が比較的安くなる傾向にあります。
セキュリティ
この物件の建物には、オートロックや宅配ボックスが設置されており、来客時には居室内のテレビモニターにて訪問者の顔を確認することができます。
室内設備
システムキッチンが備え付けられています。 トイレは、温水洗浄便座機能付きになります。 女性に嬉しい設備の独立した洗面化粧台があります。 洗濯に便利な設備として、浴室乾燥機も設置されているので、梅雨時の生乾き臭も比較的防ぐことができます。
居室状況
お部屋の床は、フローリングとなっており、エアコンが設置されています。 インターネットも無料で入居後すぐ生活が始められます。
建物設備共用部分
建物の共用スペースに、急な外出や不在がちのご家庭の荷物受け取りに便利な宅配ボックスが設置されています。
周辺施設
この物件の学区は、第三日野小学校区・日野学園義務教育学校区です。
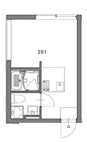
trias白金台 201号室の間取り
間取り:1R
間取詳細:1R
専有面積:18.02㎡
方位:北
部屋位置:角部屋
trias白金台 201号室の設備
キッチン
システムキッチン
バス・トイレ
バス・トイレ別
浴室乾燥機
温水洗浄便座
独立洗面台
玄関
TVモニタ付インターホン
オートロック
宅配ボックス
室内設備
エアコン
フローリング
位置・立地
1階
角部屋
インフラ
BS
CS
都市ガス
ライフステージ
一人暮らしに人気の設備
カップルに人気の設備
家族に人気の設備
夫婦に人気の設備
三世代で人気の設備
こだわり
雨の日でも洗濯したい
洋室で暮らしたい
趣味
オークション・通販が好き
お得な条件
インターネット無料
trias白金台 201号室の賃貸契約情報
毎月支払う |
家賃9.4万円/月共益費15,000円/月 |
|---|---|
初期費用 |
敷金-礼金1ヶ月 (9.4万円)保証金-敷引き償却金- |
更新料 |
94,000円 |
鍵交換費用 |
33,000円 |
室内清掃費用 |
- |
契約事務手数料 |
11,000円 |
アクト安心ライフ24(2年毎更新必須) |
16,500円 |
除菌消臭代 |
11,000円 |
駐車場料金 |
無 |
損保・ |
借家賠付きの火災保険にご加入いただきます。 |
保証会社 |
加入要 保証会社利用料:初回契約時:50%、月額:1.2%、外国籍の方(ジェイリースの場合):初回保証料100%・月額保証料1.2% |
契約期間 |
2年 |
入居可能日 |
2026年02月下旬 |
フリーレント期間 |
- |
取引形態 |
一般媒介 |
備考 |
- |
trias白金台 201号室の建物情報
建物名称 |
trias白金台 |
|---|---|
最寄駅 |
|
所在地 |
東京都品川区上大崎 |
階層 |
1階部分(地上3階地下1階建) |
構造 |
RC |
築年数 |
2022年2月(築4年) |
駐車場 |
無 |
小学校学区 |
第三日野小学校 |
中学校学区 |
日野学園義務教育学校 |
- 学区データについて
- ※学区データは必ずしも正確とは限りません。詳細に関しては最寄店舗または各自治体の教育委員会に必ずご確認ください。
無料この物件に問い合わせ
- trias白金台 201号室

-
9.4万円
(共益費
15,000円)
- 敷
- -
- 礼
- 1ヶ月
- 保
- -
- 償
- -
trias白金台 201号室の物件のお問い合わせ先・取り扱い店舗
ハウスコム 事業戦略室
- アクセス
-
山手線「品川駅」港南口徒歩3分
- 住所
- 〒108-0075 東京都港区港南2-16-1 品川イーストワンタワー9階
- 営業時間
- 10:00~17:00
- 定休日
- 土曜日・日曜日(祝日定休)
- 営業エリア
- 北区、荒川区、豊島区、文京区、台東区、中央区、新宿区、千代田区、渋谷区、港区、品川区
- 取引態様
- 賃貸仲介業























