krasuco柏(クラスコカシワ) 103号室(1階/1K)の賃貸物件(賃貸アパート)
千葉県柏市にあるkrasuco柏(クラスコカシワ) 103号室は追い焚き、浴室乾燥機、シューズボックス、インターネット可、プロパンガスなどが特徴です。最寄り駅の常磐線各駅停車(千代田線直通)柏駅から徒歩11分です。krasuco柏(クラスコカシワ) 103号室の詳細はハウスコム 松戸店までお気軽にお問い合わせください!
情報更新日:
次回更新予定日:
※次回更新予定日について:お店側では順次空室確認を行っていますが、次回更新予定日までに空室確認が行えない場合には、この物件情報は自動的に削除されます。
krasuco柏(クラスコカシワ) 103号室の賃貸物件部屋概要
家賃 |
6万円
初期費用を |
|---|---|
共益費 |
3,000円
入居可能時期 |
敷金/礼金 |
- / - |
保証金/ |
- / - |
最寄駅 |
|
所在地 |
千葉県柏市あけぼの |
部屋番号 |
103号室 |
間取り |
1K |
専有面積 |
19.33㎡ |
築年数 |
2018年9月(築8年) |
階数 |
1階部分(地上3階建) |
方位・位置 |
西 / その他 |
物件種別 |
賃貸アパート |
構造 |
木造 |
駐車場 |
- |
小学校学区 |
柏第一小学校 |
中学校学区 |
柏中学校 |
他の空き部屋 |
105号室 |
- 学区データについて
- ※学区データは必ずしも正確とは限りません。詳細に関しては最寄店舗または各自治体の教育委員会に必ずご確認ください。
krasuco柏(クラスコカシワ) 103号室の特徴
契約条件
ご契約時に保証人は不要です。 敷金と礼金が無料なため、初期費用が比較的安くなる傾向にあります。
セキュリティ
この物件の建物には、オートロックが設置されており、来客時には居室内のテレビモニターにて訪問者の顔を確認することができます。
室内設備
システムキッチンには、2つ以上のガスコンロが備え付けられています。 お風呂とトイレは別です。お風呂には、追い焚き機能が備わっています。 トイレは、温水洗浄便座機能付きになります。 女性に嬉しい設備の独立した洗面化粧台があります。 洗濯に便利な設備として、浴室乾燥機も設置されているので、梅雨時の生乾き臭も比較的防ぐことができます。
居室状況
お部屋の床は、フローリングとなっており、エアコンが設置されています。 インターネットも無料で入居後すぐ生活が始められます。 収納スペースとして、基本的な居室にクローゼットを設置、玄関にはシューズボックスがあります。
建物設備共用部分
居室外の専有スペースとして、洗濯物を干すなどの用途として利用できるバルコニーがあります。
周辺施設
この物件の学区は、柏第一小学校区・柏中学校区です。
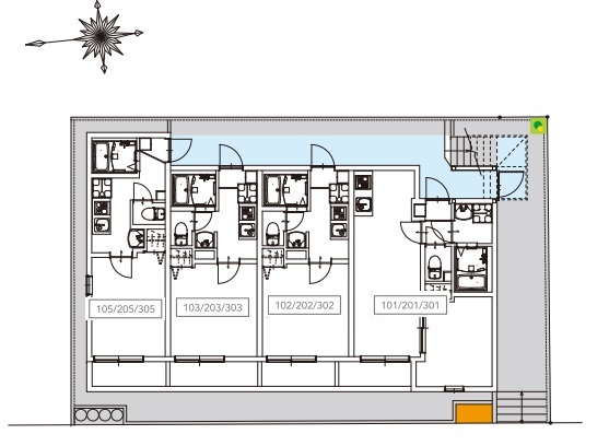
krasuco柏(クラスコカシワ) 103号室の間取り
間取り:1K
間取詳細:1K
専有面積:19.33㎡
方位:西
部屋位置:その他
krasuco柏(クラスコカシワ) 103号室の設備
キッチン
システムキッチン
ガスコンロ
ガスコンロ二口以上
バス・トイレ
バス・トイレ別
追い焚き
浴室乾燥機
温水洗浄便座
独立洗面台
玄関
TVモニタ付インターホン
オートロック
収納
クローゼット
シューズボックス
バルコニー
バルコニー
ルーフバルコニー
室内設備
エアコン
フローリング
デザイナーズ
位置・立地
1階
インフラ
インターネット可
プロパンガス
入居条件
保証人不要
ライフステージ
一人暮らしに人気の設備
カップルに人気の設備
家族に人気の設備
夫婦に人気の設備
三世代で人気の設備
こだわり
外で子どもと遊びたい
雨の日でも洗濯したい
洋室で暮らしたい
趣味
ガーデニングが好き
お得な条件
フリーレント
インターネット無料
krasuco柏(クラスコカシワ) 103号室の賃貸契約情報
毎月支払う |
家賃6万円/月共益費3,000円/月 |
|---|---|
初期費用 |
敷金-礼金-保証金-敷引き償却金- |
更新料 |
- |
鍵交換費用 |
27,500円 |
室内清掃費用 |
55,000円 |
駐車場料金 |
- |
損保・ |
借家賠付きの火災保険にご加入いただきます。 |
保証会社 |
加入要 保証会社:オリコ 保証会社利用料:◎保証会社加入必須・・・月額賃料合計(その他費用含む)×100% |
契約期間 |
2年 |
入居可能日 |
2026年03月上旬 |
フリーレント期間 |
1ヶ月 |
取引形態 |
一般媒介 |
備考 |
- |
krasuco柏(クラスコカシワ) 103号室の建物情報
建物名称 |
krasuco柏(クラスコカシワ) |
|---|---|
最寄駅 |
|
所在地 |
千葉県柏市あけぼの |
階層 |
1階部分(地上3階建) |
構造 |
木造 |
築年数 |
2018年9月(築8年) |
駐車場 |
- |
小学校学区 |
柏第一小学校 |
中学校学区 |
柏中学校 |
- 学区データについて
- ※学区データは必ずしも正確とは限りません。詳細に関しては最寄店舗または各自治体の教育委員会に必ずご確認ください。
無料この物件に問い合わせ
- krasuco柏(クラスコカシワ) 103号室

-
6万円
(共益費
3,000円)
- 敷
- -
- 礼
- -
- 保
- -
- 償
- -
krasuco柏(クラスコカシワ) 103号室の物件のお問い合わせ先・取り扱い店舗
ハウスコム 松戸店
- アクセス
-
常磐線「松戸駅」西口徒歩1分
- 住所
- 〒271-0091 千葉県松戸市本町2−3 平野第1ビル 3階
- 営業時間
- 10:00~18:00
- 定休日
- なし
- 営業エリア
- 松戸市、鎌ヶ谷市、柏市、野田市、三郷市、八潮市、流山市
- 取引態様
- 賃貸仲介業





















