マクト北柏(マクトキタカシワ) 203号室(2階/1K)の賃貸物件(賃貸アパート)
千葉県柏市にあるマクト北柏(マクトキタカシワ) 203号室はシステムキッチン、ガスコンロ、独立洗面台、シューズボックス、デザイナーズなどが特徴です。最寄り駅の常磐線各駅停車(千代田線直通)北柏駅から徒歩7分です。マクト北柏(マクトキタカシワ) 203号室の詳細はハウスコム 松戸店までお気軽にお問い合わせください!
情報更新日:
次回更新予定日:
※次回更新予定日について:お店側では順次空室確認を行っていますが、次回更新予定日までに空室確認が行えない場合には、この物件情報は自動的に削除されます。
マクト北柏(マクトキタカシワ) 203号室の賃貸物件部屋概要
家賃 |
5.8万円
初期費用を |
|---|---|
共益費 |
3,000円
入居可能時期 |
敷金/礼金 |
- / - |
保証金/ |
- / - |
最寄駅 |
|
所在地 |
千葉県柏市北柏 |
部屋番号 |
203号室 |
間取り |
1K |
専有面積 |
21.38㎡ |
築年数 |
2016年10月(築10年) |
階数 |
2階部分(地上2階建) |
方位・位置 |
南東 / 角部屋 |
物件種別 |
賃貸アパート |
構造 |
木造 |
駐車場 |
- |
小学校学区 |
富勢小学校 |
中学校学区 |
富勢中学校 |
他の空き部屋 |
ー |
- 学区データについて
- ※学区データは必ずしも正確とは限りません。詳細に関しては最寄店舗または各自治体の教育委員会に必ずご確認ください。
マクト北柏(マクトキタカシワ) 203号室の特徴
契約条件
ご契約時に保証人は不要です。 敷金と礼金が無料なため、初期費用が比較的安くなる傾向にあります。
セキュリティ
来客時には居室内のテレビモニターにて訪問者の顔を確認することができます。
室内設備
システムキッチンには、2つ以上のガスコンロが備え付けられています。 お風呂とトイレは別です。お風呂には、追い焚き機能が備わっています。 トイレは、温水洗浄便座機能付きになります。 女性に嬉しい設備の独立した洗面化粧台があります。
居室状況
居室には、ロフトが設置されており大規模な収納スペースやセパレートされた寝室として活用できます。 お部屋の床は、フローリングとなっており、エアコンが設置されています。 インターネットも無料で入居後すぐ生活が始められます。 収納スペースとして、基本的な居室にクローゼットを設置、玄関にはシューズボックスがあります。
建物設備共用部分
居室外の専有スペースとして、洗濯物を干すなどの用途として利用できるバルコニーがあります。
周辺施設
この物件の学区は、富勢小学校区・富勢中学校区です。
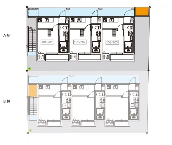
マクト北柏(マクトキタカシワ) 203号室の間取り
間取り:1K
間取詳細:1K
専有面積:21.38㎡
方位:南東
部屋位置:角部屋
マクト北柏(マクトキタカシワ) 203号室の設備
キッチン
システムキッチン
ガスコンロ
ガスコンロ二口以上
バス・トイレ
バス・トイレ別
追い焚き
温水洗浄便座
独立洗面台
玄関
TVモニタ付インターホン
収納
クローゼット
シューズボックス
バルコニー
バルコニー
ルーフバルコニー
室内設備
エアコン
フローリング
ロフト付
デザイナーズ
位置・立地
2階以上
最上階
角部屋
インフラ
インターネット可
プロパンガス
入居条件
保証人不要
即入居可
ライフステージ
一人暮らしに人気の設備
カップルに人気の設備
家族に人気の設備
夫婦に人気の設備
三世代で人気の設備
こだわり
外で子どもと遊びたい
洋室で暮らしたい
趣味
ガーデニングが好き
お得な条件
フリーレント
インターネット無料
マクト北柏(マクトキタカシワ) 203号室の賃貸契約情報
毎月支払う |
家賃5.8万円/月共益費3,000円/月 |
|---|---|
初期費用 |
敷金-礼金-保証金-敷引き償却金- |
更新料 |
58,000円 |
鍵交換費用 |
27,500円 |
室内清掃費用 |
55,000円 |
駐車場料金 |
- |
損保・ |
借家賠付きの火災保険にご加入いただきます。 |
保証会社 |
加入要 保証会社:オリコ 保証会社利用料:◎保証会社加入必須・・・月額賃料合計(その他費用含む)×100% |
契約期間 |
2年 |
入居可能日 |
即入居可 |
フリーレント期間 |
1ヶ月 |
取引形態 |
一般媒介 |
備考 |
- |
マクト北柏(マクトキタカシワ) 203号室の建物情報
建物名称 |
マクト北柏(マクトキタカシワ) |
|---|---|
最寄駅 |
|
所在地 |
千葉県柏市北柏 |
階層 |
2階部分(地上2階建) |
構造 |
木造 |
築年数 |
2016年10月(築10年) |
駐車場 |
- |
小学校学区 |
富勢小学校 |
中学校学区 |
富勢中学校 |
- 学区データについて
- ※学区データは必ずしも正確とは限りません。詳細に関しては最寄店舗または各自治体の教育委員会に必ずご確認ください。
無料この物件に問い合わせ
- マクト北柏(マクトキタカシワ) 203号室

-
5.8万円
(共益費
3,000円)
- 敷
- -
- 礼
- -
- 保
- -
- 償
- -
マクト北柏(マクトキタカシワ) 203号室の物件のお問い合わせ先・取り扱い店舗
ハウスコム 松戸店
- アクセス
-
常磐線「松戸駅」西口徒歩1分
- 住所
- 〒271-0091 千葉県松戸市本町2−3 平野第1ビル 3階
- 営業時間
- 10:00~18:00
- 定休日
- なし
- 営業エリア
- 松戸市、鎌ヶ谷市、柏市、野田市、三郷市、八潮市、流山市
- 取引態様
- 賃貸仲介業
























