Sentreeva ***号室(2階/1DK)の賃貸物件(賃貸アパート)
宮城県仙台市若林区にあるSentreeva ***号室はIHコンロ、浴室乾燥機、シャワー付洗面化粧台、TVモニタ付インターホン、室内洗濯機置場などが特徴です。最寄り駅の仙台市交通局東西線連坊駅から徒歩11分です。Sentreeva ***号室の詳細はハウスコム FC仙台東口店までお気軽にお問い合わせください!
情報更新日:
次回更新予定日:
※次回更新予定日について:お店側では順次空室確認を行っていますが、次回更新予定日までに空室確認が行えない場合には、この物件情報は自動的に削除されます。
Sentreeva ***号室の賃貸物件部屋概要
家賃 |
6万円
初期費用を |
|---|---|
共益費 |
3,000円
入居可能時期 |
敷金/礼金 |
- / - |
保証金/ |
- / - |
最寄駅 |
|
所在地 |
宮城県仙台市若林区六十人町 |
部屋番号 |
***号室 |
間取り |
1DK(DK6.7・洋2.7) |
専有面積 |
31.26㎡ |
築年数 |
2020年7月(築6年) |
階数 |
2階部分(地上2階建) |
方位・位置 |
西 / その他 |
物件種別 |
賃貸アパート |
構造 |
木造 |
駐車場 |
空無し |
小学校学区 |
南材木町小学校 |
中学校学区 |
八軒中学校 |
他の空き部屋 |
ー |
- 学区データについて
- ※学区データは必ずしも正確とは限りません。詳細に関しては最寄店舗または各自治体の教育委員会に必ずご確認ください。
Sentreeva ***号室の特徴
契約条件
敷金と礼金が無料なため、初期費用が比較的安くなる傾向にあります。
セキュリティ
この物件の建物には、防犯カメラが設置されており、来客時には居室内のテレビモニターにて訪問者の顔を確認することができます。
室内設備
IHコンロが備え付けられています。 お風呂とトイレは一緒のユニットバスです。お風呂には、追い焚き機能が備わっています。 トイレは、温水洗浄便座機能付きになります。 女性に嬉しい設備のシャワーの付いている洗面化粧台があります。 洗濯に便利な設備として、室内洗濯機置場があります。浴室乾燥機も設置されているので、梅雨時の生乾き臭も比較的防ぐことができます。
居室状況
お部屋の床は、フローリングとなっており、エアコンが設置されています。 インターネットも無料で入居後すぐ生活が始められます。 収納スペースとして、基本的な居室にクローゼットがあります。
建物設備共用部分
居室外の専有スペースとして、洗濯物を干すなどの用途として利用できるバルコニーがあります。 建物の共用スペースに、いざという時の防犯カメラが設置されています。
周辺施設
この物件の学区は、南材木町小学校区・八軒中学校区です。近くには、徒歩6分(417m)でドラッグストアがあります。
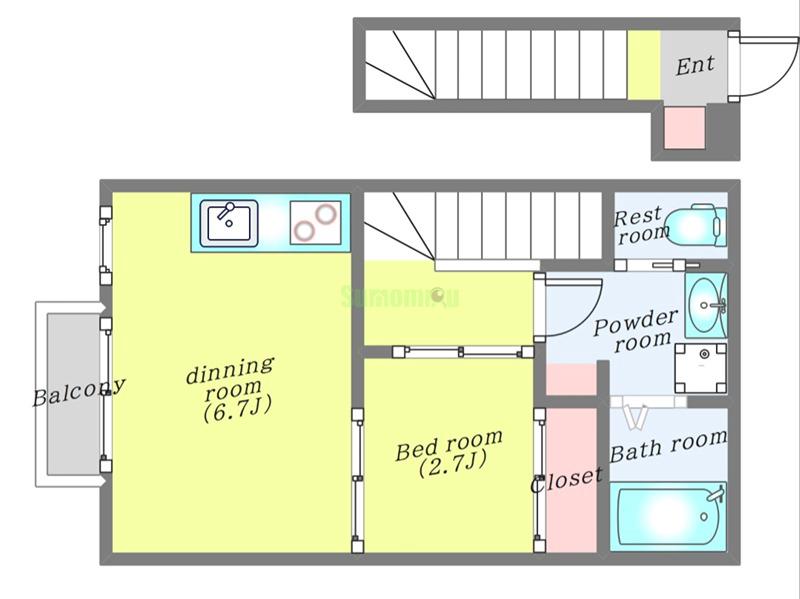
Sentreeva ***号室の間取り
間取り:1DK
間取詳細:1DK(DK6.7・洋2.7)
専有面積:31.26㎡
方位:西
部屋位置:その他
Sentreeva ***号室の設備
キッチン
IHコンロ
バス・トイレ
追い焚き
浴室乾燥機
温水洗浄便座
独立洗面台
シャワー付洗面化粧台
玄関
TVモニタ付インターホン
収納
クローゼット
バルコニー
バルコニー
室内設備
エアコン
フローリング
室内洗濯機置場
位置・立地
2階以上
最上階
インフラ
プロパンガス
建物設備
防犯カメラ
入居条件
即入居可
ライフステージ
一人暮らしに人気の設備
カップルに人気の設備
家族に人気の設備
夫婦に人気の設備
三世代で人気の設備
こだわり
雨の日でも洗濯したい
洋室で暮らしたい
お得な条件
インターネット無料
Sentreeva ***号室の賃貸契約情報
毎月支払う |
家賃6万円/月共益費3,000円/月 |
|---|---|
初期費用 |
敷金-礼金-保証金-敷引き償却金- |
更新料 |
- |
鍵交換費用 |
- |
室内清掃費用 |
- |
駐車場料金 |
空無し |
損保・ |
借家賠付きの火災保険にご加入いただきます。 |
保証会社 |
加入要 保証会社:その他 保証会社利用料:初回保証料:賃料総額の60% 月額保証料:賃料総額の1% |
契約期間 |
2年 |
入居可能日 |
即入居可 |
フリーレント期間 |
- |
取引形態 |
一般媒介 |
備考 |
- |
Sentreeva ***号室の建物情報
建物名称 |
Sentreeva |
|---|---|
最寄駅 |
|
所在地 |
宮城県仙台市若林区六十人町 |
階層 |
2階部分(地上2階建) |
構造 |
木造 |
築年数 |
2020年7月(築6年) |
駐車場 |
空無し |
小学校学区 |
南材木町小学校 |
中学校学区 |
八軒中学校 |
- 学区データについて
- ※学区データは必ずしも正確とは限りません。詳細に関しては最寄店舗または各自治体の教育委員会に必ずご確認ください。
無料この物件に問い合わせ
- Sentreeva ***号室

-
6万円
(共益費
3,000円)
- 敷
- -
- 礼
- -
- 保
- -
- 償
- -
Sentreeva ***号室の物件のお問い合わせ先・取り扱い店舗
ハウスコム FC仙台東口店
- アクセス
-
仙石線「榴ケ岡駅」徒歩4分
東北本線「仙台駅」徒歩6分
仙台市交通局東西線「宮城野通駅」徒歩5分
- 住所
- 〒983-0852 宮城県仙台市宮城野区榴岡4丁目12-2 オダシマビル301
- 営業時間
- 10:00~18:00
- 定休日
- 水曜日
- 営業エリア
- 宮城県仙台市全域・富谷市・名取市・多賀城市
- 取引態様
- 賃貸仲介業・FC店


























