AXASレジデンス目黒東 105号室(1階/1K)の賃貸物件(賃貸マンション)
東京都品川区にあるAXASレジデンス目黒東 105号室はガスコンロ二口以上、温水洗浄便座、TVモニタ付インターホン、オートロック、CSなどが特徴です。最寄り駅の山手線五反田駅から徒歩8分です。AXASレジデンス目黒東 105号室の詳細はハウスコム 五反田店までお気軽にお問い合わせください!
情報更新日:
次回更新予定日:
※次回更新予定日について:お店側では順次空室確認を行っていますが、次回更新予定日までに空室確認が行えない場合には、この物件情報は自動的に削除されます。
AXASレジデンス目黒東 105号室の賃貸物件部屋概要
家賃 |
10.65万円
初期費用を |
|---|---|
共益費 |
8,000円
入居可能時期 |
敷金/礼金 |
1ヶ月 / 1ヶ月 |
保証金/ |
- / - |
最寄駅 |
|
所在地 |
東京都品川区東五反田 |
部屋番号 |
105号室 |
間取り |
1K(洋5.7) |
専有面積 |
20.80㎡ |
築年数 |
2019年5月(築7年) |
階数 |
1階部分(地上15階建) |
方位・位置 |
東 / その他 |
物件種別 |
賃貸マンション |
構造 |
RC |
駐車場 |
- |
小学校学区 |
第三日野小学校 |
中学校学区 |
日野学園義務教育学校 |
他の空き部屋 |
306号室 701号室 |
- 学区データについて
- ※学区データは必ずしも正確とは限りません。詳細に関しては最寄店舗または各自治体の教育委員会に必ずご確認ください。
AXASレジデンス目黒東 105号室の特徴
-
一人暮らしに人気の設備

-
カップルに人気の設備

-
家族に人気の設備

-
夫婦に人気の設備

-
三世代で人気の設備

-
タイパ重視

-
外で子どもと遊びたい

-
身だしなみに気をつかいたい

-
雨の日でも洗濯したい

-
洋室で暮らしたい

-
ガーデニングが好き

契約条件
ペットの飼育もご相談ください。
セキュリティ
この物件の建物には、オートロックや宅配ボックスが設置されており、来客時には居室内のテレビモニターにて訪問者の顔を確認することができます。
室内設備
システムキッチンには、2つ以上のガスコンロが備え付けられています。 トイレは、温水洗浄便座機能付きになります。 女性に嬉しい設備の独立した洗面化粧台があります。 洗濯に便利な設備として、室内洗濯機置場があります。浴室乾燥機も設置されているので、梅雨時の生乾き臭も比較的防ぐことができます。
居室状況
お部屋の床は、フローリングとなっており、エアコンが設置されています。 収納スペースとして、基本的な居室にクローゼットがあります。
建物設備共用部分
居室外の専有スペースとして、洗濯物を干すなどの用途として利用できるバルコニーがあります。 建物の共用スペースに、日々の出入に便利なエレベーターや、急な外出や不在がちのご家庭の荷物受け取りに便利な宅配ボックスや、居室内を常に清潔に保てる24時間利用可能なゴミ捨て置き場が設置されています。
周辺施設
この物件の学区は、第三日野小学校区・日野学園義務教育学校区です。
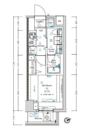
AXASレジデンス目黒東 105号室の間取り
間取り:1K
間取詳細:1K(洋5.7)
専有面積:20.80㎡
方位:東
部屋位置:その他
AXASレジデンス目黒東 105号室の設備
キッチン
システムキッチン
ガスコンロ
ガスコンロ二口以上
バス・トイレ
バス・トイレ別
浴室乾燥機
温水洗浄便座
独立洗面台
玄関
TVモニタ付インターホン
オートロック
宅配ボックス
収納
クローゼット
バルコニー
バルコニー
ルーフバルコニー
室内設備
エアコン
フローリング
室内洗濯機置場
位置・立地
1階
インフラ
BS
CS
建物設備
エレベーター
24時間ゴミ出しOK
分譲賃貸
入居条件
ペット可・相談
オンライン内見可
ライフステージ
一人暮らしに人気の設備
カップルに人気の設備
家族に人気の設備
夫婦に人気の設備
三世代で人気の設備
こだわり
タイパ重視
外で子どもと遊びたい
身だしなみに気をつかいたい
雨の日でも洗濯したい
洋室で暮らしたい
趣味
ガーデニングが好き
AXASレジデンス目黒東 105号室の賃貸契約情報
毎月支払う |
家賃10.65万円/月共益費8,000円/月 |
|---|---|
初期費用 |
敷金1ヶ月 (10.65万円)礼金1ヶ月 (10.65万円)保証金-敷引き償却金- |
更新料 |
159,750円 |
鍵交換費用 |
28,600円 |
室内清掃費用 |
44,000円 |
エアコンクリーニング |
16,500円 |
駐車場料金 |
- |
損保・ |
借家賠付きの火災保険にご加入いただきます。 |
保証会社 |
加入要 保証会社利用料:総賃料50% 1年毎1万 |
契約期間 |
2年 |
入居可能日 |
2026年02月中旬 |
フリーレント期間 |
- |
取引形態 |
一般媒介 |
備考 |
1年未満解約時短期解約違約金1か月、ペット飼育時敷金1か月追加 |
AXASレジデンス目黒東 105号室の建物情報
建物名称 |
AXASレジデンス目黒東 |
|---|---|
最寄駅 |
|
所在地 |
東京都品川区東五反田 |
階層 |
1階部分(地上15階建) |
構造 |
RC |
築年数 |
2019年5月(築7年) |
駐車場 |
- |
小学校学区 |
第三日野小学校 |
中学校学区 |
日野学園義務教育学校 |
- 学区データについて
- ※学区データは必ずしも正確とは限りません。詳細に関しては最寄店舗または各自治体の教育委員会に必ずご確認ください。
無料この物件に問い合わせ
- AXASレジデンス目黒東 105号室

-
10.65万円
(共益費
8,000円)
- 敷
- 1ヶ月
- 礼
- 1ヶ月
- 保
- -
- 償
- -
AXASレジデンス目黒東 105号室の物件のお問い合わせ先・取り扱い店舗
ハウスコム 五反田店
- アクセス
-
山手線「五反田駅」東口徒歩1分
都営浅草線「五反田駅」A6出口より徒歩1分
- 住所
- 〒141-0022 東京都品川区東五反田1丁目12−12 落合ビル 2F
- 営業時間
- 10:00~18:00
- 定休日
- なし(年末年始は休業)
- 営業エリア
- 品川区,大田区,港区,目黒区
- 取引態様
- 賃貸仲介業
















