ベルジューレ高輪 0102号室(1LDK)の賃貸物件(賃貸マンション)
東京都港区にあるベルジューレ高輪 0102号室は独立洗面台、フローリング、CATV、都市ガス、ペット可・相談などが特徴です。最寄り駅の都営浅草線高輪台駅から徒歩5分です。ベルジューレ高輪 0102号室の詳細はハウスコム 五反田店までお気軽にお問い合わせください!
情報更新日:
次回更新予定日:
※次回更新予定日について:お店側では順次空室確認を行っていますが、次回更新予定日までに空室確認が行えない場合には、この物件情報は自動的に削除されます。
ベルジューレ高輪 0102号室の賃貸物件部屋概要
家賃 |
18.8万円
初期費用を |
|---|---|
共益費 |
15,000円
入居可能時期 |
敷金/礼金 |
- / 1ヶ月 |
保証金/ |
- / - |
最寄駅 |
|
所在地 |
東京都港区高輪 |
部屋番号 |
0102号室 |
間取り |
1LDK(LDK0・洋0) |
専有面積 |
42.34㎡ |
築年数 |
2005年3月(築21年) |
階数 |
地上5階地下1階建 |
方位・位置 |
西 / 角部屋 |
物件種別 |
賃貸マンション |
構造 |
RC |
駐車場 |
- |
小学校学区 |
高輪台小学校 |
中学校学区 |
高松中学校 |
他の空き部屋 |
0202号室 0203号室 0304号室 102号室 202号室 203号室 304号室 |
- 学区データについて
- ※学区データは必ずしも正確とは限りません。詳細に関しては最寄店舗または各自治体の教育委員会に必ずご確認ください。
ベルジューレ高輪 0102号室の特徴
契約条件
ペットの飼育もご相談ください。 敷金が無料なため、初期費用が比較的安くなる傾向にあります。
セキュリティ
この物件の建物には、オートロックが設置されております。
室内設備
システムキッチンには、2つ以上のガスコンロが備え付けられています。 トイレは、温水洗浄便座機能付きになります。 女性に嬉しい設備の独立した洗面化粧台があります。 洗濯に便利な設備として、室内洗濯機置場があります。浴室乾燥機も設置されているので、梅雨時の生乾き臭も比較的防ぐことができます。
居室状況
お部屋の床は、フローリングとなっており、エアコンが設置されています。 収納スペースとして、基本的な居室にクローゼットがあります。
建物設備共用部分
建物の共用スペースに、日々の出入に便利なエレベーターが設置されています。 駐輪場が利用できます。
周辺施設
この物件の学区は、高輪台小学校区・高松中学校区です。
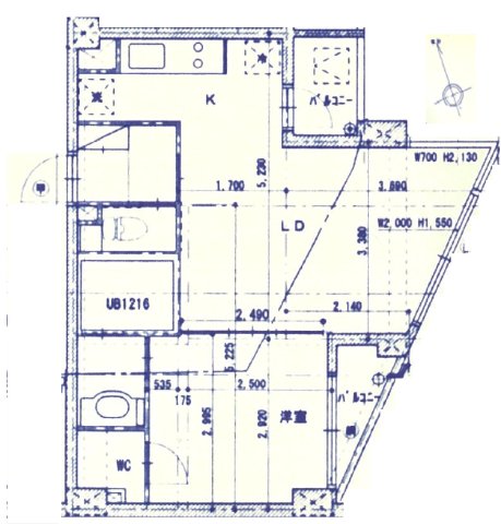
ベルジューレ高輪 0102号室の間取り
間取り:1LDK
間取詳細:1LDK(LDK0・洋0)
専有面積:42.34㎡
方位:西
部屋位置:角部屋
ベルジューレ高輪 0102号室の設備
キッチン
システムキッチン
ガスコンロ
ガスコンロ二口以上
バス・トイレ
バス・トイレ別
浴室乾燥機
温水洗浄便座
独立洗面台
玄関
オートロック
収納
クローゼット
室内設備
エアコン
フローリング
室内洗濯機置場
位置・立地
角部屋
インフラ
インターネット可
CATV
BS
CS
都市ガス
建物設備
エレベーター
駐輪場
入居条件
ペット可・相談
ライフステージ
一人暮らしに人気の設備
カップルに人気の設備
家族に人気の設備
夫婦に人気の設備
三世代で人気の設備
こだわり
雨の日でも洗濯したい
洋室で暮らしたい
ベルジューレ高輪 0102号室の賃貸契約情報
毎月支払う |
家賃18.8万円/月共益費15,000円/月 |
|---|---|
初期費用 |
敷金-礼金1ヶ月 (18.8万円)保証金-敷引き償却金- |
更新料 |
188,000円 |
鍵交換費用 |
38,500円 |
室内清掃費用 |
- |
プレミアデスク(税込/2年) |
22,000円 |
契約時ルームクリーニング費用(税込) |
110,220円 |
駐車場料金 |
- |
損保・ |
借家賠付きの火災保険にご加入いただきます。 |
保証会社 |
加入要 保証会社:エポスカード 保証会社利用料:【ルームID】月額総賃料の50%/月次保証料、月額総賃料の1.5%/1年毎10,000円 【アーク賃貸保証】月額総賃料の40%/次年度以降10,000円※引 |
契約期間 |
2年 |
入居可能日 |
相談 |
フリーレント期間 |
- |
取引形態 |
一般媒介 |
備考 |
短期解約違約金:1年未満1カ月 |
ベルジューレ高輪 0102号室の建物情報
建物名称 |
ベルジューレ高輪 |
|---|---|
最寄駅 |
|
所在地 |
東京都港区高輪 |
階層 |
地上5階地下1階建 |
構造 |
RC |
築年数 |
2005年3月(築21年) |
駐車場 |
- |
小学校学区 |
高輪台小学校 |
中学校学区 |
高松中学校 |
- 学区データについて
- ※学区データは必ずしも正確とは限りません。詳細に関しては最寄店舗または各自治体の教育委員会に必ずご確認ください。
無料この物件に問い合わせ
- ベルジューレ高輪 0102号室

-
18.8万円
(共益費
15,000円)
- 敷
- -
- 礼
- 1ヶ月
- 保
- -
- 償
- -
ベルジューレ高輪 0102号室の物件のお問い合わせ先・取り扱い店舗
ハウスコム 五反田店
- アクセス
-
山手線「五反田駅」東口徒歩1分
都営浅草線「五反田駅」A6出口より徒歩1分
- 住所
- 〒141-0022 東京都品川区東五反田1丁目12−12 落合ビル 2F
- 営業時間
- 10:00~18:00
- 定休日
- 水曜日
- 営業エリア
- 品川区,大田区,港区,目黒区
- 取引態様
- 賃貸仲介業






























