六角橋戸建 1号室(1階/3LDK)の賃貸物件(賃貸一戸建て)
神奈川県横浜市神奈川区にある六角橋戸建 1号室はガスコンロ、ルーフバルコニー、フローリング、室内洗濯機置場、照明器具付などが特徴です。最寄り駅の横浜市営地下鉄 ブルーライン三ツ沢下町駅から徒歩13分です。六角橋戸建 1号室の詳細はハウスコム 横浜店までお気軽にお問い合わせください!
情報更新日:
次回更新予定日:
※次回更新予定日について:お店側では順次空室確認を行っていますが、次回更新予定日までに空室確認が行えない場合には、この物件情報は自動的に削除されます。
六角橋戸建 1号室の賃貸物件部屋概要
家賃 |
17万円
初期費用を |
|---|---|
共益費 |
-
入居可能時期 |
敷金/礼金 |
2ヶ月 / - |
保証金/ |
- / - |
最寄駅 |
|
所在地 |
神奈川県横浜市神奈川区六角橋 |
部屋番号 |
1号室 |
間取り |
3LDK(LDK18・洋5.2・洋6.2・洋6.9) |
専有面積 |
80.59㎡ |
築年数 |
2020年4月(築6年) |
階数 |
1階部分(地上2階建) |
方位・位置 |
西 / その他 |
物件種別 |
賃貸一戸建て |
構造 |
木造 |
駐車場 |
空有 賃料に含む |
小学校学区 |
斎藤分小学校 |
中学校学区 |
六角橋中学校 |
他の空き部屋 |
ー |
- 学区データについて
- ※学区データは必ずしも正確とは限りません。詳細に関しては最寄店舗または各自治体の教育委員会に必ずご確認ください。
六角橋戸建 1号室の特徴
-
一人暮らしに人気の設備

-
カップルに人気の設備

-
家族に人気の設備

-
夫婦に人気の設備

-
三世代で人気の設備

-
キッチン重視

-
外で子どもと遊びたい

-
雨の日でも洗濯したい

-
洋室で暮らしたい

-
自炊が多めなあなたに

-
料理が好き

-
推し活グッズを飾りたい

-
ガーデニングが好き

契約条件
楽器演奏もご相談ください。 礼金が無料なため、初期費用が比較的安くなる傾向にあります。
セキュリティ
来客時には居室内のテレビモニターにて訪問者の顔を確認することができます。
室内設備
システムキッチンには、ガスコンロが設置されており、キッチン設備として食洗機が備え付けられています。 お風呂とトイレは別です。お風呂には、追い焚き機能が備わっています。 トイレは、温水洗浄便座機能付きになります。 女性に嬉しい設備の独立した洗面化粧台があります。 洗濯に便利な設備として、室内洗濯機置場があります。浴室乾燥機も設置されているので、梅雨時の生乾き臭も比較的防ぐことができます。
居室状況
お部屋の床は、フローリングとなっており、エアコンが設置されています。 照明器具が備え付けられており、入居後すぐ生活が始められます。
建物設備共用部分
居室外の専有スペースとして、洗濯物を干すなどの用途として利用できるバルコニーがあります。 駐車場があり、無料で利用することができます。
周辺施設
この物件の学区は、斎藤分小学校区・六角橋中学校区です。
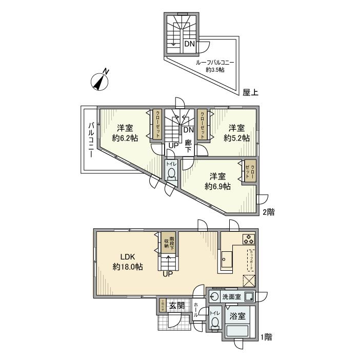
六角橋戸建 1号室の間取り
間取り:3LDK
間取詳細:3LDK(LDK18・洋5.2・洋6.2・洋6.9)
専有面積:80.59㎡
方位:西
部屋位置:その他
六角橋戸建 1号室の設備
キッチン
システムキッチン
カウンターキッチン
ガスコンロ
食洗機
バス・トイレ
バス・トイレ別
追い焚き
浴室乾燥機
温水洗浄便座
独立洗面台
玄関
TVモニタ付インターホン
バルコニー
バルコニー
ルーフバルコニー
室内設備
エアコン
フローリング
室内洗濯機置場
照明器具付
位置・立地
1階
インフラ
都市ガス
入居条件
楽器可・相談
ライフステージ
一人暮らしに人気の設備
カップルに人気の設備
家族に人気の設備
夫婦に人気の設備
三世代で人気の設備
こだわり
キッチン重視
外で子どもと遊びたい
雨の日でも洗濯したい
洋室で暮らしたい
自炊が多めなあなたに
趣味
料理が好き
推し活グッズを飾りたい
ガーデニングが好き
お得な条件
駐車場無料
六角橋戸建 1号室の賃貸契約情報
毎月支払う |
家賃17万円/月共益費- |
|---|---|
初期費用 |
敷金2ヶ月 (34万円)礼金-保証金-敷引き償却金- |
更新料 |
- |
鍵交換費用 |
- |
室内清掃費用 |
- |
駐車場登録料 1台(利用時のみ) |
11,000円 |
除菌施工料(契約時のみ) |
19,800円 |
駐車場料金 |
空有 賃料に含む |
損保・ |
借家賠付きの火災保険にご加入いただきます。 |
保証会社 |
加入要 保証会社利用料:保証会社 要:初回 賃料総額100%+月額 賃料総額2%(最低1,000円) |
契約期間 |
定期借家 2年 |
入居可能日 |
相談 |
フリーレント期間 |
- |
取引形態 |
一般媒介 |
備考 |
違約金有:6カ月未満の解約で総賃料の0.5ヶ月分 退去時ハウスクリーニング代は借主実費負担 住居以外の用途(事務所・寮・塾・集会所・民泊など)としての使用厳禁 喫煙不可 電子ピアノ搬入可(種類・頻度によりお断りする場合があります) カーテン、ブラインド設備対象外、無断撤去不可 ルーフバルコニー3.5帖 |
六角橋戸建 1号室の建物情報
建物名称 |
六角橋戸建 |
|---|---|
最寄駅 |
|
所在地 |
神奈川県横浜市神奈川区六角橋 |
階層 |
1階部分(地上2階建) |
構造 |
木造 |
築年数 |
2020年4月(築6年) |
駐車場 |
空有 賃料に含む |
小学校学区 |
斎藤分小学校 |
中学校学区 |
六角橋中学校 |
- 学区データについて
- ※学区データは必ずしも正確とは限りません。詳細に関しては最寄店舗または各自治体の教育委員会に必ずご確認ください。
無料この物件に問い合わせ
- 六角橋戸建 1号室

-
17万円
(共益費
-)
- 敷
- 2ヶ月
- 礼
- -
- 保
- -
- 償
- -
六角橋戸建 1号室の物件のお問い合わせ先・取り扱い店舗
ハウスコム 横浜店
- アクセス
-
東海道本線(JR東日本)「横浜駅」徒歩5分
- 住所
- 〒220-0005 神奈川県横浜市西区南幸2丁目20−2 共栄ビル 1F
- 営業時間
- 10:00~18:00
- 定休日
- なし
- 営業エリア
- 横浜市全域
- 取引態様
- 賃貸仲介業




























