東雲キャナルコートCODAN20号棟 0707号室(7階/1SLDK)の賃貸物件(賃貸マンション)
東京都江東区にある東雲キャナルコートCODAN20号棟 0707号室はオートロック、宅配ボックス、エアコン、エレベーター、バイク置き場などが特徴です。最寄り駅の東京メトロ 有楽町線辰巳駅から徒歩11分です。東雲キャナルコートCODAN20号棟 0707号室の詳細はハウスコム 西葛西店までお気軽にお問い合わせください!
情報更新日:
次回更新予定日:
※次回更新予定日について:お店側では順次空室確認を行っていますが、次回更新予定日までに空室確認が行えない場合には、この物件情報は自動的に削除されます。
東雲キャナルコートCODAN20号棟 0707号室の賃貸物件部屋概要
家賃 |
25.8万円
初期費用を |
|---|---|
共益費 |
15,000円
入居可能時期 |
敷金/礼金 |
1ヶ月 / 1.5ヶ月 |
保証金/ |
- / - |
最寄駅 |
|
所在地 |
東京都江東区東雲 |
部屋番号 |
0707号室 |
間取り |
1SLDK(LDK13.9・洋7.9・S5.9) |
専有面積 |
74.51㎡ |
築年数 |
2005年3月(築21年) |
階数 |
7階部分(地上12階地下1階建) |
方位・位置 |
東 / その他 |
物件種別 |
賃貸マンション |
構造 |
RC |
駐車場 |
無 |
小学校学区 |
辰巳小学校 |
中学校学区 |
辰巳中学校 |
他の空き部屋 |
1106号室 |
- 学区データについて
- ※学区データは必ずしも正確とは限りません。詳細に関しては最寄店舗または各自治体の教育委員会に必ずご確認ください。
東雲キャナルコートCODAN20号棟 0707号室の特徴
セキュリティ
この物件の建物には、オートロックや宅配ボックスが設置されております。
室内設備
トイレは、温水洗浄便座機能付きになります。
居室状況
エアコンが設置されています。
建物設備共用部分
建物の共用スペースに、日々の出入に便利なエレベーターや、急な外出や不在がちのご家庭の荷物受け取りに便利な宅配ボックスが設置されています。 駐輪場、バイク置き場が利用できます。
周辺施設
この物件の学区は、辰巳小学校区・辰巳中学校区です。
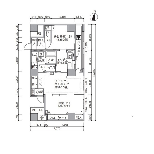
東雲キャナルコートCODAN20号棟 0707号室の間取り
間取り:1SLDK
間取詳細:1SLDK(LDK13.9・洋7.9・S5.9)
専有面積:74.51㎡
方位:東
部屋位置:その他
東雲キャナルコートCODAN20号棟 0707号室の設備
バス・トイレ
温水洗浄便座
玄関
オートロック
宅配ボックス
室内設備
エアコン
位置・立地
2階以上
インフラ
CATV
建物設備
エレベーター
駐輪場
バイク置き場
ライフステージ
一人暮らしに人気の設備
東雲キャナルコートCODAN20号棟 0707号室の賃貸契約情報
毎月支払う |
家賃25.8万円/月共益費15,000円/月 |
|---|---|
初期費用 |
敷金1ヶ月 (25.8万円)礼金1.5ヶ月 (38.7万円)保証金-敷引き償却金- |
更新料 |
258,000円 |
鍵交換費用 |
- |
室内清掃費用 |
- |
鍵交換代 |
33,000円 |
駐車場料金 |
無 |
損保・ |
借家賠付きの火災保険にご加入いただきます。 |
保証会社 |
加入要 保証会社利用料:レジデンシャルパートナーズ 保証料:賃料等の50%(最低2万)、月額保証・事務手数料:賃料等の1%(更新料無) |
契約期間 |
2年 |
入居可能日 |
2025年12月下旬 |
フリーレント期間 |
- |
取引形態 |
一般媒介 |
備考 |
清掃費:103620円(退去時請求).エアコン清掃費:28600円(退去時請求) |
東雲キャナルコートCODAN20号棟 0707号室の建物情報
建物名称 |
東雲キャナルコートCODAN20号棟 |
|---|---|
最寄駅 |
|
所在地 |
東京都江東区東雲 |
階層 |
7階部分(地上12階地下1階建) |
構造 |
RC |
築年数 |
2005年3月(築21年) |
駐車場 |
無 |
小学校学区 |
辰巳小学校 |
中学校学区 |
辰巳中学校 |
1/9 外観
- 学区データについて
- ※学区データは必ずしも正確とは限りません。詳細に関しては最寄店舗または各自治体の教育委員会に必ずご確認ください。
無料この物件に問い合わせ
- 東雲キャナルコートCODAN20号棟 0707号室

-
25.8万円
(共益費
15,000円)
- 敷
- 1ヶ月
- 礼
- 1.5ヶ月
- 保
- -
- 償
- -
東雲キャナルコートCODAN20号棟 0707号室の物件のお問い合わせ先・取り扱い店舗
ハウスコム 西葛西店
- アクセス
-
東京メトロ 東西線「西葛西駅」徒歩1分
- 住所
- 〒134-0088 東京都江戸川区西葛西6-15-3 中兼ビル1階
- 営業時間
- 10:00~18:00
- 定休日
- なし
- 営業エリア
- 東京都江戸川区 江東区 中央区全域 千葉県浦安市 市川市全域
- 取引態様
- 賃貸仲介業
お問い合わせNo. HC5-886411-0707-0186












