ビレッジハウス津田1号棟 0403号室(4階/3DK)の賃貸物件(賃貸マンション)
愛知県豊橋市にあるビレッジハウス津田1号棟 0403号室はバルコニー、ルーフバルコニー、エアコン、2階以上、都市ガスなどが特徴です。最寄り駅の飯田線下地駅から徒歩5分です。ビレッジハウス津田1号棟 0403号室の詳細はハウスコム 豊橋店までお気軽にお問い合わせください!
情報更新日:
次回更新予定日:
※次回更新予定日について:お店側では順次空室確認を行っていますが、次回更新予定日までに空室確認が行えない場合には、この物件情報は自動的に削除されます。
ビレッジハウス津田1号棟 0403号室の賃貸物件部屋概要
家賃 |
4.42万円
初期費用を |
|---|---|
共益費 |
-
入居可能時期 |
敷金/礼金 |
- / - |
保証金/ |
- / - |
最寄駅 |
|
所在地 |
愛知県豊橋市横須賀町 |
部屋番号 |
0403号室 |
間取り |
3DK |
専有面積 |
57.96㎡ |
築年数 |
1966年6月(築60年) |
階数 |
4階部分(地上4階建) |
方位・位置 |
南 / その他 |
物件種別 |
賃貸マンション |
構造 |
RC |
駐車場 |
3,300円 |
小学校学区 |
津田小学校 |
中学校学区 |
北部中学校 |
他の空き部屋 |
0102号室 |
- 学区データについて
- ※学区データは必ずしも正確とは限りません。詳細に関しては最寄店舗または各自治体の教育委員会に必ずご確認ください。
ビレッジハウス津田1号棟 0403号室の特徴
契約条件
この物件は、2人入居もご契約できます。 敷金と礼金が無料なため、初期費用が比較的安くなる傾向にあります。
室内設備
女性に嬉しい設備の独立した洗面化粧台があります。 洗濯に便利な設備として、室内洗濯機置場があります。
居室状況
エアコンが設置されています。
建物設備共用部分
居室外の専有スペースとして、洗濯物を干すなどの用途として利用できるバルコニーがあります。
周辺施設
この物件の学区は、津田小学校区・北部中学校区です。
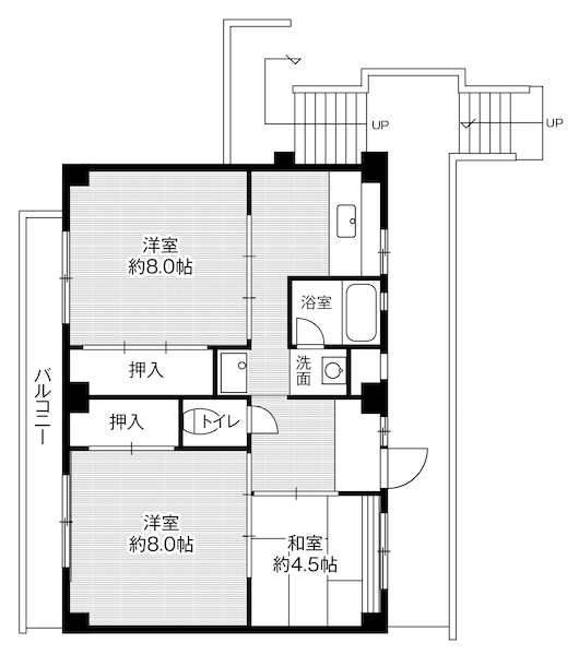
ビレッジハウス津田1号棟 0403号室の間取り
間取り:3DK
間取詳細:3DK
専有面積:57.96㎡
方位:南
部屋位置:その他
ビレッジハウス津田1号棟 0403号室の設備
バス・トイレ
バス・トイレ別
独立洗面台
バルコニー
バルコニー
ルーフバルコニー
室内設備
エアコン
室内洗濯機置場
位置・立地
2階以上
最上階
南向き
インフラ
インターネット可
都市ガス
入居条件
2人入居可
即入居可
ライフステージ
一人暮らしに人気の設備
カップルに人気の設備
家族に人気の設備
夫婦に人気の設備
三世代で人気の設備
こだわり
外で子どもと遊びたい
雨の日でも洗濯したい
寝るためだけの部屋
趣味
ガーデニングが好き
ビレッジハウス津田1号棟 0403号室の賃貸契約情報
毎月支払う |
家賃4.42万円/月共益費- |
|---|---|
初期費用 |
敷金-礼金-保証金-敷引き償却金- |
更新料 |
- |
鍵交換費用 |
- |
室内清掃費用 |
- |
退去時クリーニング費用 |
70,131円 |
駐車場料金 |
3,300円 |
損保・ |
借家賠付きの火災保険にご加入いただきます。 |
保証会社 |
|
契約期間 |
2年 |
入居可能日 |
即入居可 |
フリーレント期間 |
- |
取引形態 |
一般媒介 |
備考 |
- |
ビレッジハウス津田1号棟 0403号室の建物情報
建物名称 |
ビレッジハウス津田1号棟 |
|---|---|
最寄駅 |
|
所在地 |
愛知県豊橋市横須賀町 |
階層 |
4階部分(地上4階建) |
構造 |
RC |
築年数 |
1966年6月(築60年) |
駐車場 |
3,300円 |
小学校学区 |
津田小学校 |
中学校学区 |
北部中学校 |
1/10 外観
- 学区データについて
- ※学区データは必ずしも正確とは限りません。詳細に関しては最寄店舗または各自治体の教育委員会に必ずご確認ください。
無料この物件に問い合わせ
- ビレッジハウス津田1号棟 0403号室

-
4.42万円
(共益費
-)
- 敷
- -
- 礼
- -
- 保
- -
- 償
- -
ビレッジハウス津田1号棟 0403号室の物件のお問い合わせ先・取り扱い店舗
ハウスコム 豊橋店
年中無休(年末年始などを除く)
- アクセス
-
東海道本線(JR東海)「豊橋駅」西口徒歩9分
- 住所
- 〒441-8023 愛知県豊橋市八通町105
- 営業時間
- 10:00~18:00
- 定休日
- なし
- 営業エリア
- 豊橋市,豊川市,田原市,湖西市,新城市,蒲郡市,
- 取引態様
- 賃貸仲介業
お問い合わせNo. HC5-3502410-0403-0094
































