STANDZ京都二条 403号室(4階/2LDK)の賃貸物件(賃貸マンション)
京都府京都市上京区にあるSTANDZ京都二条 403号室は独立洗面台、TVモニタ付インターホン、クローゼット、24時間ゴミ出しOK、24時間換気システムなどが特徴です。最寄り駅の京都市営地下鉄 東西線二条駅から徒歩12分です。STANDZ京都二条 403号室の詳細はクラスモ FC四条烏丸店までお気軽にお問い合わせください!
情報更新日:
次回更新予定日:
※次回更新予定日について:お店側では順次空室確認を行っていますが、次回更新予定日までに空室確認が行えない場合には、この物件情報は自動的に削除されます。
STANDZ京都二条 403号室の賃貸物件部屋概要
家賃 |
17.1万円
初期費用を |
|---|---|
共益費 |
10,000円
入居可能時期 |
敷金/礼金 |
85,500円 / - |
保証金/ |
- / - |
最寄駅 |
|
所在地 |
京都府京都市上京区十四軒町 |
部屋番号 |
403号室 |
間取り |
2LDK(LDK14.9・洋3.5・洋5) |
専有面積 |
53.40㎡ |
築年数 |
2026年1月 |
階数 |
4階部分(地上7階建) |
方位・位置 |
南 / その他 |
物件種別 |
賃貸マンション |
構造 |
RC |
駐車場 |
空無し |
小学校学区 |
二条城北小学校 |
中学校学区 |
二条中学校 |
他の空き部屋 |
101号室 102号室 201号室 202号室 203号室 204号室 301号室 302号室 303号室 304号室 401号室 402号室 404号室 501号室 502号室 503号室 504号室 601号室 602号室 603号室 604号室 701号室 702号室 703号室 704号室 |
- 学区データについて
- ※学区データは必ずしも正確とは限りません。詳細に関しては最寄店舗または各自治体の教育委員会に必ずご確認ください。
STANDZ京都二条 403号室の特徴
契約条件
この物件は、2人入居もご契約できます。 ペットの飼育もご相談ください。 また、ご契約時に保証人は不要です。 礼金が無料なため、初期費用が比較的安くなる傾向にあります。 お支払いは、初期費用がクレジットカードにて決済できます。
セキュリティ
この物件の建物には、オートロックや宅配ボックスが設置されており、来客時には居室内のテレビモニターにて訪問者の顔を確認することができます。
室内設備
システムキッチンには、2つ以上のガスコンロが備え付けられています。 お風呂とトイレは別です。お風呂には、追い焚き機能が備わっています。 トイレは、温水洗浄便座機能付きになります。 女性に嬉しい設備のシャワーの付いている洗面化粧台があります。 洗濯に便利な設備として、室内洗濯機置場があります。浴室乾燥機も設置されているので、梅雨時の生乾き臭も比較的防ぐことができます。
居室状況
お部屋の床は、全居室フローリングとなっており、エアコンが設置されています。 収納スペースとして、基本的な居室にクローゼットを設置、玄関にはシューズボックスがあります。
建物設備共用部分
居室外の専有スペースとして、洗濯物を干すなどの用途として利用できるバルコニーがあります。 建物の共用スペースに、日々の出入に便利なエレベーターや、急な外出や不在がちのご家庭の荷物受け取りに便利な宅配ボックスや、居室内を常に清潔に保てる24時間利用可能なゴミ捨て置き場が設置されています。 駐輪場が利用できます。
周辺施設
この物件の学区は、二条城北小学校区・二条中学校区です。近くには、徒歩5分(376m)でドラッグストアがあります。
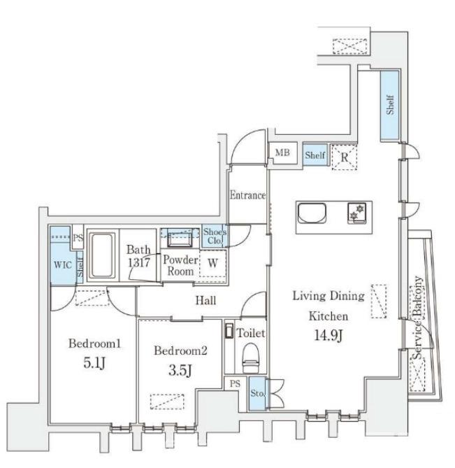
STANDZ京都二条 403号室の間取り
間取り:2LDK
間取詳細:2LDK(LDK14.9・洋3.5・洋5)
専有面積:53.40㎡
方位:南
部屋位置:その他
STANDZ京都二条 403号室の設備
キッチン
システムキッチン
カウンターキッチン
ガスコンロ
ガスコンロ二口以上
バス・トイレ
バス・トイレ別
追い焚き
浴室乾燥機
温水洗浄便座
独立洗面台
シャワー付洗面化粧台
玄関
TVモニタ付インターホン
オートロック
宅配ボックス
収納
クローゼット
シューズボックス
バルコニー
バルコニー
室内設備
エアコン
フローリング
全居室フローリング
室内洗濯機置場
位置・立地
2階以上
南向き
インフラ
インターネット可
BS
CS
都市ガス
建物設備
エレベーター
24時間ゴミ出しOK
24時間換気システム
駐輪場
入居条件
ペット可・相談
2人入居可
保証人不要
ライフステージ
一人暮らしに人気の設備
カップルに人気の設備
家族に人気の設備
夫婦に人気の設備
三世代で人気の設備
こだわり
タイパ重視
雨の日でも洗濯したい
洋室で暮らしたい
趣味
推し活グッズを飾りたい
お得な条件
初期費用カード決済可
STANDZ京都二条 403号室の賃貸契約情報
毎月支払う |
家賃17.1万円/月共益費10,000円/月 |
|---|---|
初期費用 |
敷金85,500円礼金-保証金-敷引き償却金- |
更新料 |
1ヶ月 |
鍵交換費用 |
- |
室内清掃費用 |
70,488円 |
駐車場料金 |
空無し |
損保・ |
借家賠付きの火災保険にご加入いただきます。 |
保証会社 |
加入要 保証会社:レジデントアシスタンス 保証会社利用料:初回契約時:50%、更新時:9,600円、口座振替手数料110円/月額 |
契約期間 |
2年 |
入居可能日 |
2026年02月上旬 |
フリーレント期間 |
- |
取引形態 |
一般媒介 |
備考 |
弊社は来店不要のオンライン内見、オンライン申込みが可能です。各種クレジットカード決済もご利用可能です。 |
STANDZ京都二条 403号室の建物情報
建物名称 |
STANDZ京都二条 |
|---|---|
最寄駅 |
|
所在地 |
京都府京都市上京区十四軒町 |
階層 |
4階部分(地上7階建) |
構造 |
RC |
築年数 |
2026年1月 |
駐車場 |
空無し |
小学校学区 |
二条城北小学校 |
中学校学区 |
二条中学校 |
- 学区データについて
- ※学区データは必ずしも正確とは限りません。詳細に関しては最寄店舗または各自治体の教育委員会に必ずご確認ください。
無料この物件に問い合わせ
- STANDZ京都二条 403号室

-
17.1万円
(共益費
10,000円)
- 敷
- 85,500円
- 礼
- -
- 保
- -
- 償
- -
STANDZ京都二条 403号室の物件のお問い合わせ先・取り扱い店舗
クラスモ FC四条烏丸店
- アクセス
-
京都市営地下鉄 烏丸線「四条駅」徒歩3分
阪急京都線「烏丸駅」徒歩3分
京都市営地下鉄 烏丸線「烏丸御池駅」徒歩13分
- 住所
- 〒600-8492 京都府京都市下京区月鉾町47-4 四条廣田ビル1F
- 営業時間
- 10:00~19:00
- 定休日
- なし(年末年始)
- 営業エリア
- 京都市内全域 北区・上京区・中京区・下京区・東山区・右京区 左京区・南区・伏見区・西京区・山科区
- 取引態様
- 賃貸仲介業・FC店






































