ダノイ美崇 101号室(1階/2LDK)の賃貸物件(賃貸マンション)
愛知県名古屋市名東区にあるダノイ美崇 101号室はTVモニタ付インターホン、エアコン、室内洗濯機置場、都市ガス、駐輪場などが特徴です。最寄り駅の名古屋市営地下鉄 東山線藤が丘駅から徒歩8分です。ダノイ美崇 101号室の詳細はハウスコム 藤が丘店までお気軽にお問い合わせください!
情報更新日:
次回更新予定日:
※次回更新予定日について:お店側では順次空室確認を行っていますが、次回更新予定日までに空室確認が行えない場合には、この物件情報は自動的に削除されます。
ダノイ美崇 101号室の賃貸物件部屋概要
家賃 |
10万円
初期費用を |
|---|---|
共益費 |
5,000円
入居可能時期 |
敷金/礼金 |
1ヶ月 / - |
保証金/ |
- / - |
最寄駅 |
|
所在地 |
愛知県名古屋市名東区富が丘 |
部屋番号 |
101号室 |
間取り |
2LDK(LDK12.5・洋7.6・洋6) |
専有面積 |
60.32㎡ |
築年数 |
2006年3月(築20年) |
階数 |
1階部分(地上3階建) |
方位・位置 |
南東 / 角部屋 |
物件種別 |
賃貸マンション |
構造 |
RC |
駐車場 |
11,000円 |
小学校学区 |
藤が丘小学校 |
中学校学区 |
藤森中学校 |
他の空き部屋 |
***号室 |
- 学区データについて
- ※学区データは必ずしも正確とは限りません。詳細に関しては最寄店舗または各自治体の教育委員会に必ずご確認ください。
ダノイ美崇 101号室の特徴
-
一人暮らしに人気の設備

-
カップルに人気の設備

-
家族に人気の設備

-
夫婦に人気の設備

-
三世代で人気の設備

-
地震対策された建物

-
外で子どもと遊びたい

-
雨の日でも洗濯したい

-
オークション・通販が好き

-
ガーデニングが好き

契約条件
礼金が無料なため、初期費用が比較的安くなる傾向にあります。
セキュリティ
この物件の建物には、オートロックや宅配ボックスが設置されており、来客時には居室内のテレビモニターにて訪問者の顔を確認することができます。
室内設備
システムキッチンが備え付けられています。 お風呂とトイレは別です。お風呂には、追い焚き機能が備わっています。 女性に嬉しい設備の独立した洗面化粧台があります。 洗濯に便利な設備として、室内洗濯機置場があります。
居室状況
エアコンが設置されています。 インターネットも無料で入居後すぐ生活が始められます。 収納スペースとして、基本的な居室にクローゼットを設置、玄関にはシューズボックスがあります。
建物設備共用部分
居室外の専有スペースとして、洗濯物を干すなどの用途として利用できるバルコニーがあります。 建物の共用スペースに、急な外出や不在がちのご家庭の荷物受け取りに便利な宅配ボックスが設置されています。 駐輪場が利用できます。 この物件の建物は、建物全体をしっかり固定することで、地震の揺れに耐えるように設計された耐震構造の建築物です。
周辺施設
この物件の学区は、藤が丘小学校区・藤森中学校区です。
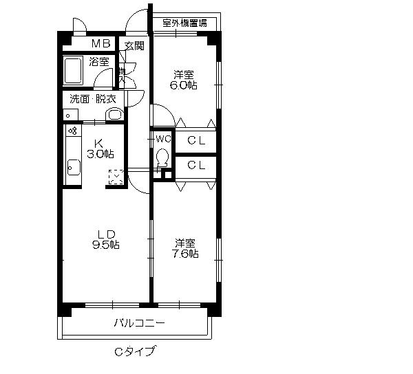
ダノイ美崇 101号室の間取り
間取り:2LDK
間取詳細:2LDK(LDK12.5・洋7.6・洋6)
専有面積:60.32㎡
方位:南東
部屋位置:角部屋
ダノイ美崇 101号室の設備
キッチン
システムキッチン
バス・トイレ
バス・トイレ別
追い焚き
独立洗面台
玄関
TVモニタ付インターホン
オートロック
宅配ボックス
収納
クローゼット
シューズボックス
バルコニー
バルコニー
ルーフバルコニー
室内設備
エアコン
室内洗濯機置場
位置・立地
1階
角部屋
インフラ
インターネット可
都市ガス
建物設備
駐輪場
耐震構造
ライフステージ
一人暮らしに人気の設備
カップルに人気の設備
家族に人気の設備
夫婦に人気の設備
三世代で人気の設備
トレンド
地震対策された建物
こだわり
外で子どもと遊びたい
雨の日でも洗濯したい
趣味
オークション・通販が好き
ガーデニングが好き
お得な条件
インターネット無料
ダノイ美崇 101号室の賃貸契約情報
毎月支払う |
家賃10万円/月共益費5,000円/月 |
|---|---|
初期費用 |
敷金1ヶ月 (10万円)礼金-保証金-敷引き償却金- |
更新料 |
- |
鍵交換費用 |
11,000円 |
室内清掃費用 |
- |
駐車場料金 |
11,000円 |
損保・ |
借家賠付きの火災保険にご加入いただきます。 |
保証会社 |
加入要 保証会社利用料:イントラスト ●初回保証料 総賃料×50% ●月額保証料 総賃料×1.5%(変動費含む) |
契約期間 |
2年 |
入居可能日 |
相談 |
フリーレント期間 |
- |
取引形態 |
一般媒介 |
備考 |
- |
ダノイ美崇 101号室の建物情報
建物名称 |
ダノイ美崇 |
|---|---|
最寄駅 |
|
所在地 |
愛知県名古屋市名東区富が丘 |
階層 |
1階部分(地上3階建) |
構造 |
RC |
築年数 |
2006年3月(築20年) |
駐車場 |
11,000円 |
小学校学区 |
藤が丘小学校 |
中学校学区 |
藤森中学校 |
- 学区データについて
- ※学区データは必ずしも正確とは限りません。詳細に関しては最寄店舗または各自治体の教育委員会に必ずご確認ください。
無料この物件に問い合わせ
- ダノイ美崇 101号室

-
10万円
(共益費
5,000円)
- 敷
- 1ヶ月
- 礼
- -
- 保
- -
- 償
- -
ダノイ美崇 101号室の物件のお問い合わせ先・取り扱い店舗
ハウスコム 藤が丘店
- アクセス
-
名古屋市営地下鉄 東山線「藤が丘駅」徒歩2分
- 住所
- 〒465-0033 愛知県名古屋市名東区明が丘123−2 第一明が丘ビル 1階
- 営業時間
- 10:00~18:00
- 定休日
- なし
- 営業エリア
- 名東区,長久手市,日進市,尾張旭市,瀬戸市、守山区
- 取引態様
- 賃貸仲介業




























