リバーサイドタワー中之島 ***号室(16階/1LDK)の賃貸物件(賃貸マンション)
大阪府大阪市福島区にあるリバーサイドタワー中之島 ***号室は浴室乾燥機、宅配ボックス、ルーフバルコニー、エレベーター、2人入居可などが特徴です。最寄り駅の大阪環状線福島駅から徒歩9分です。リバーサイドタワー中之島 ***号室の詳細はミニミニ FC心斎橋店までお気軽にお問い合わせください!
情報更新日:
次回更新予定日:
※次回更新予定日について:お店側では順次空室確認を行っていますが、次回更新予定日までに空室確認が行えない場合には、この物件情報は自動的に削除されます。
リバーサイドタワー中之島 ***号室の賃貸物件部屋概要
家賃 |
25万円
初期費用を |
|---|---|
共益費 |
-
入居可能時期 |
敷金/礼金 |
1ヶ月 / 1ヶ月 |
保証金/ |
- / - |
最寄駅 |
|
所在地 |
大阪府大阪市福島区福島 |
部屋番号 |
***号室 |
間取り |
1LDK(LDK21.6・洋6.7) |
専有面積 |
66.13㎡ |
築年数 |
2010年2月(築16年) |
階数 |
16階部分(地上31階建) |
方位・位置 |
北西 / 角部屋 |
物件種別 |
賃貸マンション |
構造 |
RC |
駐車場 |
33,000円 |
小学校学区 |
上福島小学校 |
中学校学区 |
下福島中学校 |
他の空き部屋 |
***号室 ***号室 ***号室 ***号室 ***号室 ***号室 |
- 学区データについて
- ※学区データは必ずしも正確とは限りません。詳細に関しては最寄店舗または各自治体の教育委員会に必ずご確認ください。
リバーサイドタワー中之島 ***号室の特徴
-
一人暮らしに人気の設備

-
カップルに人気の設備

-
家族に人気の設備

-
夫婦に人気の設備

-
三世代で人気の設備

-
地震対策された建物

-
セキュリティ対策重視

-
外で子どもと遊びたい

-
雨の日でも洗濯したい

-
洋室で暮らしたい

-
料理が好き

-
推し活グッズを飾りたい

-
ガーデニングが好き

契約条件
この物件は、2人入居もご契約できます。 ペットの飼育もご相談ください。
セキュリティ
この物件の建物には、オートロックや防犯カメラや宅配ボックスが設置されており、来客時には居室内のテレビモニターにて訪問者の顔を確認することができます。
室内設備
システムキッチンには、ガスコンロが備え付けられています。 お風呂とトイレは別です。お風呂には、追い焚き機能が備わっています。 トイレは、温水洗浄便座機能付きになります。 女性に嬉しい設備の独立した洗面化粧台があります。 洗濯に便利な設備として、室内洗濯機置場があります。浴室乾燥機も設置されているので、梅雨時の生乾き臭も比較的防ぐことができます。
居室状況
お部屋の床は、フローリングとなっており、エアコンが設置されています。 収納スペースとして、基本的な居室にクローゼットを設置、玄関にはシューズボックスがあります。
建物設備共用部分
居室外の専有スペースとして、洗濯物を干すなどの用途として利用できるバルコニーがあります。 建物の共用スペースに、日々の出入に便利なエレベーターや、いざという時の防犯カメラや、急な外出や不在がちのご家庭の荷物受け取りに便利な宅配ボックスが設置されています。 駐輪場、バイク置き場が利用できます。 この物件の建物は、建物と地面の間に設置した免震装置によって、地震の揺れを建物に伝えにくくするように設計された免震構造の建築物です。
周辺施設
この物件の学区は、上福島小学校区・下福島中学校区です。
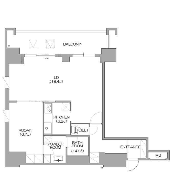
リバーサイドタワー中之島 ***号室の間取り
間取り:1LDK
間取詳細:1LDK(LDK21.6・洋6.7)
専有面積:66.13㎡
方位:北西
部屋位置:角部屋
リバーサイドタワー中之島 ***号室の設備
キッチン
システムキッチン
カウンターキッチン
ガスコンロ
バス・トイレ
バス・トイレ別
追い焚き
浴室乾燥機
温水洗浄便座
独立洗面台
玄関
TVモニタ付インターホン
オートロック
宅配ボックス
収納
クローゼット
シューズボックス
バルコニー
バルコニー
ルーフバルコニー
室内設備
エアコン
フローリング
室内洗濯機置場
デザイナーズ
位置・立地
2階以上
角部屋
インフラ
インターネット可
CATV
BS
CS
都市ガス
建物設備
エレベーター
防犯カメラ
駐輪場
バイク置き場
免震構造
入居条件
ペット可・相談
2人入居可
オンライン相談可
オンライン内見可
ライフステージ
一人暮らしに人気の設備
カップルに人気の設備
家族に人気の設備
夫婦に人気の設備
三世代で人気の設備
トレンド
地震対策された建物
こだわり
セキュリティ対策重視
外で子どもと遊びたい
雨の日でも洗濯したい
洋室で暮らしたい
趣味
料理が好き
推し活グッズを飾りたい
ガーデニングが好き
リバーサイドタワー中之島 ***号室の賃貸契約情報
毎月支払う |
家賃25万円/月共益費- |
|---|---|
初期費用 |
敷金1ヶ月 (25万円)礼金1ヶ月 (25万円)保証金-敷引き償却金- |
更新料 |
- |
鍵交換費用 |
16,500円 |
室内清掃費用 |
- |
駐車場料金 |
33,000円 |
損保・ |
借家賠付きの火災保険にご加入いただきます。 |
保証会社 |
加入要 保証会社利用料:保証会社保証料 審査内容による |
契約期間 |
2年 |
入居可能日 |
2026年03月下旬 |
フリーレント期間 |
- |
取引形態 |
一般媒介 |
備考 |
ハウスクリーニング1000円/平米(税別)入居時 ペット飼育可能(13F・14F・28F不可) 礼金1ヵ月 小型犬または猫1匹まで |
リバーサイドタワー中之島 ***号室の建物情報
建物名称 |
リバーサイドタワー中之島 |
|---|---|
最寄駅 |
|
所在地 |
大阪府大阪市福島区福島 |
階層 |
16階部分(地上31階建) |
構造 |
RC |
築年数 |
2010年2月(築16年) |
駐車場 |
33,000円 |
小学校学区 |
上福島小学校 |
中学校学区 |
下福島中学校 |
- 学区データについて
- ※学区データは必ずしも正確とは限りません。詳細に関しては最寄店舗または各自治体の教育委員会に必ずご確認ください。
無料この物件に問い合わせ
- リバーサイドタワー中之島 ***号室

-
25万円
(共益費
-)
- 敷
- 1ヶ月
- 礼
- 1ヶ月
- 保
- -
- 償
- -
リバーサイドタワー中之島 ***号室の物件のお問い合わせ先・取り扱い店舗
ミニミニ FC心斎橋店
- アクセス
-
大阪メトロ 御堂筋線「心斎橋駅」徒歩2分
大阪メトロ 長堀鶴見緑地線「心斎橋駅」徒歩2分
- 住所
- 〒542-0081 大阪府大阪市中央区南船場3-11-6 アルファビル1F
- 営業時間
- 10:00~18:00
- 定休日
- なし(12月25日~1月3日の年末年始は休業となります)
- 営業エリア
- 大阪市中央区,大阪市西区、大阪市北区、大阪市浪速区、大阪市城東区、大阪市港区、大阪市福島区
- 取引態様
- 賃貸仲介業





























