オーキッドレジデンス鶴見 0418号室(4階/1K)の賃貸物件(賃貸マンション)
神奈川県横浜市鶴見区にあるオーキッドレジデンス鶴見 0418号室はバルコニー、ルーフバルコニー、フローリング、2階以上、防犯カメラなどが特徴です。最寄り駅の京急本線京急鶴見駅から徒歩13分です。オーキッドレジデンス鶴見 0418号室の詳細はハウスコム 鶴見店までお気軽にお問い合わせください!
情報更新日:
次回更新予定日:
※次回更新予定日について:お店側では順次空室確認を行っていますが、次回更新予定日までに空室確認が行えない場合には、この物件情報は自動的に削除されます。
オーキッドレジデンス鶴見 0418号室の賃貸物件部屋概要
家賃 |
9万円
初期費用を |
|---|---|
共益費 |
10,000円
入居可能時期 |
敷金/礼金 |
90,000円 / - |
保証金/ |
- / - |
最寄駅 |
|
所在地 |
神奈川県横浜市鶴見区下野谷町 |
部屋番号 |
0418号室 |
間取り |
1K |
専有面積 |
22.33㎡ |
築年数 |
2018年12月(築7年) |
階数 |
4階部分(地上7階建) |
方位・位置 |
ー / その他 |
物件種別 |
賃貸マンション |
構造 |
RC |
駐車場 |
19,800円 |
小学校学区 |
下野谷小学校 |
中学校学区 |
潮田中学校 |
他の空き部屋 |
0314号室 0316号室 0318号室 0407号室 0411号室 0412号室 0421号室 |
- 学区データについて
- ※学区データは必ずしも正確とは限りません。詳細に関しては最寄店舗または各自治体の教育委員会に必ずご確認ください。
オーキッドレジデンス鶴見 0418号室の特徴
-
一人暮らしに人気の設備

-
カップルに人気の設備

-
家族に人気の設備

-
夫婦に人気の設備

-
三世代で人気の設備

-
セキュリティ対策重視

-
外で子どもと遊びたい

-
雨の日でも洗濯したい

-
洋室で暮らしたい

-
オークション・通販が好き

-
ガーデニングが好き

契約条件
礼金が無料なため、初期費用が比較的安くなる傾向にあります。
セキュリティ
この物件の建物には、オートロックや防犯カメラや宅配ボックスが設置されており、来客時には居室内のテレビモニターにて訪問者の顔を確認することができます。
室内設備
システムキッチンには、2つ以上のガスコンロが備え付けられています。 トイレは、温水洗浄便座機能付きになります。 女性に嬉しい設備の独立した洗面化粧台があります。 洗濯に便利な設備として、浴室乾燥機も設置されているので、梅雨時の生乾き臭も比較的防ぐことができます。
居室状況
お部屋の床は、フローリングとなっており、エアコンが設置されています。 インターネットも無料で入居後すぐ生活が始められます。 収納スペースとして、基本的な居室にクローゼットを設置、玄関にはシューズボックスがあります。
建物設備共用部分
居室外の専有スペースとして、洗濯物を干すなどの用途として利用できるバルコニーがあります。 建物の共用スペースに、日々の出入に便利なエレベーターや、いざという時の防犯カメラや、急な外出や不在がちのご家庭の荷物受け取りに便利な宅配ボックスが設置されています。 駐輪場、バイク置き場が利用できます。
周辺施設
この物件の学区は、下野谷小学校区・潮田中学校区です。
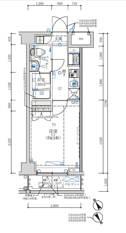
オーキッドレジデンス鶴見 0418号室の間取り
間取り:1K
間取詳細:1K
専有面積:22.33㎡
方位:ー
部屋位置:その他
オーキッドレジデンス鶴見 0418号室の設備
キッチン
システムキッチン
ガスコンロ
ガスコンロ二口以上
バス・トイレ
浴室乾燥機
温水洗浄便座
独立洗面台
玄関
TVモニタ付インターホン
オートロック
宅配ボックス
収納
クローゼット
シューズボックス
バルコニー
バルコニー
ルーフバルコニー
室内設備
エアコン
フローリング
位置・立地
2階以上
インフラ
BS
CS
都市ガス
建物設備
エレベーター
防犯カメラ
駐輪場
バイク置き場
ライフステージ
一人暮らしに人気の設備
カップルに人気の設備
家族に人気の設備
夫婦に人気の設備
三世代で人気の設備
こだわり
セキュリティ対策重視
外で子どもと遊びたい
雨の日でも洗濯したい
洋室で暮らしたい
趣味
オークション・通販が好き
ガーデニングが好き
お得な条件
インターネット無料
オーキッドレジデンス鶴見 0418号室の賃貸契約情報
毎月支払う |
家賃9万円/月共益費10,000円/月 |
|---|---|
初期費用 |
敷金90,000円礼金-保証金-敷引き償却金- |
更新料 |
90,000円 |
鍵交換費用 |
16,500円 |
室内清掃費用 |
- |
火災保険料 |
18,000円 |
駐車場料金 |
19,800円 |
損保・ |
借家賠付きの火災保険にご加入いただきます。 |
保証会社 |
|
契約期間 |
- |
入居可能日 |
相談 |
フリーレント期間 |
- |
取引形態 |
一般媒介 |
備考 |
- |
オーキッドレジデンス鶴見 0418号室の建物情報
建物名称 |
オーキッドレジデンス鶴見 |
|---|---|
最寄駅 |
|
所在地 |
神奈川県横浜市鶴見区下野谷町 |
階層 |
4階部分(地上7階建) |
構造 |
RC |
築年数 |
2018年12月(築7年) |
駐車場 |
19,800円 |
小学校学区 |
下野谷小学校 |
中学校学区 |
潮田中学校 |
- 学区データについて
- ※学区データは必ずしも正確とは限りません。詳細に関しては最寄店舗または各自治体の教育委員会に必ずご確認ください。
無料この物件に問い合わせ
- オーキッドレジデンス鶴見 0418号室

-
9万円
(共益費
10,000円)
- 敷
- 90,000円
- 礼
- -
- 保
- -
- 償
- -
オーキッドレジデンス鶴見 0418号室の物件のお問い合わせ先・取り扱い店舗
ハウスコム 鶴見店
- アクセス
-
京浜東北・根岸線「鶴見駅」西口徒歩1分
- 住所
- 〒230-0062 神奈川県横浜市鶴見区豊岡町2−2 鶴見フーガ2 3階
- 営業時間
- 10:00~18:00
- 定休日
- 木曜日
- 営業エリア
- 鶴見区・神奈川区・川崎区・幸区
- 取引態様
- 賃貸仲介業


