KEIAI RESIDENCE新松戸Ⅱ 203号室(2階/1K)の賃貸物件(賃貸アパート)
千葉県松戸市にあるKEIAI RESIDENCE新松戸Ⅱ 203号室はガスコンロ二口以上、バス・トイレ別、宅配ボックス、室内洗濯機置場、インターネット可などが特徴です。最寄り駅の常磐線各駅停車(千代田線直通)新松戸駅から徒歩12分です。KEIAI RESIDENCE新松戸Ⅱ 203号室の詳細はハウスコム 南流山店までお気軽にお問い合わせください!
情報更新日:
次回更新予定日:
※次回更新予定日について:お店側では順次空室確認を行っていますが、次回更新予定日までに空室確認が行えない場合には、この物件情報は自動的に削除されます。
KEIAI RESIDENCE新松戸Ⅱ 203号室の賃貸物件部屋概要
家賃 |
6.8万円
初期費用を |
|---|---|
共益費 |
3,500円
入居可能時期 |
敷金/礼金 |
- / 1ヶ月 |
保証金/ |
- / - |
最寄駅 |
|
所在地 |
千葉県松戸市大谷口 |
部屋番号 |
203号室 |
間取り |
1K(洋6) |
専有面積 |
21.42㎡ |
築年数 |
新築 |
階数 |
2階部分(地上3階建) |
方位・位置 |
南西 / 角部屋 |
物件種別 |
賃貸アパート |
構造 |
木造 |
駐車場 |
- |
小学校学区 |
殿平賀小学校 |
中学校学区 |
小金中学校 |
他の空き部屋 |
102号室 202号室 303号室 |
- 学区データについて
- ※学区データは必ずしも正確とは限りません。詳細に関しては最寄店舗または各自治体の教育委員会に必ずご確認ください。
KEIAI RESIDENCE新松戸Ⅱ 203号室の特徴
契約条件
敷金が無料なため、初期費用が比較的安くなる傾向にあります。
セキュリティ
この物件の建物には、オートロックや宅配ボックスが設置されており、来客時には居室内のテレビモニターにて訪問者の顔を確認することができます。
室内設備
システムキッチンには、2つ以上のガスコンロが備え付けられています。 トイレは、温水洗浄便座機能付きになります。 女性に嬉しい設備の独立した洗面化粧台があります。 洗濯に便利な設備として、室内洗濯機置場があります。浴室乾燥機も設置されているので、梅雨時の生乾き臭も比較的防ぐことができます。
居室状況
居室には、ロフトが設置されており大規模な収納スペースやセパレートされた寝室として活用できます。 エアコンが設置されています。 インターネットも無料で入居後すぐ生活が始められます。 収納スペースとして、基本的な居室にクローゼットを設置、玄関にはシューズボックスがあります。
建物設備共用部分
居室外の専有スペースとして、洗濯物を干すなどの用途として利用できるバルコニーがあります。 建物の共用スペースに、急な外出や不在がちのご家庭の荷物受け取りに便利な宅配ボックスが設置されています。
周辺施設
この物件の学区は、殿平賀小学校区・小金中学校区です。
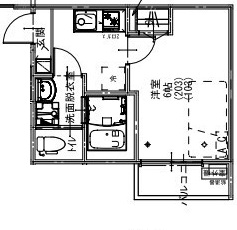
KEIAI RESIDENCE新松戸Ⅱ 203号室の間取り
間取り:1K
間取詳細:1K(洋6)
専有面積:21.42㎡
方位:南西
部屋位置:角部屋
KEIAI RESIDENCE新松戸Ⅱ 203号室の設備
キッチン
システムキッチン
ガスコンロ
ガスコンロ二口以上
バス・トイレ
バス・トイレ別
浴室乾燥機
温水洗浄便座
独立洗面台
玄関
TVモニタ付インターホン
オートロック
宅配ボックス
収納
クローゼット
シューズボックス
バルコニー
バルコニー
ルーフバルコニー
室内設備
エアコン
室内洗濯機置場
ロフト付
位置・立地
2階以上
角部屋
インフラ
インターネット可
CATV
都市ガス
ライフステージ
一人暮らしに人気の設備
カップルに人気の設備
家族に人気の設備
夫婦に人気の設備
三世代で人気の設備
こだわり
外で子どもと遊びたい
雨の日でも洗濯したい
趣味
オークション・通販が好き
ガーデニングが好き
お得な条件
インターネット無料
KEIAI RESIDENCE新松戸Ⅱ 203号室の賃貸契約情報
毎月支払う |
家賃6.8万円/月共益費3,500円/月 |
|---|---|
初期費用 |
敷金-礼金1ヶ月 (6.8万円)保証金-敷引き償却金- |
更新料 |
- |
鍵交換費用 |
27,500円 |
室内清掃費用 |
55,000円 |
事務手数料 |
16,500円 |
駐車場料金 |
- |
損保・ |
借家賠付きの火災保険にご加入いただきます。 |
保証会社 |
加入要 保証会社利用料:初回保証料:家賃総額50% 月額保証料:900円/月 |
契約期間 |
2年 |
入居可能日 |
2026年02月 |
フリーレント期間 |
- |
取引形態 |
一般媒介 |
備考 |
短期解約違約金(半年以内は賃料2か月、1年未満は賃料1ヶ月) |
KEIAI RESIDENCE新松戸Ⅱ 203号室の建物情報
建物名称 |
KEIAI RESIDENCE新松戸Ⅱ |
|---|---|
最寄駅 |
|
所在地 |
千葉県松戸市大谷口 |
階層 |
2階部分(地上3階建) |
構造 |
木造 |
築年数 |
新築 |
駐車場 |
- |
小学校学区 |
殿平賀小学校 |
中学校学区 |
小金中学校 |
- 学区データについて
- ※学区データは必ずしも正確とは限りません。詳細に関しては最寄店舗または各自治体の教育委員会に必ずご確認ください。
無料この物件に問い合わせ
- KEIAI RESIDENCE新松戸Ⅱ 203号室

-
6.8万円
(共益費
3,500円)
- 敷
- -
- 礼
- 1ヶ月
- 保
- -
- 償
- -
KEIAI RESIDENCE新松戸Ⅱ 203号室の物件のお問い合わせ先・取り扱い店舗
ハウスコム 南流山店
- アクセス
-
武蔵野線「南流山駅」徒歩1分
- 住所
- 〒270-0163 千葉県流山市南流山2丁目2−2 クレスト・ソナ 1階
- 営業時間
- 10:00~18:00
- 定休日
- 水曜日
- 営業エリア
- 流山市、野田市、柏市、松戸市、三郷市、八潮市、吉川市
- 取引態様
- 賃貸仲介業











