ライオンズマンション南市川 827号室(8階/1SLDK)の賃貸物件(賃貸マンション)
千葉県市川市にあるライオンズマンション南市川 827号室はバス・トイレ別、独立洗面台、TVモニタ付インターホン、エアコン、2階以上などが特徴です。最寄り駅の東京メトロ 東西線南行徳駅から徒歩10分です。ライオンズマンション南市川 827号室の詳細はハウスコム 事業戦略室までお気軽にお問い合わせください!
情報更新日:
次回更新予定日:
※次回更新予定日について:お店側では順次空室確認を行っていますが、次回更新予定日までに空室確認が行えない場合には、この物件情報は自動的に削除されます。
ライオンズマンション南市川 827号室の賃貸物件部屋概要
家賃 |
16.2万円
初期費用を |
|---|---|
共益費 |
8,000円
入居可能時期 |
敷金/礼金 |
2ヶ月 / 1ヶ月 |
保証金/ |
- / - |
最寄駅 |
|
所在地 |
千葉県市川市福栄 |
部屋番号 |
827号室 |
間取り |
1SLDK(LDK16.4・他4.5・他6・和6) |
専有面積 |
74.80㎡ |
築年数 |
1986年6月(築40年) |
階数 |
8階部分(地上14階建) |
方位・位置 |
南東 / その他 |
物件種別 |
賃貸マンション |
構造 |
SRC |
駐車場 |
無 |
小学校学区 |
福栄小学校 |
中学校学区 |
福栄中学校 |
他の空き部屋 |
1113号室 |
- 学区データについて
- ※学区データは必ずしも正確とは限りません。詳細に関しては最寄店舗または各自治体の教育委員会に必ずご確認ください。
ライオンズマンション南市川 827号室の特徴
-
一人暮らしに人気の設備

-
カップルに人気の設備

-
家族に人気の設備

-
夫婦に人気の設備

-
三世代で人気の設備

-
外で子どもと遊びたい

-
身だしなみに気をつかいたい

-
雨の日でも洗濯したい

-
洋室で暮らしたい

-
ガーデニングが好き

セキュリティ
来客時には居室内のテレビモニターにて訪問者の顔を確認することができます。
室内設備
システムキッチンには、ガスコンロが備え付けられています。 お風呂とトイレは別です。お風呂には、追い焚き機能が備わっています。 トイレは、温水洗浄便座機能付きになります。 女性に嬉しい設備の独立した洗面化粧台があります。 洗濯に便利な設備として、室内洗濯機置場があります。
居室状況
居室には、和室の居室もあり、子育てやリラックススペースとしての利用もできます。 お部屋の床は、フローリングとなっており、エアコンが設置されています。 照明器具が備え付けられており、入居後すぐ生活が始められます。
建物設備共用部分
居室外の専有スペースとして、洗濯物を干すなどの用途として利用できるバルコニーがあります。 建物の共用スペースに、日々の出入に便利なエレベーターが設置されています。
周辺施設
この物件の学区は、福栄小学校区・福栄中学校区です。
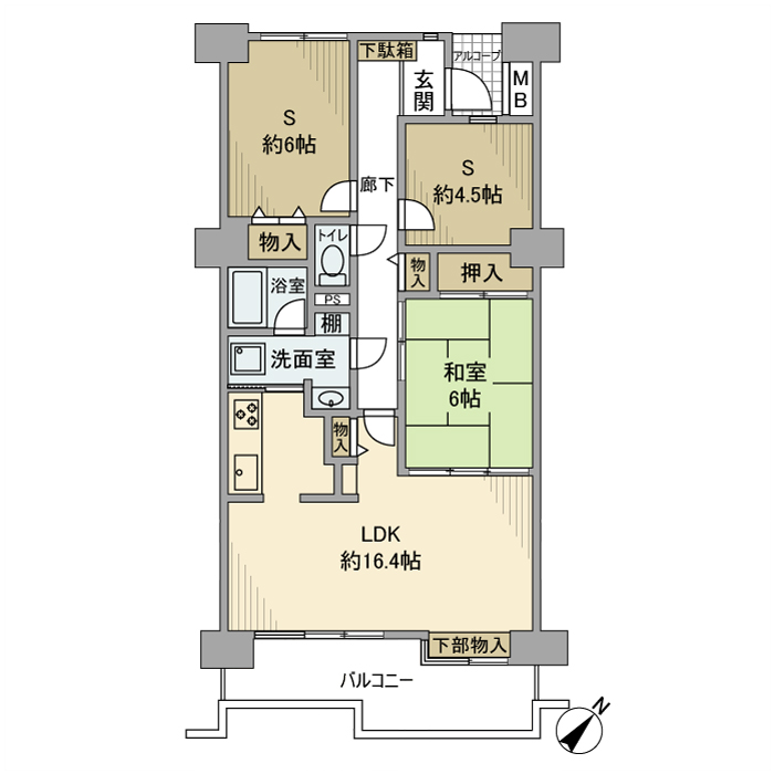
ライオンズマンション南市川 827号室の間取り
間取り:1SLDK
間取詳細:1SLDK(LDK16.4・他4.5・他6・和6)
専有面積:74.80㎡
方位:南東
部屋位置:その他
ライオンズマンション南市川 827号室の設備
キッチン
システムキッチン
ガスコンロ
バス・トイレ
バス・トイレ別
追い焚き
温水洗浄便座
独立洗面台
玄関
TVモニタ付インターホン
バルコニー
バルコニー
ルーフバルコニー
室内設備
エアコン
フローリング
室内洗濯機置場
照明器具付
和室あり
位置・立地
2階以上
インフラ
CATV
都市ガス
建物設備
エレベーター
分譲賃貸
ライフステージ
一人暮らしに人気の設備
カップルに人気の設備
家族に人気の設備
夫婦に人気の設備
三世代で人気の設備
こだわり
外で子どもと遊びたい
身だしなみに気をつかいたい
雨の日でも洗濯したい
洋室で暮らしたい
趣味
ガーデニングが好き
ライオンズマンション南市川 827号室の賃貸契約情報
毎月支払う |
家賃16.2万円/月共益費8,000円/月 |
|---|---|
初期費用 |
敷金2ヶ月 (32.4万円)礼金1ヶ月 (16.2万円)保証金-敷引き償却金- |
更新料 |
162,000円 |
鍵交換費用 |
- |
室内清掃費用 |
- |
駐車場登録料 1台(利用時のみ) |
11,000円 |
除菌施工料(契約時のみ) |
19,800円 |
駐車場料金 |
無 |
損保・ |
借家賠付きの火災保険にご加入いただきます。 |
保証会社 |
加入要 保証会社利用料:保証会社 要:初回 賃料総額100%+月額 賃料総額2%(最低1,000円) |
契約期間 |
2年 |
入居可能日 |
2026年04月上旬 |
フリーレント期間 |
- |
取引形態 |
一般媒介 |
備考 |
- |
ライオンズマンション南市川 827号室の建物情報
建物名称 |
ライオンズマンション南市川 |
|---|---|
最寄駅 |
|
所在地 |
千葉県市川市福栄 |
階層 |
8階部分(地上14階建) |
構造 |
SRC |
築年数 |
1986年6月(築40年) |
駐車場 |
無 |
小学校学区 |
福栄小学校 |
中学校学区 |
福栄中学校 |
- 学区データについて
- ※学区データは必ずしも正確とは限りません。詳細に関しては最寄店舗または各自治体の教育委員会に必ずご確認ください。
無料この物件に問い合わせ
- ライオンズマンション南市川 827号室

-
16.2万円
(共益費
8,000円)
- 敷
- 2ヶ月
- 礼
- 1ヶ月
- 保
- -
- 償
- -
ライオンズマンション南市川 827号室の物件のお問い合わせ先・取り扱い店舗
ハウスコム 事業戦略室
- アクセス
-
山手線「品川駅」港南口徒歩3分
- 住所
- 〒108-0075 東京都港区港南2-16-1 品川イーストワンタワー9階
- 営業時間
- 10:00~17:00
- 定休日
- 土曜日・日曜日(祝日定休)
- 営業エリア
- 北区、荒川区、豊島区、文京区、台東区、中央区、新宿区、千代田区、渋谷区、港区、品川区
- 取引態様
- 賃貸仲介業



