エステムコート京都紫野 104号室(1階/3LDK)の賃貸物件(賃貸マンション)
京都府京都市北区にあるエステムコート京都紫野 104号室は浴室乾燥機、温水洗浄便座、フローリング、BS、CSなどが特徴です。最寄り駅の京都市営地下鉄 烏丸線北大路駅から徒歩25分です。エステムコート京都紫野 104号室の詳細はクラスモ FC四条烏丸店までお気軽にお問い合わせください!
情報更新日:
次回更新予定日:
※次回更新予定日について:お店側では順次空室確認を行っていますが、次回更新予定日までに空室確認が行えない場合には、この物件情報は自動的に削除されます。
エステムコート京都紫野 104号室の賃貸物件部屋概要
家賃 |
16万円
初期費用を |
|---|---|
共益費 |
19,350円
入居可能時期 |
敷金/礼金 |
1ヶ月 / 1ヶ月 |
保証金/ |
- / - |
最寄駅 |
|
所在地 |
京都府京都市北区紫野上御輿町 |
部屋番号 |
104号室 |
間取り |
3LDK(LDK16.5・洋6・洋4.5・洋4.5) |
専有面積 |
73.62㎡ |
築年数 |
2021年7月(築5年) |
階数 |
1階部分(地上5階建) |
方位・位置 |
東 / 角部屋 |
物件種別 |
賃貸マンション |
構造 |
RC |
駐車場 |
16,500円 |
小学校学区 |
紫野小学校 |
中学校学区 |
嘉楽中学校 |
他の空き部屋 |
306号室 402号室 |
- 学区データについて
- ※学区データは必ずしも正確とは限りません。詳細に関しては最寄店舗または各自治体の教育委員会に必ずご確認ください。
エステムコート京都紫野 104号室の特徴
-
一人暮らしに人気の設備

-
カップルに人気の設備

-
家族に人気の設備

-
夫婦に人気の設備

-
三世代で人気の設備

-
キッチン重視

-
タイパ重視

-
身だしなみに気をつかいたい

-
雨の日でも洗濯したい

-
洋室で暮らしたい

-
自炊が多めなあなたに

-
料理が好き

-
服やおしゃれが好き

-
お風呂が大好き

-
推し活グッズを飾りたい

契約条件
この物件は、2人入居もご契約できます。 ペットの飼育もご相談ください。 また、ご契約時に保証人は不要です。 お支払いは、初期費用がクレジットカードにて決済できます。
セキュリティ
この物件の建物には、オートロックや防犯カメラや宅配ボックスが設置されており、来客時には居室内のテレビモニターにて訪問者の顔を確認することができます。
室内設備
システムキッチンには、ガスコンロが設置されており、蛇口に浄水器、キッチン設備として食洗機が備え付けられています。 お風呂とトイレは別です。お風呂には、追い焚き機能が備わっています。 トイレは、温水洗浄便座機能付きになります。 女性に嬉しい設備のシャワーの付いている洗面化粧台があります。 洗濯に便利な設備として、室内洗濯機置場があります。浴室乾燥機も設置されているので、梅雨時の生乾き臭も比較的防ぐことができます。
居室状況
お部屋の床は、全居室フローリングとなっており、一部床下暖房が設置されています。 収納スペースとして、基本的な居室にクローゼットを設置、通常よりも収納力の高いウォークインクローゼット、玄関にはシューズボックスがあります。
建物設備共用部分
居室外の専有スペースとして、洗濯物を干すなどの用途として利用できるバルコニーがあります。 建物の共用スペースに、日々の出入に便利なエレベーターや、いざという時の防犯カメラや、急な外出や不在がちのご家庭の荷物受け取りに便利な宅配ボックスや、居室内を常に清潔に保てる24時間利用可能なゴミ捨て置き場が設置されています。 平面駐車場があります。駐輪場、バイク置き場が利用できます。
周辺施設
この物件の学区は、紫野小学校区・嘉楽中学校区です。近くには、徒歩13分(963m)でドラッグストアがあります。
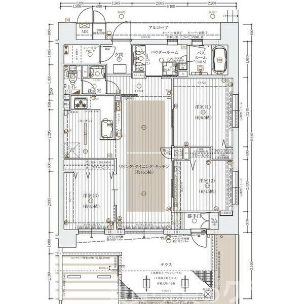
エステムコート京都紫野 104号室の間取り
間取り:3LDK
間取詳細:3LDK(LDK16.5・洋6・洋4.5・洋4.5)
専有面積:73.62㎡
方位:東
部屋位置:角部屋
エステムコート京都紫野 104号室の設備
キッチン
システムキッチン
カウンターキッチン
ガスコンロ
浄水器
食洗機
バス・トイレ
バス・トイレ別
追い焚き
浴室乾燥機
温水洗浄便座
独立洗面台
シャワー付洗面化粧台
玄関
TVモニタ付インターホン
オートロック
宅配ボックス
収納
クローゼット
ウォークインクローゼット
シューズボックス
バルコニー
バルコニー
室内設備
フローリング
全居室フローリング
床下暖房
室内洗濯機置場
位置・立地
1階
角部屋
インフラ
インターネット可
BS
CS
都市ガス
建物設備
エレベーター
防犯カメラ
24時間ゴミ出しOK
24時間換気システム
駐車場
平面駐車場
駐輪場
バイク置き場
分譲賃貸
入居条件
ペット可・相談
2人入居可
保証人不要
即入居可
ライフステージ
一人暮らしに人気の設備
カップルに人気の設備
家族に人気の設備
夫婦に人気の設備
三世代で人気の設備
こだわり
キッチン重視
タイパ重視
身だしなみに気をつかいたい
雨の日でも洗濯したい
洋室で暮らしたい
自炊が多めなあなたに
趣味
料理が好き
服やおしゃれが好き
お風呂が大好き
推し活グッズを飾りたい
お得な条件
初期費用カード決済可
エステムコート京都紫野 104号室の賃貸契約情報
毎月支払う |
家賃16万円/月共益費19,350円/月 |
|---|---|
初期費用 |
敷金1ヶ月 (16万円)礼金1ヶ月 (16万円)保証金-敷引き償却金- |
更新料 |
- |
鍵交換費用 |
27,500円 |
室内清掃費用 |
44,000円 |
安心クラブ入会金 |
5,500円 |
契約書類代 |
10,000円 |
ペット飼育時消毒費 |
22,000円 |
駐車場料金 |
16,500円 |
損保・ |
借家賠付きの火災保険にご加入いただきます。 |
保証会社 |
加入要 保証会社:エステム保証サービス 保証会社利用料:初回契約時:50%、月額:1.5% |
契約期間 |
1年 |
入居可能日 |
即入居可 |
フリーレント期間 |
- |
取引形態 |
一般媒介 |
備考 |
弊社は来店不要のオンライン内見、オンライン申込みが可能です。各種クレジットカード決済もご利用可能です。 |
エステムコート京都紫野 104号室の建物情報
建物名称 |
エステムコート京都紫野 |
|---|---|
最寄駅 |
|
所在地 |
京都府京都市北区紫野上御輿町 |
階層 |
1階部分(地上5階建) |
構造 |
RC |
築年数 |
2021年7月(築5年) |
駐車場 |
16,500円 |
小学校学区 |
紫野小学校 |
中学校学区 |
嘉楽中学校 |
- 学区データについて
- ※学区データは必ずしも正確とは限りません。詳細に関しては最寄店舗または各自治体の教育委員会に必ずご確認ください。
無料この物件に問い合わせ
- エステムコート京都紫野 104号室

-
16万円
(共益費
19,350円)
- 敷
- 1ヶ月
- 礼
- 1ヶ月
- 保
- -
- 償
- -
エステムコート京都紫野 104号室の物件のお問い合わせ先・取り扱い店舗
クラスモ FC四条烏丸店
- アクセス
-
京都市営地下鉄 烏丸線「四条駅」徒歩3分
阪急京都線「烏丸駅」徒歩3分
京都市営地下鉄 烏丸線「烏丸御池駅」徒歩13分
- 住所
- 〒600-8492 京都府京都市下京区月鉾町47-4 四条廣田ビル1F
- 営業時間
- 10:00~19:00
- 定休日
- なし(年末年始)
- 営業エリア
- 京都市内全域 北区・上京区・中京区・下京区・東山区・右京区 左京区・南区・伏見区・西京区・山科区
- 取引態様
- 賃貸仲介業・FC店





























