カスタリア榴ヶ岡 ***号室(12階/2LDK)の賃貸物件(賃貸マンション)
宮城県仙台市若林区にあるカスタリア榴ヶ岡 ***号室はオートロック、シューズボックス、エアコン、全居室フローリング、エレベーターなどが特徴です。最寄り駅の仙台市交通局東西線連坊駅から徒歩7分です。カスタリア榴ヶ岡 ***号室の詳細はハウスコム FC仙台東口店までお気軽にお問い合わせください!
情報更新日:
次回更新予定日:
※次回更新予定日について:お店側では順次空室確認を行っていますが、次回更新予定日までに空室確認が行えない場合には、この物件情報は自動的に削除されます。
カスタリア榴ヶ岡 ***号室の賃貸物件部屋概要
家賃 |
14万円
初期費用を |
|---|---|
共益費 |
7,000円
入居可能時期 |
敷金/礼金 |
1ヶ月 / - |
保証金/ |
- / - |
最寄駅 |
|
所在地 |
宮城県仙台市若林区新寺 |
部屋番号 |
***号室 |
間取り |
2LDK(洋7.3・洋5.7) |
専有面積 |
59.39㎡ |
築年数 |
2009年1月(築17年) |
階数 |
12階部分(地上12階建) |
方位・位置 |
東 / その他 |
物件種別 |
賃貸マンション |
構造 |
RC |
駐車場 |
11,000円 |
小学校学区 |
連坊小路小学校 |
中学校学区 |
東華中学校 |
他の空き部屋 |
ー |
- 学区データについて
- ※学区データは必ずしも正確とは限りません。詳細に関しては最寄店舗または各自治体の教育委員会に必ずご確認ください。
カスタリア榴ヶ岡 ***号室の特徴
契約条件
ペットの飼育もご相談ください。 礼金が無料なため、初期費用が比較的安くなる傾向にあります。 お支払いは、初期費用がクレジットカードにて決済できます。
セキュリティ
この物件の建物には、オートロックや防犯カメラや宅配ボックスが設置されており、来客時には居室内のテレビモニターにて訪問者の顔を確認することができます。
室内設備
システムキッチンが備え付けられています。 お風呂とトイレは別です。お風呂には、追い焚き機能が備わっています。 トイレは、温水洗浄便座機能付きになります。 女性に嬉しい設備のシャワーの付いている洗面化粧台があります。 洗濯に便利な設備として、室内洗濯機置場があります。
居室状況
お部屋の床は、全居室フローリングとなっており、エアコンが設置されています。 インターネットも無料で入居後すぐ生活が始められます。 収納スペースとして、基本的な居室にクローゼットを設置、玄関にはシューズボックスがあります。
建物設備共用部分
居室外の専有スペースとして、洗濯物を干すなどの用途として利用できるバルコニーがあります。 建物の共用スペースに、日々の出入に便利なエレベーターや、いざという時の防犯カメラや、急な外出や不在がちのご家庭の荷物受け取りに便利な宅配ボックスが設置されています。 駐輪場が利用できます。
周辺施設
この物件の学区は、連坊小路小学校区・東華中学校区です。近くには、徒歩11分(821m)でドラッグストアがあります。
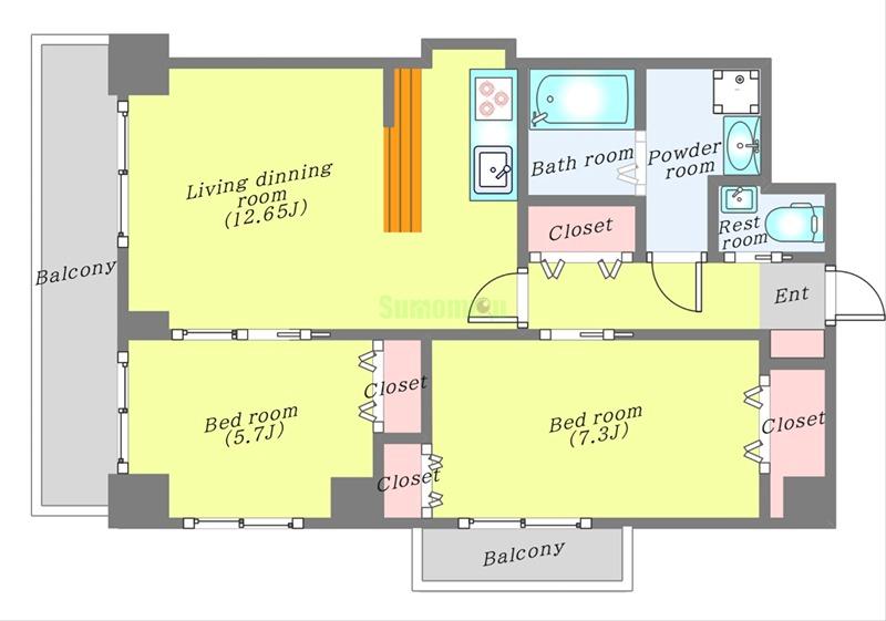
カスタリア榴ヶ岡 ***号室の間取り
間取り:2LDK
間取詳細:2LDK(洋7.3・洋5.7)
専有面積:59.39㎡
方位:東
部屋位置:その他
カスタリア榴ヶ岡 ***号室の設備
キッチン
システムキッチン
バス・トイレ
バス・トイレ別
追い焚き
温水洗浄便座
独立洗面台
シャワー付洗面化粧台
玄関
TVモニタ付インターホン
オートロック
宅配ボックス
収納
クローゼット
シューズボックス
バルコニー
バルコニー
室内設備
エアコン
フローリング
全居室フローリング
室内洗濯機置場
位置・立地
2階以上
最上階
インフラ
インターネット可
都市ガス
建物設備
エレベーター
防犯カメラ
24時間換気システム
駐輪場
入居条件
ペット可・相談
即入居可
ライフステージ
一人暮らしに人気の設備
カップルに人気の設備
家族に人気の設備
夫婦に人気の設備
三世代で人気の設備
こだわり
セキュリティ対策重視
雨の日でも洗濯したい
洋室で暮らしたい
趣味
オークション・通販が好き
お得な条件
インターネット無料
初期費用カード決済可
カスタリア榴ヶ岡 ***号室の賃貸契約情報
毎月支払う |
家賃14万円/月共益費7,000円/月 |
|---|---|
初期費用 |
敷金1ヶ月 (14万円)礼金-保証金-敷引き償却金- |
更新料 |
- |
鍵交換費用 |
- |
室内清掃費用 |
- |
駐車場料金 |
11,000円 |
損保・ |
借家賠付きの火災保険にご加入いただきます。 |
保証会社 |
加入要 保証会社:その他 保証会社利用料:初回契約時:40%、更新時:10,000円 |
契約期間 |
2年 |
入居可能日 |
即入居可 |
フリーレント期間 |
- |
取引形態 |
一般媒介 |
備考 |
- |
カスタリア榴ヶ岡 ***号室の建物情報
建物名称 |
カスタリア榴ヶ岡 |
|---|---|
最寄駅 |
|
所在地 |
宮城県仙台市若林区新寺 |
階層 |
12階部分(地上12階建) |
構造 |
RC |
築年数 |
2009年1月(築17年) |
駐車場 |
11,000円 |
小学校学区 |
連坊小路小学校 |
中学校学区 |
東華中学校 |
- 学区データについて
- ※学区データは必ずしも正確とは限りません。詳細に関しては最寄店舗または各自治体の教育委員会に必ずご確認ください。
無料この物件に問い合わせ
- カスタリア榴ヶ岡 ***号室

-
14万円
(共益費
7,000円)
- 敷
- 1ヶ月
- 礼
- -
- 保
- -
- 償
- -
カスタリア榴ヶ岡 ***号室の物件のお問い合わせ先・取り扱い店舗
ハウスコム FC仙台東口店
- アクセス
-
仙石線「榴ケ岡駅」徒歩4分
東北本線「仙台駅」徒歩6分
仙台市交通局東西線「宮城野通駅」徒歩5分
- 住所
- 〒983-0852 宮城県仙台市宮城野区榴岡4丁目12-2 オダシマビル301
- 営業時間
- 10:00~18:00
- 定休日
- 水曜日
- 営業エリア
- 宮城県仙台市全域・富谷市・名取市・多賀城市
- 取引態様
- 賃貸仲介業・FC店

































