プレサンス名古屋駅前アクシス 401号室(4階/1R)の賃貸物件(賃貸マンション)
愛知県名古屋市中村区にあるプレサンス名古屋駅前アクシス 401号室は温水洗浄便座、TVモニタ付インターホン、オートロック、宅配ボックス、バルコニーなどが特徴です。最寄り駅の名古屋市営地下鉄 桜通線国際センター駅から徒歩5分です。プレサンス名古屋駅前アクシス 401号室の詳細はハウスコム 中村公園店までお気軽にお問い合わせください!
情報更新日:
次回更新予定日:
※次回更新予定日について:お店側では順次空室確認を行っていますが、次回更新予定日までに空室確認が行えない場合には、この物件情報は自動的に削除されます。
プレサンス名古屋駅前アクシス 401号室の賃貸物件部屋概要
家賃 |
5.4万円
初期費用を |
|---|---|
共益費 |
10,000円
入居可能時期 |
敷金/礼金 |
- / - |
保証金/ |
- / - |
最寄駅 |
|
所在地 |
愛知県名古屋市中村区名駅南 |
部屋番号 |
401号室 |
間取り |
1R |
専有面積 |
24.00㎡ |
築年数 |
2006年12月(築20年) |
階数 |
4階部分(地上13階建) |
方位・位置 |
西 / その他 |
物件種別 |
賃貸マンション |
構造 |
RC |
駐車場 |
- |
小学校学区 |
笹島小学校 |
中学校学区 |
笹島中学校 |
他の空き部屋 |
207号室 607号室 |
- 学区データについて
- ※学区データは必ずしも正確とは限りません。詳細に関しては最寄店舗または各自治体の教育委員会に必ずご確認ください。
プレサンス名古屋駅前アクシス 401号室の特徴
契約条件
この物件は、2人入居もご契約できます。 敷金と礼金が無料なため、初期費用が比較的安くなる傾向にあります。
セキュリティ
この物件の建物には、オートロックや防犯カメラや宅配ボックスが設置されており、来客時には居室内のテレビモニターにて訪問者の顔を確認することができます。
室内設備
システムキッチンには、ガスコンロが備え付けられています。 トイレは、温水洗浄便座機能付きになります。 洗濯に便利な設備として、室内洗濯機置場があります。浴室乾燥機も設置されているので、梅雨時の生乾き臭も比較的防ぐことができます。
居室状況
エアコンが設置されています。 収納スペースとして、玄関にはシューズボックスがあります。
建物設備共用部分
居室外の専有スペースとして、洗濯物を干すなどの用途として利用できるバルコニーがあります。 建物の共用スペースに、日々の出入に便利なエレベーターや、いざという時の防犯カメラや、急な外出や不在がちのご家庭の荷物受け取りに便利な宅配ボックスが設置されています。
周辺施設
この物件の学区は、笹島小学校区・笹島中学校区です。
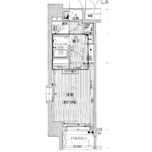
プレサンス名古屋駅前アクシス 401号室の間取り
間取り:1R
間取詳細:1R
専有面積:24.00㎡
方位:西
部屋位置:その他
プレサンス名古屋駅前アクシス 401号室の設備
キッチン
システムキッチン
ガスコンロ
バス・トイレ
バス・トイレ別
浴室乾燥機
温水洗浄便座
玄関
TVモニタ付インターホン
オートロック
宅配ボックス
収納
シューズボックス
バルコニー
バルコニー
ルーフバルコニー
室内設備
エアコン
室内洗濯機置場
位置・立地
2階以上
インフラ
都市ガス
建物設備
エレベーター
防犯カメラ
分譲賃貸
入居条件
2人入居可
ライフステージ
一人暮らしに人気の設備
カップルに人気の設備
家族に人気の設備
夫婦に人気の設備
三世代で人気の設備
こだわり
セキュリティ対策重視
外で子どもと遊びたい
雨の日でも洗濯したい
趣味
ガーデニングが好き
プレサンス名古屋駅前アクシス 401号室の賃貸契約情報
毎月支払う |
家賃5.4万円/月共益費10,000円/月 |
|---|---|
初期費用 |
敷金-礼金-保証金-敷引き償却金- |
更新料 |
- |
鍵交換費用 |
44,000円 |
室内清掃費用 |
- |
初期費用:契約事務手数料 |
11,000円 |
ランニング費用:更新事務手数料(更新時)、24時間駆けつけサービス(月額) |
11,990円 |
その他費用:エアコンクリーニング(退去時)、退去時清掃費(退去時) |
55,000円 |
駐車場料金 |
- |
損保・ |
借家賠付きの火災保険にご加入いただきます。 |
保証会社 |
加入要 保証会社:エルズサポート 保証会社利用料:初回保証料30%~ 年10,000円 |
契約期間 |
2年 |
入居可能日 |
2026年02月下旬 |
フリーレント期間 |
- |
取引形態 |
一般媒介 |
備考 |
- |
プレサンス名古屋駅前アクシス 401号室の建物情報
建物名称 |
プレサンス名古屋駅前アクシス |
|---|---|
最寄駅 |
|
所在地 |
愛知県名古屋市中村区名駅南 |
階層 |
4階部分(地上13階建) |
構造 |
RC |
築年数 |
2006年12月(築20年) |
駐車場 |
- |
小学校学区 |
笹島小学校 |
中学校学区 |
笹島中学校 |
- 学区データについて
- ※学区データは必ずしも正確とは限りません。詳細に関しては最寄店舗または各自治体の教育委員会に必ずご確認ください。
無料この物件に問い合わせ
- プレサンス名古屋駅前アクシス 401号室

-
5.4万円
(共益費
10,000円)
- 敷
- -
- 礼
- -
- 保
- -
- 償
- -
プレサンス名古屋駅前アクシス 401号室の物件のお問い合わせ先・取り扱い店舗
ハウスコム 中村公園店
- アクセス
-
名古屋市営地下鉄 東山線「中村公園駅」徒歩1分
- 住所
- 〒453-0811 愛知県名古屋市中村区太閤通9丁目9 横田ビル 1階
- 営業時間
- 10:00~18:00
- 定休日
- なし(年末年始休業12月25日~1月3日)
- 営業エリア
- 中村区 中川区 西区 中区 港区 海部郡 あま市 清須市
- 取引態様
- 賃貸仲介業










