ジオエント四条大宮 ***号室(6階/2LDK)の賃貸物件(賃貸マンション)
京都府京都市中京区にあるジオエント四条大宮 ***号室はバス・トイレ別、オートロック、エアコン、2階以上、防犯カメラなどが特徴です。最寄り駅の阪急京都線大宮駅から徒歩6分です。ジオエント四条大宮 ***号室の詳細はハウスコム 太秦天神川店までお気軽にお問い合わせください!
情報更新日:
次回更新予定日:
※次回更新予定日について:お店側では順次空室確認を行っていますが、次回更新予定日までに空室確認が行えない場合には、この物件情報は自動的に削除されます。
ジオエント四条大宮 ***号室の賃貸物件部屋概要
家賃 |
17.6万円
初期費用を |
|---|---|
共益費 |
10,000円
入居可能時期 |
敷金/礼金 |
- / - |
保証金/ |
- / - |
最寄駅 |
|
所在地 |
京都府京都市中京区壬生坊城町 |
部屋番号 |
***号室 |
間取り |
2LDK(LDK11.4・洋5・洋4.4) |
専有面積 |
50.72㎡ |
築年数 |
新築 |
階数 |
6階部分(地上7階建) |
方位・位置 |
東 / その他 |
物件種別 |
賃貸マンション |
構造 |
RC |
駐車場 |
- |
小学校学区 |
朱雀第一小学校 |
中学校学区 |
中京中学校 |
他の空き部屋 |
***号室 ***号室 ***号室 ***号室 ***号室 ***号室 ***号室 ***号室 ***号室 ***号室 ***号室 ***号室 ***号室 ***号室 ***号室 ***号室 ***号室 ***号室 ***号室 ***号室 |
- 学区データについて
- ※学区データは必ずしも正確とは限りません。詳細に関しては最寄店舗または各自治体の教育委員会に必ずご確認ください。
ジオエント四条大宮 ***号室の特徴
-
一人暮らしに人気の設備

-
カップルに人気の設備

-
家族に人気の設備

-
夫婦に人気の設備

-
三世代で人気の設備

-
セキュリティ対策重視

-
外で子どもと遊びたい

-
雨の日でも洗濯したい

-
洋室で暮らしたい

-
オークション・通販が好き

-
ガーデニングが好き

契約条件
この物件は、2人入居もご契約できます。 敷金と礼金が無料なため、初期費用が比較的安くなる傾向にあります。
セキュリティ
この物件の建物には、オートロックや防犯カメラや宅配ボックスが設置されており、来客時には居室内のテレビモニターにて訪問者の顔を確認することができます。
室内設備
システムキッチンには、2つ以上のガスコンロが備え付けられています。 トイレは、温水洗浄便座機能付きになります。 女性に嬉しい設備のシャワーの付いている洗面化粧台があります。 洗濯に便利な設備として、室内洗濯機置場があります。浴室乾燥機も設置されているので、梅雨時の生乾き臭も比較的防ぐことができます。
居室状況
お部屋の床は、フローリングとなっており、エアコンが設置されています。 インターネットも無料で入居後すぐ生活が始められます。 収納スペースとして、基本的な居室にクローゼットを設置、玄関にはシューズボックスがあります。
建物設備共用部分
居室外の専有スペースとして、洗濯物を干すなどの用途として利用できるバルコニーがあります。 建物の共用スペースに、日々の出入に便利なエレベーターや、いざという時の防犯カメラや、急な外出や不在がちのご家庭の荷物受け取りに便利な宅配ボックスが設置されています。 駐輪場が利用できます。
周辺施設
この物件の学区は、朱雀第一小学校区・中京中学校区です。
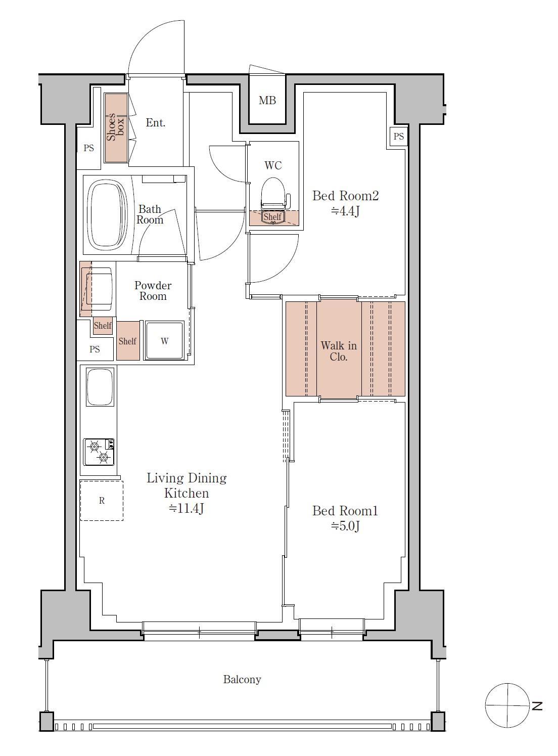
ジオエント四条大宮 ***号室の間取り
間取り:2LDK
間取詳細:2LDK(LDK11.4・洋5・洋4.4)
専有面積:50.72㎡
方位:東
部屋位置:その他
ジオエント四条大宮 ***号室の設備
キッチン
システムキッチン
ガスコンロ
ガスコンロ二口以上
バス・トイレ
バス・トイレ別
浴室乾燥機
温水洗浄便座
独立洗面台
シャワー付洗面化粧台
玄関
TVモニタ付インターホン
オートロック
宅配ボックス
収納
クローゼット
シューズボックス
バルコニー
バルコニー
ルーフバルコニー
室内設備
エアコン
フローリング
室内洗濯機置場
位置・立地
2階以上
建物設備
エレベーター
防犯カメラ
駐輪場
入居条件
2人入居可
ライフステージ
一人暮らしに人気の設備
カップルに人気の設備
家族に人気の設備
夫婦に人気の設備
三世代で人気の設備
こだわり
セキュリティ対策重視
外で子どもと遊びたい
雨の日でも洗濯したい
洋室で暮らしたい
趣味
オークション・通販が好き
ガーデニングが好き
お得な条件
インターネット無料
ジオエント四条大宮 ***号室の賃貸契約情報
毎月支払う |
家賃17.6万円/月共益費10,000円/月 |
|---|---|
初期費用 |
敷金-礼金-保証金-敷引き償却金- |
更新料 |
- |
鍵交換費用 |
- |
室内清掃費用 |
- |
駐車場料金 |
- |
損保・ |
借家賠付きの火災保険にご加入いただきます。 |
保証会社 |
加入要 保証会社利用料:初回保証料40%、月額保証料1790円(火災保険込み) |
契約期間 |
2年 |
入居可能日 |
2026年03月上旬 |
フリーレント期間 |
- |
取引形態 |
一般媒介 |
備考 |
自転車置場有:330円税込/月(ラック式)、1100円税込/月(平置)空確認要インターネット無料:UCOM光レジデンス(1G) |
ジオエント四条大宮 ***号室の建物情報
建物名称 |
ジオエント四条大宮 |
|---|---|
最寄駅 |
|
所在地 |
京都府京都市中京区壬生坊城町 |
階層 |
6階部分(地上7階建) |
構造 |
RC |
築年数 |
新築 |
駐車場 |
- |
小学校学区 |
朱雀第一小学校 |
中学校学区 |
中京中学校 |
- 学区データについて
- ※学区データは必ずしも正確とは限りません。詳細に関しては最寄店舗または各自治体の教育委員会に必ずご確認ください。
無料この物件に問い合わせ
- ジオエント四条大宮 ***号室

-
17.6万円
(共益費
10,000円)
- 敷
- -
- 礼
- -
- 保
- -
- 償
- -
ジオエント四条大宮 ***号室の物件のお問い合わせ先・取り扱い店舗
ハウスコム 太秦天神川店
- アクセス
-
京都市営地下鉄 東西線「太秦天神川駅」徒歩1分
嵐電(京福電鉄)嵐山本線「嵐電天神川駅」徒歩1分
- 住所
- 〒616-8104 京都府京都市右京区太秦下刑部町12 サンサ右京 1階
- 営業時間
- 10:00~18:00
- 定休日
- 水曜日(年末年始休み12月25日から1月3日まで)
- 営業エリア
- 右京区、中京区、西京区、北区、上京区、下京区、南区、左京区、東山区
- 取引態様
- 賃貸仲介業










