コンフォリア新大阪宮原Q 0608号室(6階/1LDK)の賃貸物件(賃貸マンション)
大阪府大阪市淀川区にあるコンフォリア新大阪宮原Q 0608号室はTVモニタ付インターホン、シューズインクローゼット、南向き、エレベーター、バイク置き場などが特徴です。最寄り駅の大阪メトロ 御堂筋線東三国駅から徒歩6分です。コンフォリア新大阪宮原Q 0608号室の詳細はミニミニ FC江坂店までお気軽にお問い合わせください!
情報更新日:
次回更新予定日:
※次回更新予定日について:お店側では順次空室確認を行っていますが、次回更新予定日までに空室確認が行えない場合には、この物件情報は自動的に削除されます。
コンフォリア新大阪宮原Q 0608号室の賃貸物件部屋概要
家賃 |
13.6万円
初期費用を |
|---|---|
共益費 |
13,000円
入居可能時期 |
敷金/礼金 |
- / 136,000円 |
保証金/ |
- / - |
最寄駅 |
|
所在地 |
大阪府大阪市淀川区宮原 |
部屋番号 |
0608号室 |
間取り |
1LDK(LDK10.3・洋3.5) |
専有面積 |
34.96㎡ |
築年数 |
新築 |
階数 |
6階部分(地上14階建) |
方位・位置 |
南 / その他 |
物件種別 |
賃貸マンション |
構造 |
RC |
駐車場 |
無 |
小学校学区 |
北中島小学校 |
中学校学区 |
宮原中学校 |
他の空き部屋 |
0508号室 0509号室 ***号室 ***号室 1002号室 1003号室 ***号室 ***号室 1009号室 ***号室 ***号室 ***号室 1208号室 1209号室 ***号室 ***号室 ***号室 1409号室 ***号室 1419号室 ***号室 ***号室 517号室 ***号室 ***号室 ***号室 ***号室 ***号室 920号室 |
- 学区データについて
- ※学区データは必ずしも正確とは限りません。詳細に関しては最寄店舗または各自治体の教育委員会に必ずご確認ください。
コンフォリア新大阪宮原Q 0608号室の特徴
契約条件
敷金が無料なため、初期費用が比較的安くなる傾向にあります。
セキュリティ
この物件の建物には、宅配ボックスが設置されており、来客時には居室内のテレビモニターにて訪問者の顔を確認することができます。
室内設備
トイレは、温水洗浄便座機能付きになります。 洗濯に便利な設備として、室内洗濯機置場があります。浴室乾燥機も設置されているので、梅雨時の生乾き臭も比較的防ぐことができます。
居室状況
お部屋の床は、フローリングとなっており、エアコンが設置されています。 収納スペースとして、通常よりも収納力の高いウォークインクローゼット、玄関にはシューズインクローゼットがあります。
建物設備共用部分
建物の共用スペースに、日々の出入に便利なエレベーターや、急な外出や不在がちのご家庭の荷物受け取りに便利な宅配ボックスが設置されています。 駐輪場、バイク置き場が利用できます。
周辺施設
この物件の学区は、北中島小学校区・宮原中学校区です。
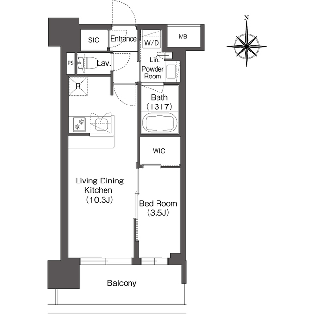
コンフォリア新大阪宮原Q 0608号室の間取り
間取り:1LDK
間取詳細:1LDK(LDK10.3・洋3.5)
専有面積:34.96㎡
方位:南
部屋位置:その他
コンフォリア新大阪宮原Q 0608号室の設備
バス・トイレ
バス・トイレ別
浴室乾燥機
温水洗浄便座
玄関
TVモニタ付インターホン
宅配ボックス
収納
ウォークインクローゼット
シューズインクローゼット
室内設備
エアコン
フローリング
室内洗濯機置場
位置・立地
2階以上
南向き
建物設備
エレベーター
駐輪場
バイク置き場
入居条件
即入居可
ライフステージ
一人暮らしに人気の設備
カップルに人気の設備
家族に人気の設備
夫婦に人気の設備
三世代で人気の設備
こだわり
雨の日でも洗濯したい
洋室で暮らしたい
趣味
服やおしゃれが好き
靴やスニーカーが好き
コンフォリア新大阪宮原Q 0608号室の賃貸契約情報
毎月支払う |
家賃13.6万円/月共益費13,000円/月 |
|---|---|
初期費用 |
敷金-礼金136,000円保証金-敷引き償却金- |
更新料 |
30,000円 |
鍵交換費用 |
- |
室内清掃費用 |
- |
駐輪場ステッカー |
440円 |
鍵交換代 |
22,000円 |
駐車場料金 |
無 |
損保・ |
借家賠付きの火災保険にご加入いただきます。 |
保証会社 |
加入要 保証会社:エポスカード 保証会社利用料:保証料:賃料等の50%(最低2万)、月額保証料:賃料等の1%(更新料無) |
契約期間 |
2年 |
入居可能日 |
即入居可 |
フリーレント期間 |
- |
取引形態 |
一般媒介 |
備考 |
清掃費:38500円(退去時請求).エアコン清掃費:8250円(退去時請求) |
コンフォリア新大阪宮原Q 0608号室の建物情報
建物名称 |
コンフォリア新大阪宮原Q |
|---|---|
最寄駅 |
|
所在地 |
大阪府大阪市淀川区宮原 |
階層 |
6階部分(地上14階建) |
構造 |
RC |
築年数 |
新築 |
駐車場 |
無 |
小学校学区 |
北中島小学校 |
中学校学区 |
宮原中学校 |
- 学区データについて
- ※学区データは必ずしも正確とは限りません。詳細に関しては最寄店舗または各自治体の教育委員会に必ずご確認ください。
無料この物件に問い合わせ
- コンフォリア新大阪宮原Q 0608号室

-
13.6万円
(共益費
13,000円)
- 敷
- -
- 礼
- 136,000円
- 保
- -
- 償
- -
コンフォリア新大阪宮原Q 0608号室の物件のお問い合わせ先・取り扱い店舗
ミニミニ FC江坂店
- アクセス
-
大阪メトロ 御堂筋線「江坂駅」徒歩1分
- 住所
- 〒564-0063 大阪府吹田市江坂町1-23-34 第二梓ビル2F
- 営業時間
- 10:00~18:00
- 定休日
- なし
- 営業エリア
- 大阪府下全域
- 取引態様
- 賃貸仲介業














