レオネクストインフレンド 102号室(1階/1K)の賃貸物件(賃貸アパート)
栃木県真岡市にあるレオネクストインフレンド 102号室は電気コンロ、温水洗浄便座、TVモニタ付インターホン、インターネット可、オンライン相談可などが特徴です。最寄り駅の真岡鉄道真岡駅から徒歩26分です。レオネクストインフレンド 102号室の詳細はハウスコム 宇都宮店までお気軽にお問い合わせください!
情報更新日:
次回更新予定日:
※次回更新予定日について:お店側では順次空室確認を行っていますが、次回更新予定日までに空室確認が行えない場合には、この物件情報は自動的に削除されます。
レオネクストインフレンド 102号室の賃貸物件部屋概要
家賃 |
5.7万円
初期費用を |
|---|---|
共益費 |
4,000円
入居可能時期 |
敷金/礼金 |
- / 57,000円 |
保証金/ |
- / - |
最寄駅 |
|
所在地 |
栃木県真岡市下高間木 |
部屋番号 |
102号室 |
間取り |
1K |
専有面積 |
31.21㎡ |
築年数 |
2016年1月(築10年) |
階数 |
1階部分(地上2階建) |
方位・位置 |
ー / その他 |
物件種別 |
賃貸アパート |
構造 |
木造 |
駐車場 |
無 |
小学校学区 |
真岡西小学校 |
中学校学区 |
真岡中学校 |
他の空き部屋 |
103号室 |
- 学区データについて
- ※学区データは必ずしも正確とは限りません。詳細に関しては最寄店舗または各自治体の教育委員会に必ずご確認ください。
レオネクストインフレンド 102号室の特徴
-
一人暮らしに人気の設備

-
カップルに人気の設備

-
家族に人気の設備

-
夫婦に人気の設備

-
三世代で人気の設備

-
外で子どもと遊びたい

-
雨の日でも洗濯したい

-
洋室で暮らしたい

-
寝るためだけの部屋

-
ガーデニングが好き

契約条件
敷金が無料なため、初期費用が比較的安くなる傾向にあります。
セキュリティ
来客時には居室内のテレビモニターにて訪問者の顔を確認することができます。
室内設備
電気コンロが備え付けられています。 お風呂とトイレは別です。お風呂には、追い焚き機能が備わっています。 トイレは、温水洗浄便座機能付きになります。 女性に嬉しい設備の独立した洗面化粧台があります。 洗濯に便利な設備として、室内洗濯機置場があります。
居室状況
居室には、ロフトが設置されており大規模な収納スペースやセパレートされた寝室として活用できます。 お部屋の床は、フローリングとなっており、エアコンが設置されています。
建物設備共用部分
居室外の専有スペースとして、洗濯物を干すなどの用途として利用できるバルコニーがあります。
周辺施設
この物件の学区は、真岡西小学校区・真岡中学校区です。
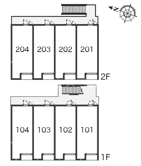
レオネクストインフレンド 102号室の間取り
間取り:1K
間取詳細:1K
専有面積:31.21㎡
方位:ー
部屋位置:その他
レオネクストインフレンド 102号室の設備
キッチン
電気コンロ
バス・トイレ
バス・トイレ別
追い焚き
温水洗浄便座
独立洗面台
玄関
TVモニタ付インターホン
バルコニー
バルコニー
ルーフバルコニー
室内設備
エアコン
フローリング
室内洗濯機置場
ロフト付
位置・立地
1階
インフラ
インターネット可
入居条件
オンライン相談可
オンライン内見可
ライフステージ
一人暮らしに人気の設備
カップルに人気の設備
家族に人気の設備
夫婦に人気の設備
三世代で人気の設備
こだわり
外で子どもと遊びたい
雨の日でも洗濯したい
洋室で暮らしたい
寝るためだけの部屋
趣味
ガーデニングが好き
レオネクストインフレンド 102号室の賃貸契約情報
毎月支払う |
家賃5.7万円/月共益費4,000円/月 |
|---|---|
初期費用 |
敷金-礼金57,000円保証金-敷引き償却金- |
更新料 |
- |
鍵交換費用 |
16,500円 |
室内清掃費用 |
41,800円 |
抗菌施工(任意) |
23,760円 |
駐車場料金 |
無 |
損保・ |
借家賠付きの火災保険にご加入いただきます。 |
保証会社 |
加入要 保証会社利用料:保証料:62390円(契約内容により100~120%で変動有)※記載金額は120%の場合 |
契約期間 |
- |
入居可能日 |
即入居可 |
フリーレント期間 |
- |
取引形態 |
一般媒介 |
備考 |
鍵交換費10450円、退去時清掃費41800円、抗菌施工(任意)18040円から23760円(税込)/環境維持費550円/月、更新手数料16500円/2年(税込)/退去時清掃費:41800円(税込) |
レオネクストインフレンド 102号室の建物情報
建物名称 |
レオネクストインフレンド |
|---|---|
最寄駅 |
|
所在地 |
栃木県真岡市下高間木 |
階層 |
1階部分(地上2階建) |
構造 |
木造 |
築年数 |
2016年1月(築10年) |
駐車場 |
無 |
小学校学区 |
真岡西小学校 |
中学校学区 |
真岡中学校 |
- 学区データについて
- ※学区データは必ずしも正確とは限りません。詳細に関しては最寄店舗または各自治体の教育委員会に必ずご確認ください。
無料この物件に問い合わせ
- レオネクストインフレンド 102号室

-
5.7万円
(共益費
4,000円)
- 敷
- -
- 礼
- 57,000円
- 保
- -
- 償
- -
レオネクストインフレンド 102号室の物件のお問い合わせ先・取り扱い店舗
ハウスコム 宇都宮店
- アクセス
-
東北本線「宇都宮駅」西口徒歩1分
- 住所
- 〒321-0964 栃木県宇都宮市駅前通り1丁目5−9 笠島ビル 1F
- 営業時間
- 10:00~18:00
- 定休日
- なし(年末年始)
- 営業エリア
- 栃木県内全域
- 取引態様
- 賃貸仲介業
















