リシュドール梅小路 0703号室(7階/1DK)の賃貸物件(賃貸マンション)
京都府京都市下京区にあるリシュドール梅小路 0703号室はシステムキッチン、TVモニタ付インターホン、ルーフバルコニー、防犯カメラ、駐輪場などが特徴です。最寄り駅の山陰本線丹波口駅から徒歩7分です。リシュドール梅小路 0703号室の詳細はハウスコム 西院店までお気軽にお問い合わせください!
情報更新日:
次回更新予定日:
※次回更新予定日について:お店側では順次空室確認を行っていますが、次回更新予定日までに空室確認が行えない場合には、この物件情報は自動的に削除されます。
リシュドール梅小路 0703号室の賃貸物件部屋概要
家賃 |
8.2万円
初期費用を |
|---|---|
共益費 |
8,000円
入居可能時期 |
敷金/礼金 |
- / - |
保証金/ |
- / - |
最寄駅 |
|
所在地 |
京都府京都市下京区朱雀分木町 |
部屋番号 |
0703号室 |
間取り |
1DK(DK6.3・洋3.4) |
専有面積 |
27.22㎡ |
築年数 |
新築 |
階数 |
7階部分(地上11階建) |
方位・位置 |
東 / その他 |
物件種別 |
賃貸マンション |
構造 |
RC |
駐車場 |
無 |
小学校学区 |
梅小路小学校 |
中学校学区 |
下京中学校 |
他の空き部屋 |
***号室 0205号室 0206号室 0207号室 0213号室 ***号室 0305号室 0306号室 0307号室 0309号室 0310号室 0311号室 0312号室 0401号室 0405号室 0406号室 0407号室 0409号室 0410号室 0411号室 0412号室 0413号室 0505号室 0506号室 0507号室 0509号室 0510号室 0511号室 0512号室 0513号室 0601号室 0602号室 0603号室 0605号室 0606号室 0609号室 0610号室 0611号室 0612号室 0613号室 0701号室 0702号室 0704号室 0705号室 0706号室 0707号室 0712号室 0713号室 0801号室 0804号室 0805号室 0806号室 0807号室 0812号室 0902号室 0903号室 0904号室 0905号室 0906号室 0912号室 0913号室 1001号室 ***号室 1002号室 1004号室 1005号室 1012号室 1013号室 1102号室 ***号室 1104号室 ***号室 1107号室 ***号室 1109号室 ***号室 1110号室 ***号室 201号室 205号室 206号室 207号室 213号室 305号室 306号室 307号室 309号室 310号室 311号室 312号室 401号室 405号室 406号室 407号室 409号室 410号室 411号室 412号室 413号室 ***号室 505号室 ***号室 506号室 507号室 ***号室 509号室 510号室 511号室 ***号室 ***号室 |
- 学区データについて
- ※学区データは必ずしも正確とは限りません。詳細に関しては最寄店舗または各自治体の教育委員会に必ずご確認ください。
リシュドール梅小路 0703号室の特徴
-
一人暮らしに人気の設備

-
カップルに人気の設備

-
家族に人気の設備

-
夫婦に人気の設備

-
三世代で人気の設備

-
セキュリティ対策重視

-
タイパ重視

-
外で子どもと遊びたい

-
雨の日でも洗濯したい

-
洋室で暮らしたい

-
オークション・通販が好き

-
ガーデニングが好き

契約条件
敷金と礼金が無料なため、初期費用が比較的安くなる傾向にあります。
セキュリティ
この物件の建物には、オートロックや防犯カメラや宅配ボックスが設置されており、来客時には居室内のテレビモニターにて訪問者の顔を確認することができます。
室内設備
システムキッチンには、2つ以上のガスコンロが備え付けられています。 トイレは、温水洗浄便座機能付きになります。 女性に嬉しい設備のシャワーの付いている洗面化粧台があります。 洗濯に便利な設備として、室内洗濯機置場があります。浴室乾燥機も設置されているので、梅雨時の生乾き臭も比較的防ぐことができます。
居室状況
お部屋の床は、フローリングとなっており、エアコンが設置されています。 インターネットも無料で入居後すぐ生活が始められます。 収納スペースとして、基本的な居室にクローゼットを設置、玄関にはシューズボックスがあります。
建物設備共用部分
居室外の専有スペースとして、洗濯物を干すなどの用途として利用できるバルコニーがあります。 建物の共用スペースに、日々の出入に便利なエレベーターや、いざという時の防犯カメラや、急な外出や不在がちのご家庭の荷物受け取りに便利な宅配ボックスや、居室内を常に清潔に保てる24時間利用可能なゴミ捨て置き場が設置されています。 駐輪場、バイク置き場が利用できます。
周辺施設
この物件の学区は、梅小路小学校区・下京中学校区です。
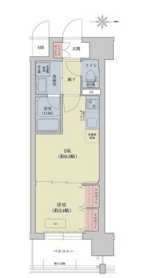
リシュドール梅小路 0703号室の間取り
間取り:1DK
間取詳細:1DK(DK6.3・洋3.4)
専有面積:27.22㎡
方位:東
部屋位置:その他
リシュドール梅小路 0703号室の設備
キッチン
システムキッチン
ガスコンロ
ガスコンロ二口以上
バス・トイレ
バス・トイレ別
浴室乾燥機
温水洗浄便座
独立洗面台
シャワー付洗面化粧台
玄関
TVモニタ付インターホン
オートロック
宅配ボックス
収納
クローゼット
シューズボックス
トランクルーム
バルコニー
バルコニー
ルーフバルコニー
室内設備
エアコン
フローリング
室内洗濯機置場
位置・立地
2階以上
建物設備
エレベーター
防犯カメラ
24時間ゴミ出しOK
駐輪場
バイク置き場
ライフステージ
一人暮らしに人気の設備
カップルに人気の設備
家族に人気の設備
夫婦に人気の設備
三世代で人気の設備
こだわり
セキュリティ対策重視
タイパ重視
外で子どもと遊びたい
雨の日でも洗濯したい
洋室で暮らしたい
趣味
オークション・通販が好き
ガーデニングが好き
お得な条件
インターネット無料
リシュドール梅小路 0703号室の賃貸契約情報
毎月支払う |
家賃8.2万円/月共益費8,000円/月 |
|---|---|
初期費用 |
敷金-礼金-保証金-敷引き償却金- |
更新料 |
41,000円 |
鍵交換費用 |
- |
室内清掃費用 |
- |
駐輪場ステッカー |
440円 |
駐車場料金 |
無 |
損保・ |
借家賠付きの火災保険にご加入いただきます。 |
保証会社 |
加入要 保証会社:エポスカード 保証会社利用料:保証料:賃料等の50%(最低2万)、月額保証料:賃料等の1%(更新料無) |
契約期間 |
2年 |
入居可能日 |
即入居可 |
フリーレント期間 |
- |
取引形態 |
一般媒介 |
備考 |
清掃費:27500円(退去時請求).エアコン清掃費:8250円(退去時請求) |
リシュドール梅小路 0703号室の建物情報
建物名称 |
リシュドール梅小路 |
|---|---|
最寄駅 |
|
所在地 |
京都府京都市下京区朱雀分木町 |
階層 |
7階部分(地上11階建) |
構造 |
RC |
築年数 |
新築 |
駐車場 |
無 |
小学校学区 |
梅小路小学校 |
中学校学区 |
下京中学校 |
- 学区データについて
- ※学区データは必ずしも正確とは限りません。詳細に関しては最寄店舗または各自治体の教育委員会に必ずご確認ください。
無料この物件に問い合わせ
- リシュドール梅小路 0703号室

-
8.2万円
(共益費
8,000円)
- 敷
- -
- 礼
- -
- 保
- -
- 償
- -
リシュドール梅小路 0703号室の物件のお問い合わせ先・取り扱い店舗
ハウスコム 西院店
- アクセス
-
阪急京都線「西院駅」徒歩1分
- 住所
- 〒615-0012 京都府京都市右京区西院高山寺町13番地 西院阪急プラザ1F
- 営業時間
- 10:00~18:00
- 定休日
- 水曜日
- 営業エリア
- 京都市右京区・京都市中京区・京都市下京区・京都市西京区・京都市上京区・京都市南区・京都市北区
- 取引態様
- 賃貸仲介業
























