ザ・パークハビオ天満橋 ***号室(6階/1DK)の賃貸物件(賃貸マンション)
大阪府大阪市北区にあるザ・パークハビオ天満橋 ***号室は浴室乾燥機、独立洗面台、バルコニー、エアコン、角部屋などが特徴です。最寄り駅の大阪メトロ 谷町線南森町駅から徒歩9分です。ザ・パークハビオ天満橋 ***号室の詳細はミニミニ FC南森町店までお気軽にお問い合わせください!
情報更新日:
次回更新予定日:
※次回更新予定日について:お店側では順次空室確認を行っていますが、次回更新予定日までに空室確認が行えない場合には、この物件情報は自動的に削除されます。
ザ・パークハビオ天満橋 ***号室の賃貸物件部屋概要
家賃 |
10.5万円
初期費用を |
|---|---|
共益費 |
10,000円
入居可能時期 |
敷金/礼金 |
115,000円 / 115,000円 |
保証金/ |
- / - |
最寄駅 |
|
所在地 |
大阪府大阪市北区天満橋 |
部屋番号 |
***号室 |
間取り |
1DK(DK7.5・洋4.5) |
専有面積 |
30.48㎡ |
築年数 |
2017年2月(築9年) |
階数 |
6階部分(地上15階建) |
方位・位置 |
東 / 角部屋 |
物件種別 |
賃貸マンション |
構造 |
RC |
駐車場 |
無 |
小学校学区 |
堀川小学校 |
中学校学区 |
北稜中学校 |
他の空き部屋 |
***号室 ***号室 ***号室 ***号室 ***号室 ***号室 ***号室 ***号室 ***号室 ***号室 |
- 学区データについて
- ※学区データは必ずしも正確とは限りません。詳細に関しては最寄店舗または各自治体の教育委員会に必ずご確認ください。
ザ・パークハビオ天満橋 ***号室の特徴
-
一人暮らしに人気の設備

-
カップルに人気の設備

-
家族に人気の設備

-
夫婦に人気の設備

-
三世代で人気の設備

-
地震対策された建物

-
セキュリティ対策重視

-
外で子どもと遊びたい

-
雨の日でも洗濯したい

-
洋室で暮らしたい

-
オークション・通販が好き

-
ガーデニングが好き

契約条件
ペットの飼育もご相談ください。
セキュリティ
この物件の建物には、オートロックや防犯カメラや宅配ボックスが設置されており、来客時には居室内のテレビモニターにて訪問者の顔を確認することができます。
室内設備
システムキッチンには、2つ以上のガスコンロが備え付けられています。 お風呂とトイレは別です。お風呂には、追い焚き機能が備わっています。 トイレは、温水洗浄便座機能付きになります。 女性に嬉しい設備の独立した洗面化粧台があります。 洗濯に便利な設備として、室内洗濯機置場があります。浴室乾燥機も設置されているので、梅雨時の生乾き臭も比較的防ぐことができます。
居室状況
お部屋の床は、フローリングとなっており、エアコンが設置されています。 照明器具が備え付けられており、インターネットも無料で入居後すぐ生活が始められます。 収納スペースとして、基本的な居室にクローゼットを設置、玄関にはシューズボックスがあります。
建物設備共用部分
居室外の専有スペースとして、洗濯物を干すなどの用途として利用できるバルコニーがあります。 建物の共用スペースに、日々の出入に便利なエレベーターや、いざという時の防犯カメラや、急な外出や不在がちのご家庭の荷物受け取りに便利な宅配ボックスが設置されています。 駐輪場、バイク置き場が利用できます。 この物件の建物は、建物全体をしっかり固定することで、地震の揺れに耐えるように設計された耐震構造の建築物です。
周辺施設
この物件の学区は、堀川小学校区・北稜中学校区です。
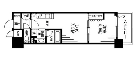
ザ・パークハビオ天満橋 ***号室の間取り
間取り:1DK
間取詳細:1DK(DK7.5・洋4.5)
専有面積:30.48㎡
方位:東
部屋位置:角部屋
ザ・パークハビオ天満橋 ***号室の設備
キッチン
システムキッチン
ガスコンロ
ガスコンロ二口以上
バス・トイレ
バス・トイレ別
追い焚き
浴室乾燥機
温水洗浄便座
独立洗面台
玄関
TVモニタ付インターホン
オートロック
宅配ボックス
収納
クローゼット
シューズボックス
バルコニー
バルコニー
ルーフバルコニー
室内設備
エアコン
フローリング
室内洗濯機置場
照明器具付
位置・立地
2階以上
角部屋
インフラ
インターネット可
BS
CS
都市ガス
建物設備
エレベーター
防犯カメラ
駐輪場
バイク置き場
耐震構造
入居条件
ペット可・相談
オンライン相談可
オンライン内見可
ライフステージ
一人暮らしに人気の設備
カップルに人気の設備
家族に人気の設備
夫婦に人気の設備
三世代で人気の設備
トレンド
地震対策された建物
こだわり
セキュリティ対策重視
外で子どもと遊びたい
雨の日でも洗濯したい
洋室で暮らしたい
趣味
オークション・通販が好き
ガーデニングが好き
お得な条件
インターネット無料
ザ・パークハビオ天満橋 ***号室の賃貸契約情報
毎月支払う |
家賃10.5万円/月共益費10,000円/月 |
|---|---|
初期費用 |
敷金115,000円礼金115,000円保証金-敷引き償却金- |
更新料 |
105,000円 |
鍵交換費用 |
18,700円 |
室内清掃費用 |
38,500円 |
エアコン洗浄 |
11,000円 |
駐車場料金 |
無 |
損保・ |
借家賠付きの火災保険にご加入いただきます。 |
保証会社 |
加入要 保証会社:エポスカード 保証会社利用料:初回保証料 審査内容による |
契約期間 |
2年 |
入居可能日 |
2026年02月下旬 |
フリーレント期間 |
- |
取引形態 |
一般媒介 |
備考 |
室内清掃費用 38500円 鍵交換代 18700円 初期:エアコン洗浄 11000円 保証会社利用必須 初回保証料 審査内容による |
ザ・パークハビオ天満橋 ***号室の建物情報
建物名称 |
ザ・パークハビオ天満橋 |
|---|---|
最寄駅 |
|
所在地 |
大阪府大阪市北区天満橋 |
階層 |
6階部分(地上15階建) |
構造 |
RC |
築年数 |
2017年2月(築9年) |
駐車場 |
無 |
小学校学区 |
堀川小学校 |
中学校学区 |
北稜中学校 |
- 学区データについて
- ※学区データは必ずしも正確とは限りません。詳細に関しては最寄店舗または各自治体の教育委員会に必ずご確認ください。
無料この物件に問い合わせ
- ザ・パークハビオ天満橋 ***号室

-
10.5万円
(共益費
10,000円)
- 敷
- 115,000円
- 礼
- 115,000円
- 保
- -
- 償
- -
ザ・パークハビオ天満橋 ***号室の物件のお問い合わせ先・取り扱い店舗
ミニミニ FC南森町店
- アクセス
-
大阪メトロ 谷町線「南森町駅」徒歩1分
大阪メトロ 堺筋線「南森町駅」徒歩1分
JR東西線「大阪天満宮駅」徒歩2分
- 住所
- 〒530-0041 大阪府大阪市北区天神橋2-3-19 AXIS南森町ⅢBLD. 1F
- 営業時間
- 10:00~18:00
- 定休日
- なし(年末年始12月25日から1月3日まで休業)
- 営業エリア
- 大阪市北区,大阪市都島区,大阪市中央区,大阪市旭区,大阪市淀川区,大阪市福島区,大阪市西区,大阪市東淀川区
- 取引態様
- 賃貸仲介業
























