恵比寿の完工年月(2005年3月)築の賃貸マンション ***号室(8階/1LDK)の賃貸物件(賃貸マンション)
東京都渋谷区にある恵比寿の完工年月(2005年3月)築の賃貸マンション ***号室はTVモニタ付インターホン、シューズボックス、デザイナーズ、2階以上、24時間ゴミ出しOKなどが特徴です。最寄り駅の山手線恵比寿駅から徒歩1分です。恵比寿の完工年月(2005年3月)築の賃貸マンション ***号室の詳細はハウスコム 渋谷店までお気軽にお問い合わせください!
情報更新日:
次回更新予定日:
※次回更新予定日について:お店側では順次空室確認を行っていますが、次回更新予定日までに空室確認が行えない場合には、この物件情報は自動的に削除されます。
恵比寿の完工年月(2005年3月)築の賃貸マンション ***号室の賃貸物件部屋概要
家賃 |
49万円
初期費用を |
|---|---|
共益費 |
10,000円
入居可能時期 |
敷金/礼金 |
1ヶ月 / - |
保証金/ |
- / - |
最寄駅 |
|
所在地 |
東京都渋谷区恵比寿 |
部屋番号 |
***号室 |
間取り |
1LDK(洋7.8・LDK20.2) |
専有面積 |
60.74㎡ |
築年数 |
2005年3月(築21年) |
階数 |
8階部分(地上10階地下1階建) |
方位・位置 |
北 / 角部屋 |
物件種別 |
賃貸マンション |
構造 |
RC |
駐車場 |
- |
小学校学区 |
加計塚小学校 |
中学校学区 |
広尾中学校 |
他の空き部屋 |
***号室 ***号室 ***号室 ***号室 ***号室 |
- 学区データについて
- ※学区データは必ずしも正確とは限りません。詳細に関しては最寄店舗または各自治体の教育委員会に必ずご確認ください。
恵比寿の完工年月(2005年3月)築の賃貸マンション ***号室の特徴
-
一人暮らしに人気の設備

-
カップルに人気の設備

-
家族に人気の設備

-
夫婦に人気の設備

-
三世代で人気の設備

-
セキュリティ対策重視

-
外で子どもと遊びたい

-
洋室で暮らしたい

-
オークション・通販が好き

-
ガーデニングが好き

契約条件
この物件は、2人入居もご契約できます。 また、ご契約時に保証人は不要です。 礼金が無料なため、初期費用が比較的安くなる傾向にあります。
セキュリティ
この物件の建物には、オートロックや防犯カメラや宅配ボックスが設置されており、来客時には居室内のテレビモニターにて訪問者の顔を確認することができます。
室内設備
システムキッチンが備え付けられています。 お風呂とトイレは別です。お風呂には、追い焚き機能が備わっています。 トイレは、温水洗浄便座機能付きになります。
居室状況
お部屋の床は、フローリングとなっており、エアコンが設置されています。 インターネットも無料で入居後すぐ生活が始められます。 収納スペースとして、基本的な居室にクローゼットを設置、玄関にはシューズボックスがあります。
建物設備共用部分
居室外の専有スペースとして、洗濯物を干すなどの用途として利用できるバルコニーがあります。 建物の共用スペースに、日々の出入に便利なエレベーターや、いざという時の防犯カメラや、急な外出や不在がちのご家庭の荷物受け取りに便利な宅配ボックスや、居室内を常に清潔に保てる24時間利用可能なゴミ捨て置き場が設置されています。
周辺施設
この物件の学区は、加計塚小学校区・広尾中学校区です。
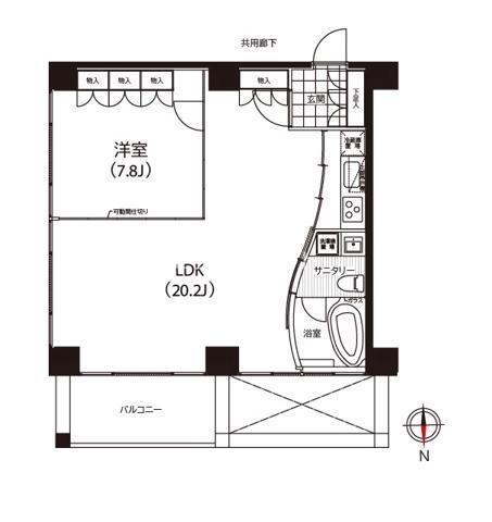
恵比寿の完工年月(2005年3月)築の賃貸マンション ***号室の間取り
間取り:1LDK
間取詳細:1LDK(洋7.8・LDK20.2)
専有面積:60.74㎡
方位:北
部屋位置:角部屋
恵比寿の完工年月(2005年3月)築の賃貸マンション ***号室の設備
キッチン
システムキッチン
バス・トイレ
バス・トイレ別
追い焚き
温水洗浄便座
玄関
TVモニタ付インターホン
オートロック
宅配ボックス
収納
クローゼット
シューズボックス
バルコニー
バルコニー
ルーフバルコニー
室内設備
エアコン
フローリング
デザイナーズ
位置・立地
2階以上
角部屋
インフラ
CATV
BS
CS
都市ガス
建物設備
エレベーター
防犯カメラ
24時間ゴミ出しOK
入居条件
2人入居可
保証人不要
ライフステージ
一人暮らしに人気の設備
カップルに人気の設備
家族に人気の設備
夫婦に人気の設備
三世代で人気の設備
こだわり
セキュリティ対策重視
外で子どもと遊びたい
洋室で暮らしたい
趣味
オークション・通販が好き
ガーデニングが好き
お得な条件
インターネット無料
恵比寿の完工年月(2005年3月)築の賃貸マンション ***号室の賃貸契約情報
毎月支払う |
家賃49万円/月共益費10,000円/月 |
|---|---|
初期費用 |
敷金1ヶ月 (49万円)礼金-保証金-敷引き償却金- |
更新料 |
490,000円 |
鍵交換費用 |
27,500円 |
室内清掃費用 |
- |
宅配カード発行料 |
3,300円 |
駐車場料金 |
- |
損保・ |
借家賠付きの火災保険にご加入いただきます。 |
保証会社 |
加入要 保証会社:クレディセゾン 保証会社利用料:初回保証料:賃料総額の50% 月々1% |
契約期間 |
2年 |
入居可能日 |
2026年05月下旬 |
フリーレント期間 |
- |
取引形態 |
一般媒介 |
備考 |
- |
恵比寿の完工年月(2005年3月)築の賃貸マンション ***号室の建物情報
建物名称 |
恵比寿の完工年月(2005年3月)築の賃貸マンション |
|---|---|
最寄駅 |
|
所在地 |
東京都渋谷区恵比寿 |
階層 |
8階部分(地上10階地下1階建) |
構造 |
RC |
築年数 |
2005年3月(築21年) |
駐車場 |
- |
小学校学区 |
加計塚小学校 |
中学校学区 |
広尾中学校 |
- 学区データについて
- ※学区データは必ずしも正確とは限りません。詳細に関しては最寄店舗または各自治体の教育委員会に必ずご確認ください。
無料この物件に問い合わせ
- 恵比寿の完工年月(2005年3月)築の賃貸マンション ***号室

-
49万円
(共益費
10,000円)
- 敷
- 1ヶ月
- 礼
- -
- 保
- -
- 償
- -
恵比寿の完工年月(2005年3月)築の賃貸マンション ***号室の物件のお問い合わせ先・取り扱い店舗
ハウスコム 渋谷店
- アクセス
-
山手線「渋谷駅」徒歩1分
- 住所
- 〒150-0043 東京都渋谷区道玄坂2-30-4 玉久ビル6階
- 営業時間
- 10:00~18:00
- 定休日
- 火曜日・水曜日(年末年始休業)
- 営業エリア
- 主に渋谷区、港区、世田谷区、目黒区(その他地域もご紹介可能です)
- 取引態様
- 賃貸仲介業


















