SYNEX YOKOHAMA-AOKICHO 1001号室(10階/1K)の賃貸物件(賃貸マンション)
神奈川県横浜市神奈川区にあるSYNEX YOKOHAMA-AOKICHO 1001号室は追い焚き、独立洗面台、バルコニー、ペット可・相談、保証人不要などが特徴です。最寄り駅の京急本線神奈川駅から徒歩5分です。SYNEX YOKOHAMA-AOKICHO 1001号室の詳細はハウスコム 菊名店までお気軽にお問い合わせください!
情報更新日:
次回更新予定日:
※次回更新予定日について:お店側では順次空室確認を行っていますが、次回更新予定日までに空室確認が行えない場合には、この物件情報は自動的に削除されます。
SYNEX YOKOHAMA-AOKICHO 1001号室の賃貸物件部屋概要
家賃 |
11.9万円
初期費用を |
|---|---|
共益費 |
10,000円
入居可能時期 |
敷金/礼金 |
1ヶ月 / 1ヶ月 |
保証金/ |
- / - |
最寄駅 |
|
所在地 |
神奈川県横浜市神奈川区青木町 |
部屋番号 |
1001号室 |
間取り |
1K(洋8.1) |
専有面積 |
26.96㎡ |
築年数 |
2024年1月(築2年) |
階数 |
10階部分(地上11階建) |
方位・位置 |
南東 / 角部屋 |
物件種別 |
賃貸マンション |
構造 |
RC |
駐車場 |
- |
小学校学区 |
幸ケ谷小学校 |
中学校学区 |
栗田谷中学校 |
他の空き部屋 |
ー |
- 学区データについて
- ※学区データは必ずしも正確とは限りません。詳細に関しては最寄店舗または各自治体の教育委員会に必ずご確認ください。
SYNEX YOKOHAMA-AOKICHO 1001号室の特徴
-
一人暮らしに人気の設備

-
カップルに人気の設備

-
家族に人気の設備

-
夫婦に人気の設備

-
三世代で人気の設備

-
タイパ重視

-
外で子どもと遊びたい

-
身だしなみに気をつかいたい

-
雨の日でも洗濯したい

-
洋室で暮らしたい

-
オークション・通販が好き

-
ガーデニングが好き

契約条件
ペットの飼育もご相談ください。 また、ご契約時に保証人は不要です。 お支払いは、初期費用がクレジットカードにて決済できます。
セキュリティ
この物件の建物には、オートロックや防犯カメラや宅配ボックスが設置されております。
室内設備
システムキッチンには、2つ以上のガスコンロが備え付けられています。 お風呂とトイレは別です。お風呂には、追い焚き機能が備わっています。 トイレは、温水洗浄便座機能付きになります。 女性に嬉しい設備の独立した洗面化粧台があります。 洗濯に便利な設備として、室内洗濯機置場があります。浴室乾燥機も設置されているので、梅雨時の生乾き臭も比較的防ぐことができます。
居室状況
お部屋の床は、フローリングとなっており、エアコンが設置されています。 インターネットも無料で入居後すぐ生活が始められます。 収納スペースとして、基本的な居室にクローゼットを設置、玄関にはシューズボックスがあります。
建物設備共用部分
居室外の専有スペースとして、洗濯物を干すなどの用途として利用できるバルコニーがあります。 建物の共用スペースに、日々の出入に便利なエレベーターや、いざという時の防犯カメラや、急な外出や不在がちのご家庭の荷物受け取りに便利な宅配ボックスや、居室内を常に清潔に保てる24時間利用可能なゴミ捨て置き場が設置されています。 駐輪場が利用できます。
周辺施設
この物件の学区は、幸ケ谷小学校区・栗田谷中学校区です。
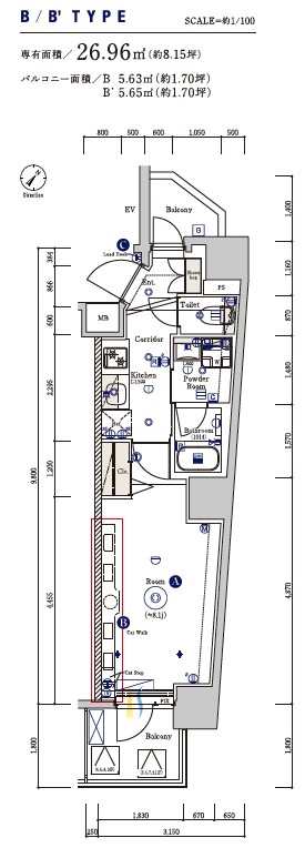
SYNEX YOKOHAMA-AOKICHO 1001号室の間取り
間取り:1K
間取詳細:1K(洋8.1)
専有面積:26.96㎡
方位:南東
部屋位置:角部屋
SYNEX YOKOHAMA-AOKICHO 1001号室の設備
キッチン
システムキッチン
ガスコンロ
ガスコンロ二口以上
バス・トイレ
バス・トイレ別
追い焚き
浴室乾燥機
温水洗浄便座
独立洗面台
玄関
オートロック
宅配ボックス
収納
クローゼット
シューズボックス
バルコニー
バルコニー
ルーフバルコニー
室内設備
エアコン
フローリング
室内洗濯機置場
位置・立地
2階以上
角部屋
インフラ
インターネット可
都市ガス
建物設備
エレベーター
防犯カメラ
24時間ゴミ出しOK
駐輪場
分譲賃貸
入居条件
ペット可・相談
保証人不要
ライフステージ
一人暮らしに人気の設備
カップルに人気の設備
家族に人気の設備
夫婦に人気の設備
三世代で人気の設備
こだわり
タイパ重視
外で子どもと遊びたい
身だしなみに気をつかいたい
雨の日でも洗濯したい
洋室で暮らしたい
趣味
オークション・通販が好き
ガーデニングが好き
お得な条件
インターネット無料
初期費用カード決済可
SYNEX YOKOHAMA-AOKICHO 1001号室の賃貸契約情報
毎月支払う |
家賃11.9万円/月共益費10,000円/月 |
|---|---|
初期費用 |
敷金1ヶ月 (11.9万円)礼金1ヶ月 (11.9万円)保証金-敷引き償却金- |
更新料 |
119,000円 |
鍵交換費用 |
33,000円 |
室内清掃費用 |
52,800円 |
SYLAプレミアムクラブ |
24,200円 |
駐車場料金 |
- |
損保・ |
借家賠付きの火災保険にご加入いただきます。 |
保証会社 |
加入要 保証会社:エルズサポート 保証会社利用料:初回50%、月額保証料700円、月額事務手数料330円~ 外国籍の方:エポスGTNを利用。初回保証料60%、月額保証料2%、年間保証料無し |
契約期間 |
2年 |
入居可能日 |
相談 |
フリーレント期間 |
- |
取引形態 |
一般媒介 |
備考 |
- |
SYNEX YOKOHAMA-AOKICHO 1001号室の建物情報
建物名称 |
SYNEX YOKOHAMA-AOKICHO |
|---|---|
最寄駅 |
|
所在地 |
神奈川県横浜市神奈川区青木町 |
階層 |
10階部分(地上11階建) |
構造 |
RC |
築年数 |
2024年1月(築2年) |
駐車場 |
- |
小学校学区 |
幸ケ谷小学校 |
中学校学区 |
栗田谷中学校 |
- 学区データについて
- ※学区データは必ずしも正確とは限りません。詳細に関しては最寄店舗または各自治体の教育委員会に必ずご確認ください。
無料この物件に問い合わせ
- SYNEX YOKOHAMA-AOKICHO 1001号室

-
11.9万円
(共益費
10,000円)
- 敷
- 1ヶ月
- 礼
- 1ヶ月
- 保
- -
- 償
- -
SYNEX YOKOHAMA-AOKICHO 1001号室の物件のお問い合わせ先・取り扱い店舗
ハウスコム 菊名店
- アクセス
-
東急東横線「菊名駅」徒歩1分
- 住所
- 〒222-0011 神奈川県横浜市港北区菊名4丁目1−6 クレセント菊名 1階
- 営業時間
- 10:00~18:00
- 定休日
- なし
- 営業エリア
- 横浜市港北区、横浜市神奈川区、横浜市都筑区、横浜市鶴見区、横浜市緑区
- 取引態様
- 賃貸仲介業























