パラドール:Y ***号室(8階/2LDK)の賃貸物件(賃貸マンション)
京都府京都市右京区にあるパラドール:Y ***号室は浴室乾燥機、シャワー付洗面化粧台、宅配ボックス、角部屋、エレベーターなどが特徴です。最寄り駅の嵐電(京福電鉄)嵐山本線山ノ内駅から徒歩12分です。パラドール:Y ***号室の詳細はハウスコム 西院店までお気軽にお問い合わせください!
情報更新日:
次回更新予定日:
※次回更新予定日について:お店側では順次空室確認を行っていますが、次回更新予定日までに空室確認が行えない場合には、この物件情報は自動的に削除されます。
パラドール:Y ***号室の賃貸物件部屋概要
家賃 |
15.2万円
初期費用を |
|---|---|
共益費 |
10,000円
入居可能時期 |
敷金/礼金 |
1ヶ月 / 2ヶ月 |
保証金/ |
- / - |
最寄駅 |
|
所在地 |
京都府京都市右京区西院安塚町 |
部屋番号 |
***号室 |
間取り |
2LDK(LDK14.2・洋6・洋5.5) |
専有面積 |
61.30㎡ |
築年数 |
新築 |
階数 |
8階部分(地上9階建) |
方位・位置 |
南 / 角部屋 |
物件種別 |
賃貸マンション |
構造 |
RC |
駐車場 |
16,000円 |
小学校学区 |
山ノ内小学校 |
中学校学区 |
四条中学校 |
他の空き部屋 |
***号室 ***号室 ***号室 ***号室 ***号室 ***号室 ***号室 |
- 学区データについて
- ※学区データは必ずしも正確とは限りません。詳細に関しては最寄店舗または各自治体の教育委員会に必ずご確認ください。
パラドール:Y ***号室の特徴
-
一人暮らしに人気の設備

-
カップルに人気の設備

-
家族に人気の設備

-
夫婦に人気の設備

-
三世代で人気の設備

-
外で子どもと遊びたい

-
雨の日でも洗濯したい

-
洋室で暮らしたい

-
料理が好き

-
推し活グッズを飾りたい

-
オークション・通販が好き

-
ガーデニングが好き

契約条件
この物件は、2人入居もご契約できます。
セキュリティ
この物件の建物には、オートロックや宅配ボックスが設置されており、来客時には居室内のテレビモニターにて訪問者の顔を確認することができます。
室内設備
システムキッチンには、ガスコンロが備え付けられています。 お風呂とトイレは別です。お風呂には、追い焚き機能が備わっています。 トイレは、温水洗浄便座機能付きになります。 女性に嬉しい設備のシャワーの付いている洗面化粧台があります。 洗濯に便利な設備として、室内洗濯機置場があります。浴室乾燥機も設置されているので、梅雨時の生乾き臭も比較的防ぐことができます。
居室状況
お部屋の床は、フローリングとなっており、エアコンが設置されています。 インターネットも無料で入居後すぐ生活が始められます。 収納スペースとして、基本的な居室にクローゼットを設置、玄関にはシューズボックスがあります。
建物設備共用部分
居室外の専有スペースとして、洗濯物を干すなどの用途として利用できるバルコニーがあります。 建物の共用スペースに、日々の出入に便利なエレベーターや、急な外出や不在がちのご家庭の荷物受け取りに便利な宅配ボックスが設置されています。 駐輪場が利用できます。
周辺施設
この物件の学区は、山ノ内小学校区・四条中学校区です。
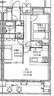
パラドール:Y ***号室の間取り
間取り:2LDK
間取詳細:2LDK(LDK14.2・洋6・洋5.5)
専有面積:61.30㎡
方位:南
部屋位置:角部屋
パラドール:Y ***号室の設備
キッチン
システムキッチン
カウンターキッチン
ガスコンロ
バス・トイレ
バス・トイレ別
追い焚き
浴室乾燥機
温水洗浄便座
独立洗面台
シャワー付洗面化粧台
玄関
TVモニタ付インターホン
オートロック
宅配ボックス
収納
クローゼット
シューズボックス
バルコニー
バルコニー
ルーフバルコニー
室内設備
エアコン
フローリング
室内洗濯機置場
位置・立地
2階以上
角部屋
南向き
インフラ
インターネット可
CATV
都市ガス
建物設備
エレベーター
駐輪場
入居条件
2人入居可
オンライン相談可
オンライン内見可
ライフステージ
一人暮らしに人気の設備
カップルに人気の設備
家族に人気の設備
夫婦に人気の設備
三世代で人気の設備
こだわり
外で子どもと遊びたい
雨の日でも洗濯したい
洋室で暮らしたい
趣味
料理が好き
推し活グッズを飾りたい
オークション・通販が好き
ガーデニングが好き
お得な条件
インターネット無料
パラドール:Y ***号室の賃貸契約情報
毎月支払う |
家賃15.2万円/月共益費10,000円/月 |
|---|---|
初期費用 |
敷金1ヶ月 (15.2万円)礼金2ヶ月 (30.4万円)保証金-敷引き償却金- |
更新料 |
152,000円 |
鍵交換費用 |
- |
室内清掃費用 |
55,000円 |
火災保険 |
20,000円 |
駐車場料金 |
16,000円 |
損保・ |
借家賠付きの火災保険にご加入いただきます。 |
保証会社 |
加入要 保証会社利用料:初回40%、月額保証料有。 |
契約期間 |
2年 |
入居可能日 |
2026年02月 |
フリーレント期間 |
- |
取引形態 |
一般媒介 |
備考 |
更新料1か月、更新事務手数料11000円。室内清掃費用 55000円 月額:安心入居サポート 990円 初期:火災保険 20000円 保証会社利用必須 初回40%、月払い保証料有。 |
パラドール:Y ***号室の建物情報
建物名称 |
パラドール:Y |
|---|---|
最寄駅 |
|
所在地 |
京都府京都市右京区西院安塚町 |
階層 |
8階部分(地上9階建) |
構造 |
RC |
築年数 |
新築 |
駐車場 |
16,000円 |
小学校学区 |
山ノ内小学校 |
中学校学区 |
四条中学校 |
- 学区データについて
- ※学区データは必ずしも正確とは限りません。詳細に関しては最寄店舗または各自治体の教育委員会に必ずご確認ください。
無料この物件に問い合わせ
- パラドール:Y ***号室

-
15.2万円
(共益費
10,000円)
- 敷
- 1ヶ月
- 礼
- 2ヶ月
- 保
- -
- 償
- -
パラドール:Y ***号室の物件のお問い合わせ先・取り扱い店舗
ハウスコム 西院店
- アクセス
-
阪急京都線「西院駅」徒歩1分
- 住所
- 〒615-0012 京都府京都市右京区西院高山寺町13番地 西院阪急プラザ1F
- 営業時間
- 10:00~18:00
- 定休日
- 水曜日
- 営業エリア
- 京都市右京区・京都市中京区・京都市下京区・京都市西京区・京都市上京区・京都市南区・京都市北区
- 取引態様
- 賃貸仲介業





























