ディアレイシャス東別院Ⅳ 702号室(7階/1K)の賃貸物件(賃貸マンション)
愛知県名古屋市中区にあるディアレイシャス東別院Ⅳ 702号室は宅配ボックス、フローリング、インターネット可、防犯カメラ、駐輪場などが特徴です。最寄り駅の名古屋市営地下鉄 名城線東別院駅から徒歩6分です。ディアレイシャス東別院Ⅳ 702号室の詳細はハウスコム 中村公園店までお気軽にお問い合わせください!
情報更新日:
次回更新予定日:
※次回更新予定日について:お店側では順次空室確認を行っていますが、次回更新予定日までに空室確認が行えない場合には、この物件情報は自動的に削除されます。
ディアレイシャス東別院Ⅳ 702号室の賃貸物件部屋概要
家賃 |
5.7万円
初期費用を |
|---|---|
共益費 |
8,000円
入居可能時期 |
敷金/礼金 |
- / - |
保証金/ |
- / - |
最寄駅 |
|
所在地 |
愛知県名古屋市中区千代田 |
部屋番号 |
702号室 |
間取り |
1K(洋6.1) |
専有面積 |
22.50㎡ |
築年数 |
新築 |
階数 |
7階部分(地上14階建) |
方位・位置 |
東 / その他 |
物件種別 |
賃貸マンション |
構造 |
RC |
駐車場 |
- |
小学校学区 |
平和小学校 |
中学校学区 |
伊勢山中学校 |
他の空き部屋 |
1002号室 1003号室 1004号室 1005号室 1006号室 1102号室 1103号室 1104号室 1105号室 1106号室 1202号室 1203号室 1204号室 1205号室 1206号室 1302号室 1303号室 1304号室 1305号室 1306号室 1402号室 1403号室 1404号室 1405号室 1406号室 703号室 704号室 705号室 706号室 802号室 803号室 804号室 805号室 806号室 902号室 903号室 904号室 905号室 906号室 |
- 学区データについて
- ※学区データは必ずしも正確とは限りません。詳細に関しては最寄店舗または各自治体の教育委員会に必ずご確認ください。
ディアレイシャス東別院Ⅳ 702号室の特徴
-
一人暮らしに人気の設備

-
カップルに人気の設備

-
家族に人気の設備

-
夫婦に人気の設備

-
三世代で人気の設備

-
セキュリティ対策重視

-
外で子どもと遊びたい

-
雨の日でも洗濯したい

-
洋室で暮らしたい

-
オークション・通販が好き

-
ガーデニングが好き

契約条件
ご契約時に保証人は不要です。 敷金と礼金が無料なため、初期費用が比較的安くなる傾向にあります。
セキュリティ
この物件の建物には、オートロックや防犯カメラや宅配ボックスが設置されており、来客時には居室内のテレビモニターにて訪問者の顔を確認することができます。
室内設備
システムキッチンには、2つ以上のガスコンロが備え付けられています。 女性に嬉しい設備の独立した洗面化粧台があります。 洗濯に便利な設備として、室内洗濯機置場があります。浴室乾燥機も設置されているので、梅雨時の生乾き臭も比較的防ぐことができます。
居室状況
お部屋の床は、フローリングとなっており、エアコンが設置されています。 インターネットも無料で入居後すぐ生活が始められます。 収納スペースとして、玄関にはシューズボックスがあります。
建物設備共用部分
居室外の専有スペースとして、洗濯物を干すなどの用途として利用できるバルコニーがあります。 建物の共用スペースに、日々の出入に便利なエレベーターや、いざという時の防犯カメラや、急な外出や不在がちのご家庭の荷物受け取りに便利な宅配ボックスが設置されています。 駐輪場が利用できます。
周辺施設
この物件の学区は、平和小学校区・伊勢山中学校区です。
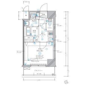
ディアレイシャス東別院Ⅳ 702号室の間取り
間取り:1K
間取詳細:1K(洋6.1)
専有面積:22.50㎡
方位:東
部屋位置:その他
ディアレイシャス東別院Ⅳ 702号室の設備
キッチン
システムキッチン
ガスコンロ
ガスコンロ二口以上
バス・トイレ
バス・トイレ別
浴室乾燥機
独立洗面台
玄関
TVモニタ付インターホン
オートロック
宅配ボックス
収納
シューズボックス
バルコニー
バルコニー
ルーフバルコニー
室内設備
エアコン
フローリング
室内洗濯機置場
位置・立地
2階以上
インフラ
インターネット可
BS
都市ガス
建物設備
エレベーター
防犯カメラ
駐輪場
入居条件
保証人不要
即入居可
ライフステージ
一人暮らしに人気の設備
カップルに人気の設備
家族に人気の設備
夫婦に人気の設備
三世代で人気の設備
こだわり
セキュリティ対策重視
外で子どもと遊びたい
雨の日でも洗濯したい
洋室で暮らしたい
趣味
オークション・通販が好き
ガーデニングが好き
お得な条件
インターネット無料
ディアレイシャス東別院Ⅳ 702号室の賃貸契約情報
毎月支払う |
家賃5.7万円/月共益費8,000円/月 |
|---|---|
初期費用 |
敷金-礼金-保証金-敷引き償却金- |
更新料 |
57,000円 |
鍵交換費用 |
- |
室内清掃費用 |
- |
たのもしーど24 |
2,200円 |
クリーニング費用 |
60,500円 |
エアコン内部洗浄代 |
11,000円 |
駐車場料金 |
- |
損保・ |
借家賠付きの火災保険にご加入いただきます。 |
保証会社 |
加入要 保証会社:エポスカード 保証会社利用料:エポスROOMiD(初回50%、月次1%) GTN(初回100%、月次2%) ルームバンク(初回50%、月次1%) セーフティー(初回50%、年次10,000円) |
契約期間 |
2年 |
入居可能日 |
即入居可 |
フリーレント期間 |
- |
取引形態 |
一般媒介 |
備考 |
- |
ディアレイシャス東別院Ⅳ 702号室の建物情報
建物名称 |
ディアレイシャス東別院Ⅳ |
|---|---|
最寄駅 |
|
所在地 |
愛知県名古屋市中区千代田 |
階層 |
7階部分(地上14階建) |
構造 |
RC |
築年数 |
新築 |
駐車場 |
- |
小学校学区 |
平和小学校 |
中学校学区 |
伊勢山中学校 |
- 学区データについて
- ※学区データは必ずしも正確とは限りません。詳細に関しては最寄店舗または各自治体の教育委員会に必ずご確認ください。
無料この物件に問い合わせ
- ディアレイシャス東別院Ⅳ 702号室

-
5.7万円
(共益費
8,000円)
- 敷
- -
- 礼
- -
- 保
- -
- 償
- -
ディアレイシャス東別院Ⅳ 702号室の物件のお問い合わせ先・取り扱い店舗
ハウスコム 中村公園店
- アクセス
-
名古屋市営地下鉄 東山線「中村公園駅」徒歩1分
- 住所
- 〒453-0811 愛知県名古屋市中村区太閤通9丁目9 横田ビル 1階
- 営業時間
- 10:00~18:00
- 定休日
- なし(年末年始休業12月25日~1月3日)
- 営業エリア
- 中村区 中川区 西区 中区 港区 海部郡 あま市 清須市
- 取引態様
- 賃貸仲介業









