井土ヶ谷中町新築アパート 301号室(3階/2LDK)の賃貸物件(賃貸アパート)
神奈川県横浜市南区にある井土ヶ谷中町新築アパート 301号室は追い焚き、独立洗面台、ルーフバルコニー、フローリング、2階以上などが特徴です。最寄り駅の京急本線井土ヶ谷駅から徒歩2分です。井土ヶ谷中町新築アパート 301号室の詳細はハウスコム 上大岡店までお気軽にお問い合わせください!
情報更新日:
次回更新予定日:
※次回更新予定日について:お店側では順次空室確認を行っていますが、次回更新予定日までに空室確認が行えない場合には、この物件情報は自動的に削除されます。
井土ヶ谷中町新築アパート 301号室の賃貸物件部屋概要
家賃 |
17万円
初期費用を |
|---|---|
共益費 |
5,000円
入居可能時期 |
敷金/礼金 |
1ヶ月 / 1ヶ月 |
保証金/ |
- / 1ヶ月 |
最寄駅 |
|
所在地 |
神奈川県横浜市南区井土ケ谷中町 |
部屋番号 |
301号室 |
間取り |
2LDK(LDK10.9・洋5・洋5.2) |
専有面積 |
48.62㎡ |
築年数 |
新築 |
階数 |
3階部分(地上3階建) |
方位・位置 |
南東 / その他 |
物件種別 |
賃貸アパート |
構造 |
木造 |
駐車場 |
無 |
小学校学区 |
井土ケ谷小学校 |
中学校学区 |
南中学校 |
他の空き部屋 |
101号室 201号室 |
- 学区データについて
- ※学区データは必ずしも正確とは限りません。詳細に関しては最寄店舗または各自治体の教育委員会に必ずご確認ください。
井土ヶ谷中町新築アパート 301号室の特徴
契約条件
この物件は、2人入居もご契約できます。 法人契約・事務所のご利用もご相談ください。 また、ご契約時に保証人は不要です。
セキュリティ
来客時には居室内のテレビモニターにて訪問者の顔を確認することができます。
室内設備
カウンターキッチンには、ガスコンロが備え付けられています。 お風呂とトイレは別です。お風呂には、追い焚き機能が備わっています。 トイレは、温水洗浄便座機能付きになります。 女性に嬉しい設備の独立した洗面化粧台があります。
居室状況
お部屋の床は、フローリングとなっています。照明器具が備え付けられており、入居後すぐ生活が始められます。 収納スペースとして、基本的な居室にクローゼットを設置、玄関にはシューズボックスがあります。
建物設備共用部分
居室外の専有スペースとして、洗濯物を干すなどの用途として利用できるバルコニーがあります。
周辺施設
この物件の学区は、井土ケ谷小学校区・南中学校区です。
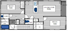
井土ヶ谷中町新築アパート 301号室の間取り
間取り:2LDK
間取詳細:2LDK(LDK10.9・洋5・洋5.2)
専有面積:48.62㎡
方位:南東
部屋位置:その他
井土ヶ谷中町新築アパート 301号室の設備
キッチン
カウンターキッチン
ガスコンロ
バス・トイレ
バス・トイレ別
追い焚き
温水洗浄便座
独立洗面台
玄関
TVモニタ付インターホン
収納
クローゼット
シューズボックス
バルコニー
バルコニー
ルーフバルコニー
室内設備
フローリング
照明器具付
位置・立地
2階以上
最上階
インフラ
インターネット可
都市ガス
入居条件
2人入居可
事務所可・相談
オンライン相談可
オンライン内見可
保証人不要
ライフステージ
一人暮らしに人気の設備
カップルに人気の設備
家族に人気の設備
夫婦に人気の設備
三世代で人気の設備
こだわり
外で子どもと遊びたい
洋室で暮らしたい
趣味
推し活グッズを飾りたい
ガーデニングが好き
井土ヶ谷中町新築アパート 301号室の賃貸契約情報
毎月支払う |
家賃17万円/月共益費5,000円/月 |
|---|---|
初期費用 |
敷金1ヶ月 (17万円)礼金1ヶ月 (17万円)保証金-敷引き償却金1ヶ月 |
更新料 |
170,000円 |
鍵交換費用 |
- |
室内清掃費用 |
- |
駐車場料金 |
無 |
損保・ |
借家賠付きの火災保険にご加入いただきます。 |
保証会社 |
加入要 保証会社:日本セーフティー 保証会社利用料:初回保証料:総賃料の50%・年間保証料:10,000円 |
契約期間 |
2年 |
入居可能日 |
相談 |
フリーレント期間 |
- |
取引形態 |
一般媒介 |
備考 |
- |
井土ヶ谷中町新築アパート 301号室の建物情報
建物名称 |
井土ヶ谷中町新築アパート |
|---|---|
最寄駅 |
|
所在地 |
神奈川県横浜市南区井土ケ谷中町 |
階層 |
3階部分(地上3階建) |
構造 |
木造 |
築年数 |
新築 |
駐車場 |
無 |
小学校学区 |
井土ケ谷小学校 |
中学校学区 |
南中学校 |
- 学区データについて
- ※学区データは必ずしも正確とは限りません。詳細に関しては最寄店舗または各自治体の教育委員会に必ずご確認ください。
無料この物件に問い合わせ
- 井土ヶ谷中町新築アパート 301号室

-
17万円
(共益費
5,000円)
- 敷
- 1ヶ月
- 礼
- 1ヶ月
- 保
- -
- 償
- 1ヶ月
井土ヶ谷中町新築アパート 301号室の物件のお問い合わせ先・取り扱い店舗
ハウスコム 上大岡店
- アクセス
-
京急本線「上大岡駅」徒歩2分
- 住所
- 〒233-0002 神奈川県横浜市港南区上大岡西1丁目11−7 第10オーヴァルビル 1階
- 営業時間
- 10:00~18:00
- 定休日
- なし(年末年始は休業(12月25日から1月3日迄))
- 営業エリア
- 横浜市南区,横浜市港南区,横浜市磯子区
- 取引態様
- 賃貸仲介業




















