ガラ・ステージ目黒 ***号室(11階/1K)の賃貸物件(賃貸マンション)
東京都目黒区にあるガラ・ステージ目黒 ***号室はガスコンロ、温水洗浄便座、オートロック、バルコニー、保証人不要などが特徴です。最寄り駅の山手線目黒駅から徒歩11分です。ガラ・ステージ目黒 ***号室の詳細はハウスコム 五反田店までお気軽にお問い合わせください!
情報更新日:
次回更新予定日:
※次回更新予定日について:お店側では順次空室確認を行っていますが、次回更新予定日までに空室確認が行えない場合には、この物件情報は自動的に削除されます。
ガラ・ステージ目黒 ***号室の賃貸物件部屋概要
家賃 |
9.7万円
初期費用を |
|---|---|
共益費 |
10,000円
入居可能時期 |
敷金/礼金 |
1ヶ月 / 2ヶ月 |
保証金/ |
- / - |
最寄駅 |
|
所在地 |
東京都目黒区下目黒 |
部屋番号 |
***号室 |
間取り |
1K(K2・洋7.6) |
専有面積 |
26.26㎡ |
築年数 |
2000年6月(築26年) |
階数 |
11階部分(地上12階建) |
方位・位置 |
南 / 角部屋 |
物件種別 |
賃貸マンション |
構造 |
SRC |
駐車場 |
空無し |
小学校学区 |
下目黒小学校 |
中学校学区 |
大鳥中学校 |
他の空き部屋 |
ー |
- 学区データについて
- ※学区データは必ずしも正確とは限りません。詳細に関しては最寄店舗または各自治体の教育委員会に必ずご確認ください。
ガラ・ステージ目黒 ***号室の特徴
契約条件
ご契約時に保証人は不要です。
セキュリティ
この物件の建物には、オートロックや防犯カメラや宅配ボックスが設置されております。
室内設備
システムキッチンには、2つ以上のガスコンロが備え付けられています。 トイレは、温水洗浄便座機能付きになります。 洗濯に便利な設備として、室内洗濯機置場があります。
居室状況
お部屋の床は、フローリングとなっており、エアコンが設置されています。 収納スペースとして、基本的な居室にクローゼットを設置、玄関にはシューズボックスがあります。
建物設備共用部分
居室外の専有スペースとして、洗濯物を干すなどの用途として利用できるバルコニーがあります。 建物の共用スペースに、日々の出入に便利なエレベーターや、いざという時の防犯カメラや、急な外出や不在がちのご家庭の荷物受け取りに便利な宅配ボックスや、居室内を常に清潔に保てる24時間利用可能なゴミ捨て置き場が設置されています。 駐輪場が利用できます。
周辺施設
この物件の学区は、下目黒小学校区・大鳥中学校区です。
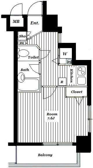
ガラ・ステージ目黒 ***号室の間取り
間取り:1K
間取詳細:1K(K2・洋7.6)
専有面積:26.26㎡
方位:南
部屋位置:角部屋
ガラ・ステージ目黒 ***号室の設備
キッチン
システムキッチン
ガスコンロ
ガスコンロ二口以上
バス・トイレ
バス・トイレ別
温水洗浄便座
玄関
オートロック
宅配ボックス
収納
クローゼット
シューズボックス
バルコニー
バルコニー
ルーフバルコニー
室内設備
エアコン
フローリング
室内洗濯機置場
位置・立地
2階以上
角部屋
南向き
インフラ
インターネット可
BS
CS
都市ガス
建物設備
エレベーター
防犯カメラ
24時間ゴミ出しOK
駐輪場
入居条件
保証人不要
ライフステージ
一人暮らしに人気の設備
カップルに人気の設備
家族に人気の設備
夫婦に人気の設備
三世代で人気の設備
こだわり
外で子どもと遊びたい
雨の日でも洗濯したい
洋室で暮らしたい
趣味
ガーデニングが好き
ガラ・ステージ目黒 ***号室の賃貸契約情報
毎月支払う |
家賃9.7万円/月共益費10,000円/月 |
|---|---|
初期費用 |
敷金1ヶ月 (9.7万円)礼金2ヶ月 (19.4万円)保証金-敷引き償却金- |
更新料 |
97,000円 |
鍵交換費用 |
23,100円 |
室内清掃費用 |
38,500円 |
エアコンクリーニング費用/1台につき |
13,200円 |
火災保険(地震特約付き) |
26,000円 |
駐車場料金 |
空無し |
損保・ |
借家賠付きの火災保険にご加入いただきます。 |
保証会社 |
加入要 保証会社:クレディセゾン 保証会社利用料:保証料:賃料等の0.5ヶ月分(最低保証料2万円)/月額保証料 賃料等の1.2% |
契約期間 |
2年 |
入居可能日 |
2026年02月上旬 |
フリーレント期間 |
- |
取引形態 |
一般媒介 |
備考 |
- |
ガラ・ステージ目黒 ***号室の建物情報
建物名称 |
ガラ・ステージ目黒 |
|---|---|
最寄駅 |
|
所在地 |
東京都目黒区下目黒 |
階層 |
11階部分(地上12階建) |
構造 |
SRC |
築年数 |
2000年6月(築26年) |
駐車場 |
空無し |
小学校学区 |
下目黒小学校 |
中学校学区 |
大鳥中学校 |
- 学区データについて
- ※学区データは必ずしも正確とは限りません。詳細に関しては最寄店舗または各自治体の教育委員会に必ずご確認ください。
無料この物件に問い合わせ
- ガラ・ステージ目黒 ***号室

-
9.7万円
(共益費
10,000円)
- 敷
- 1ヶ月
- 礼
- 2ヶ月
- 保
- -
- 償
- -
ガラ・ステージ目黒 ***号室の物件のお問い合わせ先・取り扱い店舗
ハウスコム 五反田店
- アクセス
-
山手線「五反田駅」東口徒歩1分
都営浅草線「五反田駅」A6出口より徒歩1分
- 住所
- 〒141-0022 東京都品川区東五反田1丁目12−12 落合ビル 2F
- 営業時間
- 10:00~18:00
- 定休日
- なし(年末年始は休業)
- 営業エリア
- 品川区,大田区,港区,目黒区
- 取引態様
- 賃貸仲介業






































