コンフォリア新大阪宮原Q 0610号室(6階/2LDK)の賃貸物件(賃貸マンション)
大阪府大阪市淀川区にあるコンフォリア新大阪宮原Q 0610号室はウォークインクローゼット、シューズインクローゼット、角部屋、エレベーター、バイク置き場などが特徴です。最寄り駅の大阪メトロ 御堂筋線東三国駅から徒歩6分です。コンフォリア新大阪宮原Q 0610号室の詳細はミニミニ FC江坂店までお気軽にお問い合わせください!
情報更新日:
次回更新予定日:
※次回更新予定日について:お店側では順次空室確認を行っていますが、次回更新予定日までに空室確認が行えない場合には、この物件情報は自動的に削除されます。
コンフォリア新大阪宮原Q 0610号室の賃貸物件部屋概要
家賃 |
16万円
初期費用を |
|---|---|
共益費 |
15,000円
入居可能時期 |
敷金/礼金 |
- / 160,000円 |
保証金/ |
- / - |
最寄駅 |
|
所在地 |
大阪府大阪市淀川区宮原 |
部屋番号 |
0610号室 |
間取り |
2LDK(LDK10・洋3.2・洋3) |
専有面積 |
40.31㎡ |
築年数 |
2025年2月 |
階数 |
6階部分(地上14階建) |
方位・位置 |
南 / 角部屋 |
物件種別 |
賃貸マンション |
構造 |
RC |
駐車場 |
無 |
小学校学区 |
北中島小学校 |
中学校学区 |
宮原中学校 |
他の空き部屋 |
0501号室 0508号室 0509号室 0608号室 ***号室 ***号室 1002号室 ***号室 ***号室 1009号室 ***号室 ***号室 ***号室 1208号室 1209号室 ***号室 ***号室 ***号室 1409号室 ***号室 1419号室 ***号室 ***号室 517号室 ***号室 ***号室 ***号室 ***号室 920号室 |
- 学区データについて
- ※学区データは必ずしも正確とは限りません。詳細に関しては最寄店舗または各自治体の教育委員会に必ずご確認ください。
コンフォリア新大阪宮原Q 0610号室の特徴
-
一人暮らしに人気の設備

-
カップルに人気の設備

-
家族に人気の設備

-
夫婦に人気の設備

-
三世代で人気の設備

-
セキュリティ対策重視

-
タイパ重視

-
雨の日でも洗濯したい

-
洋室で暮らしたい

-
服やおしゃれが好き

-
靴やスニーカーが好き

-
オークション・通販が好き

契約条件
敷金が無料なため、初期費用が比較的安くなる傾向にあります。
セキュリティ
この物件の建物には、オートロックや防犯カメラや宅配ボックスが設置されており、来客時には居室内のテレビモニターにて訪問者の顔を確認することができます。
室内設備
システムキッチンが備え付けられています。 お風呂とトイレは別です。お風呂には、追い焚き機能が備わっています。 トイレは、温水洗浄便座機能付きになります。 洗濯に便利な設備として、室内洗濯機置場があります。浴室乾燥機も設置されているので、梅雨時の生乾き臭も比較的防ぐことができます。
居室状況
お部屋の床は、フローリングとなっており、エアコンが設置されています。 インターネットも無料で入居後すぐ生活が始められます。 収納スペースとして、通常よりも収納力の高いウォークインクローゼット、玄関にはシューズインクローゼットがあります。
建物設備共用部分
建物の共用スペースに、日々の出入に便利なエレベーターや、いざという時の防犯カメラや、急な外出や不在がちのご家庭の荷物受け取りに便利な宅配ボックスや、居室内を常に清潔に保てる24時間利用可能なゴミ捨て置き場が設置されています。 駐輪場、バイク置き場が利用できます。
周辺施設
この物件の学区は、北中島小学校区・宮原中学校区です。
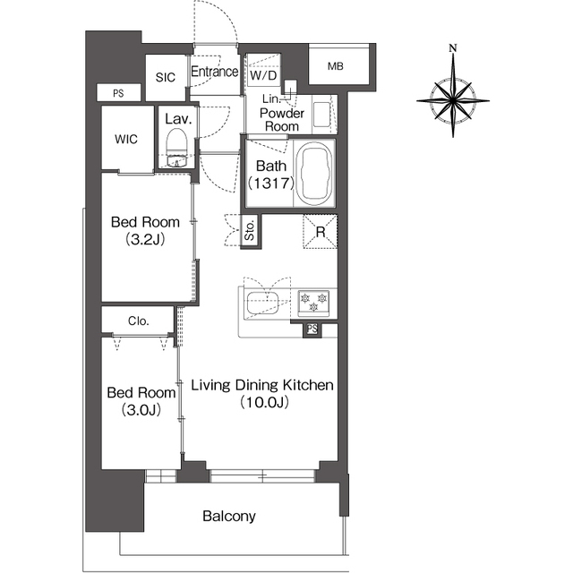
コンフォリア新大阪宮原Q 0610号室の間取り
間取り:2LDK
間取詳細:2LDK(LDK10・洋3.2・洋3)
専有面積:40.31㎡
方位:南
部屋位置:角部屋
コンフォリア新大阪宮原Q 0610号室の設備
キッチン
システムキッチン
バス・トイレ
バス・トイレ別
追い焚き
浴室乾燥機
温水洗浄便座
玄関
TVモニタ付インターホン
オートロック
宅配ボックス
収納
ウォークインクローゼット
シューズインクローゼット
トランクルーム
室内設備
エアコン
フローリング
室内洗濯機置場
位置・立地
2階以上
角部屋
南向き
建物設備
エレベーター
防犯カメラ
24時間ゴミ出しOK
駐輪場
バイク置き場
ライフステージ
一人暮らしに人気の設備
カップルに人気の設備
家族に人気の設備
夫婦に人気の設備
三世代で人気の設備
こだわり
セキュリティ対策重視
タイパ重視
雨の日でも洗濯したい
洋室で暮らしたい
趣味
服やおしゃれが好き
靴やスニーカーが好き
オークション・通販が好き
お得な条件
インターネット無料
コンフォリア新大阪宮原Q 0610号室の賃貸契約情報
毎月支払う |
家賃16万円/月共益費15,000円/月 |
|---|---|
初期費用 |
敷金-礼金160,000円保証金-敷引き償却金- |
更新料 |
30,000円 |
鍵交換費用 |
- |
室内清掃費用 |
- |
駐輪場ステッカー |
440円 |
鍵交換代 |
22,000円 |
駐車場料金 |
無 |
損保・ |
借家賠付きの火災保険にご加入いただきます。 |
保証会社 |
加入要 保証会社:エポスカード 保証会社利用料:保証料:賃料等の50%(最低2万)、月額保証料:賃料等の1%(更新料無) |
契約期間 |
2年 |
入居可能日 |
2026年03月上旬 |
フリーレント期間 |
- |
取引形態 |
一般媒介 |
備考 |
清掃費:38500円(退去時請求).エアコン清掃費:16500円(退去時請求) |
コンフォリア新大阪宮原Q 0610号室の建物情報
建物名称 |
コンフォリア新大阪宮原Q |
|---|---|
最寄駅 |
|
所在地 |
大阪府大阪市淀川区宮原 |
階層 |
6階部分(地上14階建) |
構造 |
RC |
築年数 |
2025年2月 |
駐車場 |
無 |
小学校学区 |
北中島小学校 |
中学校学区 |
宮原中学校 |
- 学区データについて
- ※学区データは必ずしも正確とは限りません。詳細に関しては最寄店舗または各自治体の教育委員会に必ずご確認ください。
無料この物件に問い合わせ
- コンフォリア新大阪宮原Q 0610号室

-
16万円
(共益費
15,000円)
- 敷
- -
- 礼
- 160,000円
- 保
- -
- 償
- -
コンフォリア新大阪宮原Q 0610号室の物件のお問い合わせ先・取り扱い店舗
ミニミニ FC江坂店
- アクセス
-
大阪メトロ 御堂筋線「江坂駅」徒歩1分
- 住所
- 〒564-0063 大阪府吹田市江坂町1-23-34 第二梓ビル2F
- 営業時間
- 10:00~18:00
- 定休日
- なし
- 営業エリア
- 大阪府下全域
- 取引態様
- 賃貸仲介業





