BluRock豊洲 1103号室(11階/1LDK)の賃貸物件(賃貸マンション)
東京都江東区にあるBluRock豊洲 1103号室はバス・トイレ別、追い焚き、温水洗浄便座、最上階、エレベーターなどが特徴です。最寄り駅の東京メトロ 有楽町線豊洲駅から徒歩9分です。BluRock豊洲 1103号室の詳細はハウスコム 西葛西店までお気軽にお問い合わせください!
情報更新日:
次回更新予定日:
※次回更新予定日について:お店側では順次空室確認を行っていますが、次回更新予定日までに空室確認が行えない場合には、この物件情報は自動的に削除されます。
BluRock豊洲 1103号室の賃貸物件部屋概要
家賃 |
18.8万円
初期費用を |
|---|---|
共益費 |
20,000円
入居可能時期 |
敷金/礼金 |
- / - |
保証金/ |
- / - |
最寄駅 |
|
所在地 |
東京都江東区東雲 |
部屋番号 |
1103号室 |
間取り |
1LDK |
専有面積 |
38.80㎡ |
築年数 |
2006年8月(築20年) |
階数 |
11階部分(地上11階建) |
方位・位置 |
ー / その他 |
物件種別 |
賃貸マンション |
構造 |
RC |
駐車場 |
- |
小学校学区 |
東雲小学校 |
中学校学区 |
有明中学校 |
他の空き部屋 |
ー |
- 学区データについて
- ※学区データは必ずしも正確とは限りません。詳細に関しては最寄店舗または各自治体の教育委員会に必ずご確認ください。
BluRock豊洲 1103号室の特徴
契約条件
この物件は、2人入居もご契約できます。 敷金と礼金が無料なため、初期費用が比較的安くなる傾向にあります。
セキュリティ
この物件の建物には、オートロックや宅配ボックスが設置されており、来客時には居室内のテレビモニターにて訪問者の顔を確認することができます。
室内設備
システムキッチンが備え付けられています。 お風呂とトイレは別です。お風呂には、追い焚き機能が備わっています。 トイレは、温水洗浄便座機能付きになります。 女性に嬉しい設備の独立した洗面化粧台があります。 洗濯に便利な設備として、浴室乾燥機も設置されているので、梅雨時の生乾き臭も比較的防ぐことができます。
居室状況
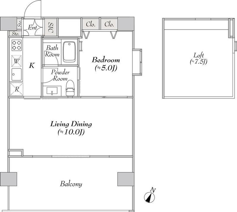
居室には、ロフトが設置されており大規模な収納スペースやセパレートされた寝室として活用できます。 お部屋の床は、フローリングとなっており、エアコンが設置されています。 収納スペースとして、玄関にはシューズインクローゼットがあります。
建物設備共用部分
建物の共用スペースに、日々の出入に便利なエレベーターや、急な外出や不在がちのご家庭の荷物受け取りに便利な宅配ボックスや、居室内を常に清潔に保てる24時間利用可能なゴミ捨て置き場が設置されています。 駐輪場が利用できます。
周辺施設
この物件の学区は、東雲小学校区・有明中学校区です。
BluRock豊洲 1103号室の間取り
間取り:1LDK
間取詳細:1LDK
専有面積:38.80㎡
方位:ー
部屋位置:その他
BluRock豊洲 1103号室の設備
キッチン
システムキッチン
バス・トイレ
バス・トイレ別
追い焚き
浴室乾燥機
温水洗浄便座
独立洗面台
玄関
TVモニタ付インターホン
オートロック
宅配ボックス
収納
シューズインクローゼット
室内設備
エアコン
フローリング
ロフト付
位置・立地
2階以上
最上階
インフラ
都市ガス
建物設備
エレベーター
24時間ゴミ出しOK
駐輪場
入居条件
2人入居可
ライフステージ
一人暮らしに人気の設備
カップルに人気の設備
家族に人気の設備
夫婦に人気の設備
三世代で人気の設備
こだわり
タイパ重視
雨の日でも洗濯したい
洋室で暮らしたい
趣味
靴やスニーカーが好き
BluRock豊洲 1103号室の賃貸契約情報
毎月支払う |
家賃18.8万円/月共益費20,000円/月 |
|---|---|
初期費用 |
敷金-礼金-保証金-敷引き償却金- |
更新料 |
188,000円 |
鍵交換費用 |
- |
室内清掃費用 |
- |
駐車場料金 |
- |
損保・ |
借家賠付きの火災保険にご加入いただきます。 |
保証会社 |
|
契約期間 |
2年 |
入居可能日 |
相談 |
フリーレント期間 |
- |
取引形態 |
一般媒介 |
備考 |
- |
BluRock豊洲 1103号室の建物情報
建物名称 |
BluRock豊洲 |
|---|---|
最寄駅 |
|
所在地 |
東京都江東区東雲 |
階層 |
11階部分(地上11階建) |
構造 |
RC |
築年数 |
2006年8月(築20年) |
駐車場 |
- |
小学校学区 |
東雲小学校 |
中学校学区 |
有明中学校 |
- 学区データについて
- ※学区データは必ずしも正確とは限りません。詳細に関しては最寄店舗または各自治体の教育委員会に必ずご確認ください。
無料この物件に問い合わせ
- BluRock豊洲 1103号室

-
18.8万円
(共益費
20,000円)
- 敷
- -
- 礼
- -
- 保
- -
- 償
- -
BluRock豊洲 1103号室の物件のお問い合わせ先・取り扱い店舗
ハウスコム 西葛西店
- アクセス
-
東京メトロ 東西線「西葛西駅」徒歩1分
- 住所
- 〒134-0088 東京都江戸川区西葛西6-15-3 中兼ビル1階
- 営業時間
- 10:00~18:00
- 定休日
- なし
- 営業エリア
- 東京都江戸川区 江東区 中央区全域 千葉県浦安市 市川市全域
- 取引態様
- 賃貸仲介業

















