メゾン・ド・ベルC 203号室(2階/1LDK)の賃貸物件(賃貸アパート)
千葉県茂原市にあるメゾン・ド・ベルC 203号室はバス・トイレ別、シューズボックス、エアコン、ロフト付、最上階などが特徴です。最寄り駅の外房線茂原駅から徒歩21分です。メゾン・ド・ベルC 203号室の詳細はハウスコム 千葉中央店までお気軽にお問い合わせください!
情報更新日:
次回更新予定日:
※次回更新予定日について:お店側では順次空室確認を行っていますが、次回更新予定日までに空室確認が行えない場合には、この物件情報は自動的に削除されます。
メゾン・ド・ベルC 203号室の賃貸物件部屋概要
家賃 |
5.4万円
初期費用を |
|---|---|
共益費 |
2,000円
入居可能時期 |
敷金/礼金 |
- / - |
保証金/ |
- / - |
最寄駅 |
|
所在地 |
千葉県茂原市早野 |
部屋番号 |
203号室 |
間取り |
1LDK |
専有面積 |
39.74㎡ |
築年数 |
2003年7月(築23年) |
階数 |
2階部分(地上2階建) |
方位・位置 |
ー / その他 |
物件種別 |
賃貸アパート |
構造 |
木造 |
駐車場 |
- |
小学校学区 |
茂原小学校 |
中学校学区 |
南中学校 |
他の空き部屋 |
201号室 202号室 |
- 学区データについて
- ※学区データは必ずしも正確とは限りません。詳細に関しては最寄店舗または各自治体の教育委員会に必ずご確認ください。
メゾン・ド・ベルC 203号室の特徴
契約条件
敷金と礼金が無料なため、初期費用が比較的安くなる傾向にあります。
室内設備
ガスコンロが備え付けられています。 女性に嬉しい設備の独立した洗面化粧台があります。
居室状況
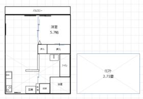
居室には、ロフトが設置されており大規模な収納スペースやセパレートされた寝室として活用できます。 エアコンが設置されています。 収納スペースとして、玄関にはシューズボックスがあります。
建物設備共用部分
居室外の専有スペースとして、洗濯物を干すなどの用途として利用できるバルコニーがあります。
周辺施設
この物件の学区は、茂原小学校区・南中学校区です。
メゾン・ド・ベルC 203号室の間取り
間取り:1LDK
間取詳細:1LDK
専有面積:39.74㎡
方位:ー
部屋位置:その他
メゾン・ド・ベルC 203号室の設備
キッチン
ガスコンロ
バス・トイレ
バス・トイレ別
独立洗面台
収納
シューズボックス
バルコニー
バルコニー
ルーフバルコニー
室内設備
エアコン
ロフト付
位置・立地
2階以上
最上階
インフラ
プロパンガス
ライフステージ
一人暮らしに人気の設備
カップルに人気の設備
家族に人気の設備
夫婦に人気の設備
三世代で人気の設備
こだわり
外で子どもと遊びたい
寝るためだけの部屋
趣味
ガーデニングが好き
お得な条件
フリーレント
メゾン・ド・ベルC 203号室の賃貸契約情報
毎月支払う |
家賃5.4万円/月共益費2,000円/月 |
|---|---|
初期費用 |
敷金-礼金-保証金-敷引き償却金- |
更新料 |
54,000円 |
鍵交換費用 |
- |
室内清掃費用 |
- |
家賃保証初回委託保証料 |
10,000円 |
駐車場料金 |
- |
損保・ |
借家賠付きの火災保険にご加入いただきます。 |
保証会社 |
|
契約期間 |
2年 |
入居可能日 |
相談 |
フリーレント期間 |
1ヶ月 |
取引形態 |
一般媒介 |
備考 |
月額:家賃保証月額(月) 560円 口座振替手数料(月) 330円 初期:家賃保証初回委託保証料 10000円 |
メゾン・ド・ベルC 203号室の建物情報
建物名称 |
メゾン・ド・ベルC |
|---|---|
最寄駅 |
|
所在地 |
千葉県茂原市早野 |
階層 |
2階部分(地上2階建) |
構造 |
木造 |
築年数 |
2003年7月(築23年) |
駐車場 |
- |
小学校学区 |
茂原小学校 |
中学校学区 |
南中学校 |
- 学区データについて
- ※学区データは必ずしも正確とは限りません。詳細に関しては最寄店舗または各自治体の教育委員会に必ずご確認ください。
無料この物件に問い合わせ
- メゾン・ド・ベルC 203号室

-
5.4万円
(共益費
2,000円)
- 敷
- -
- 礼
- -
- 保
- -
- 償
- -
メゾン・ド・ベルC 203号室の物件のお問い合わせ先・取り扱い店舗
ハウスコム 千葉中央店
土日営業
- アクセス
-
総武本線「千葉駅」東口徒歩5分
- 住所
- 〒260-0015 千葉県千葉市中央区富士見2丁目7−2 鹿島ビル 3階
- 営業時間
- 10:00~18:00
- 定休日
- 水曜日
- 営業エリア
- 千葉市、四街道市、市原市、茂原市、袖ヶ浦市、木更津市、君津市、富津市、八街市、館山市他
- 取引態様
- 賃貸仲介業
お問い合わせNo. HC4-5315862-203-0066




















